ID Lokasi : DMK0120082026T001
JAWA TENGAH, KAB DEMAK, Mranggen, Bandungrejo
PT DWI PERKASA UTAMA
Himpunan Pengembang Permukiman dan Perumahan Rakyat
(HIMPERRA)
Subsidi : 66 Unit
Terjual Subsidi : 32 Unit
Komersil : 0 Unit
Terjual Komersil : 0 Unit
Lihat Siteplan Digital




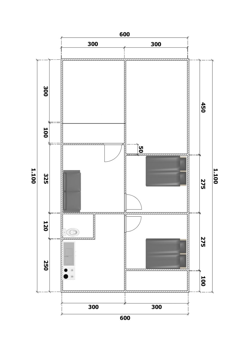
Harga: Rp 166.000.000
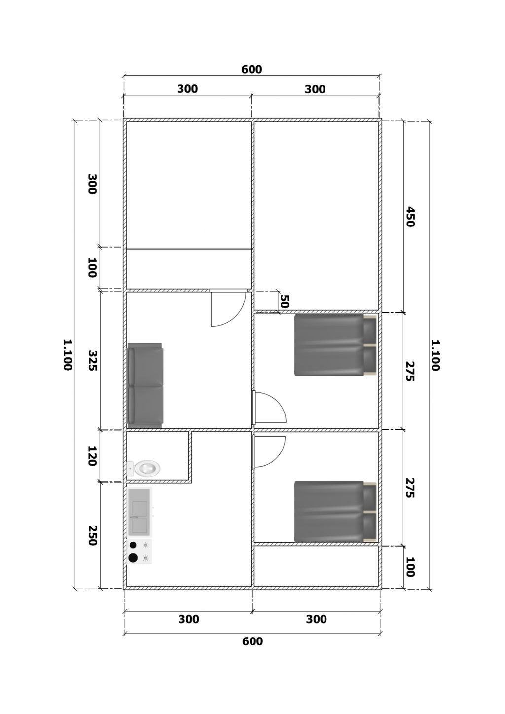
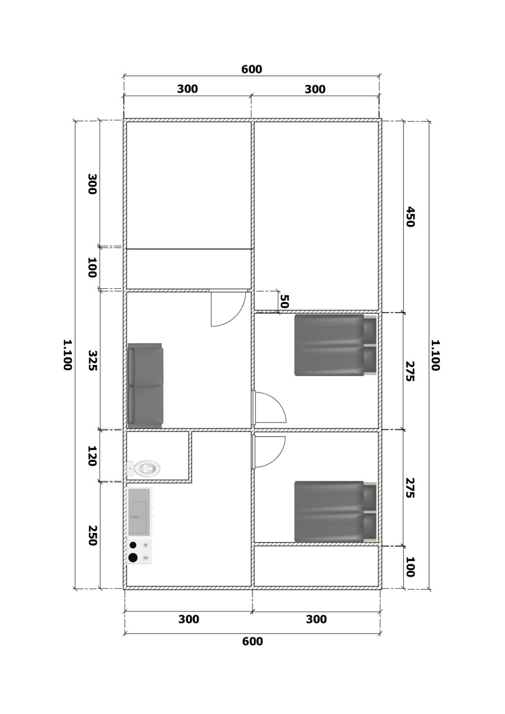
Luas Bangunan: 30m 2
Luas Lahan: 66m 2
Kamar Tidur: 2
Kamar Mandi: 1
a. Atap
GENTENG MANTILY
b. Dinding
PLESTER ACI
c. Lantai & Pondasi
KERAMIK 40X40 & BATU KALI


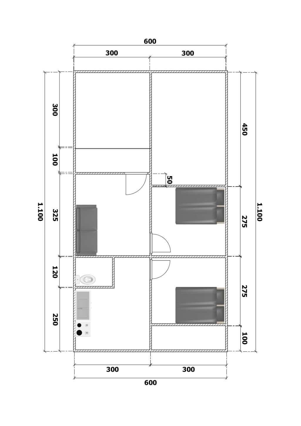
Harga: Rp 166.000.000
Luas Bangunan: 30m 2
Luas Lahan: 67m 2
Kamar Tidur: 2
Kamar Mandi: 1
a. Atap
GENTENG MANTILY
b. Dinding
PLESTER ACI
c. Lantai & Pondasi
KERAMIK 40X40 & BATU KALI


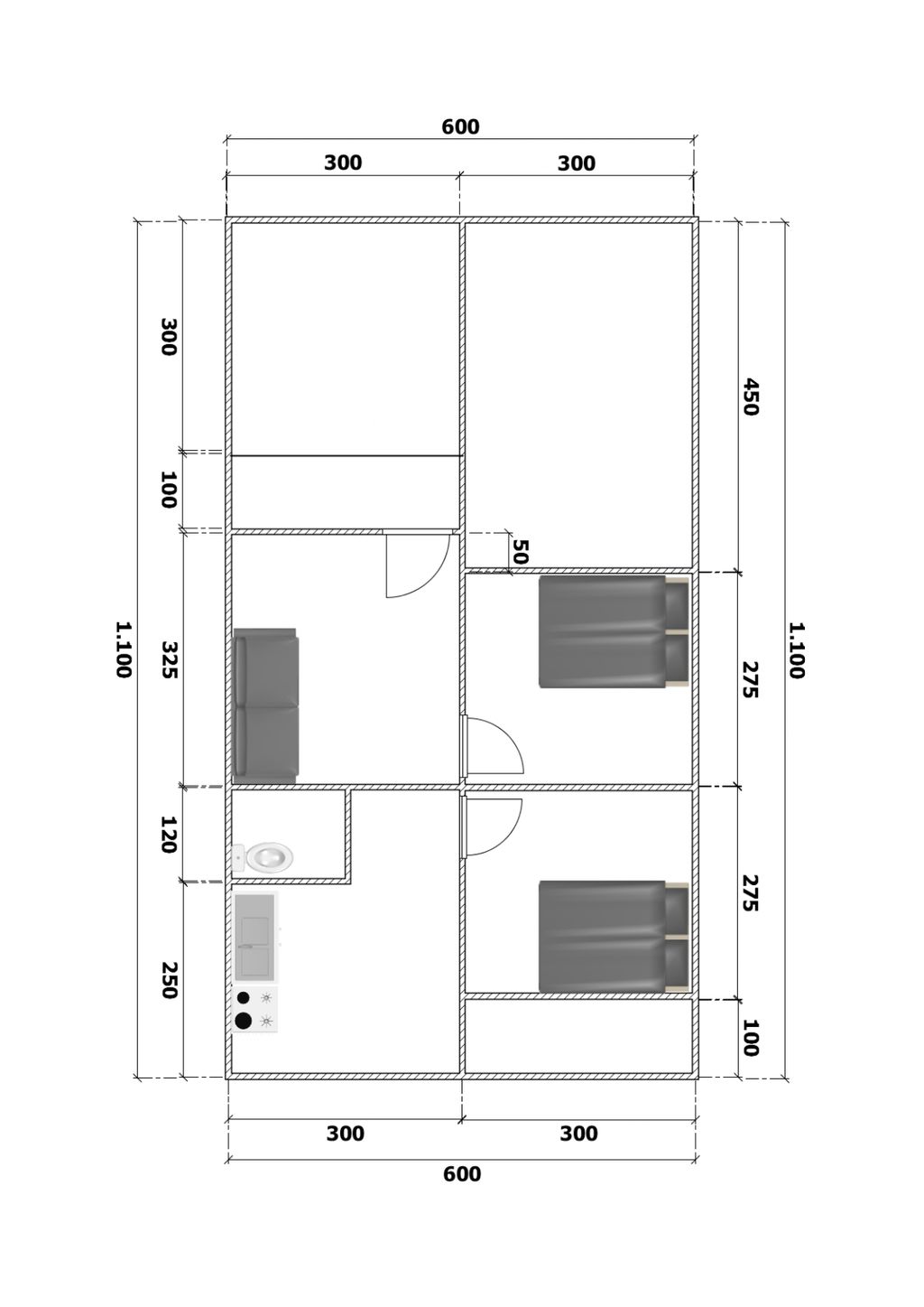
Harga: Rp 166.000.000
Luas Bangunan: 30m 2
Luas Lahan: 68m 2
Kamar Tidur: 2
Kamar Mandi: 2
a. Atap
GENTENG MANTILY
b. Dinding
PLESTER ACI
c. Lantai & Pondasi
KERAMIK 40X40 & BATU KALI


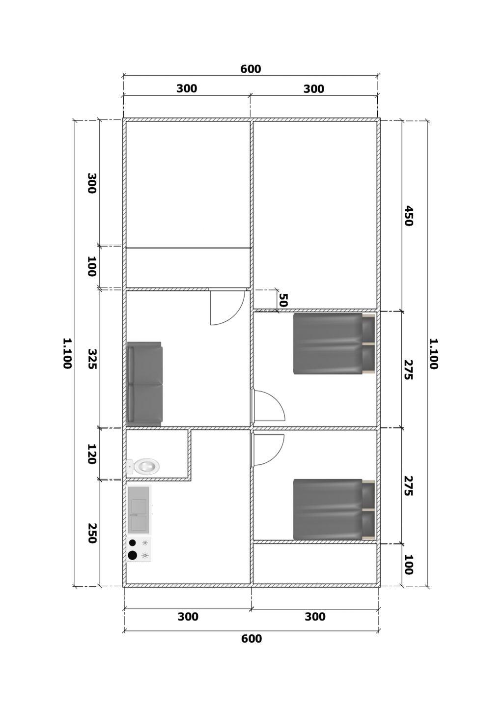
Harga: Rp 166.000.000
Luas Bangunan: 30m 2
Luas Lahan: 73m 2
Kamar Tidur: 2
Kamar Mandi: 1
a. Atap
GENTENG MANTILY
b. Dinding
PLESTER ACI
c. Lantai & Pondasi
KERAMIK 40X40 & BATU KALI


Harga: Rp 166.000.000
Luas Bangunan: 30m 2
Luas Lahan: 78m 2
Kamar Tidur: 2
Kamar Mandi: 1
a. Atap
GENTENG MANTILY
b. Dinding
PLESTER ACI
c. Lantai & Pondasi
KERAMIK 40X40 & BATU KALI


Harga: Rp 166.000.000
Luas Bangunan: 30m 2
Luas Lahan: 82m 2
Kamar Tidur: 2
Kamar Mandi: 1
a. Atap
GENTENG MANTILY
b. Dinding
PLESTER ACI
c. Lantai & Pondasi
KERAMIK 40X40 & BATU KALI