ID Lokasi : DMK0120092020T001
JAWA TENGAH, KAB DEMAK, Mranggen, Brumbung
PT. GAIA PROPERTINDO UTAMA
REAL ESTATE INDONESIA
(REI)
Subsidi : 5 Unit
Terjual Subsidi : 26 Unit
Komersil : 0 Unit
Terjual Komersil : 0 Unit
Lihat Siteplan DigitalPerum Puri Gardenia Mranggen Demak no. B 18 JAWA TENGAH, KAB DEMAK, Mranggen, Brumbung
Telp : 085713897517
Email : haryonohary069@gmail.com
Jl. Raya Semarang Demak KM 18 Desa Karangtowo RT 005 RW 002 Karangtengah Demak no. 00 JAWA TENGAH, KAB DEMAK, Karangtengah, Karangtowo
Telp : 082314468882
Email : ulil.kalijaga@gmail.com
Website : 00





Harga: Rp 145.000.000
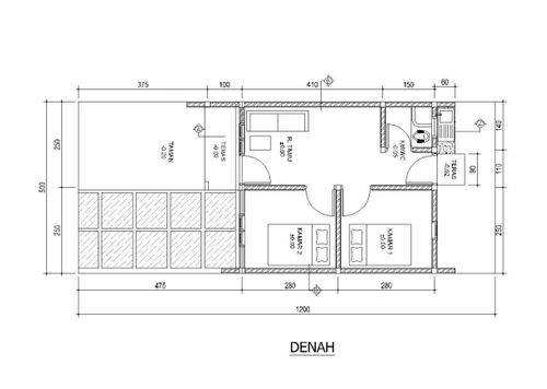
Luas Bangunan: 30m 2
Luas Lahan: 60m 2
Kamar Tidur: 2
Kamar Mandi: 1
a. Atap
Ramgka aytap baja ringan
Genteng Mantili
b. Dinding
Bata merah pleter aci
c. Lantai & Pondasi
Mulia atau sekelasnya 40 x 40 & Pondasi Batu gunung
Perum Puri Gardenia Mranggen Demak no. B 18 JAWA TENGAH, KAB DEMAK, Mranggen, Brumbung
Telp : 085713897517
Email : haryonohary069@gmail.com
Jl. Raya Semarang Demak KM 18 Desa Karangtowo RT 005 RW 002 Karangtengah Demak no. 00 JAWA TENGAH, KAB DEMAK, Karangtengah, Karangtowo
Telp : 082314468882
Email : ulil.kalijaga@gmail.com
Website : 00