ID Lokasi : DPK0310102024T002
JAWA BARAT, KOTA DEPOK, Sawangan, Sawangan
KERJASAMA OPERASI (KSO) VASANTA DIAMOND SAWANGAN
PERKUMPULAN ASOSIASI PENGEMBANG PERUMAHAN DAN PERMUKIMAN SELURUH INDONESIA
(APERSI)
Subsidi : 0 Unit
Terjual Subsidi : 0 Unit
Komersil : 0 Unit
Terjual Komersil : 72 Unit
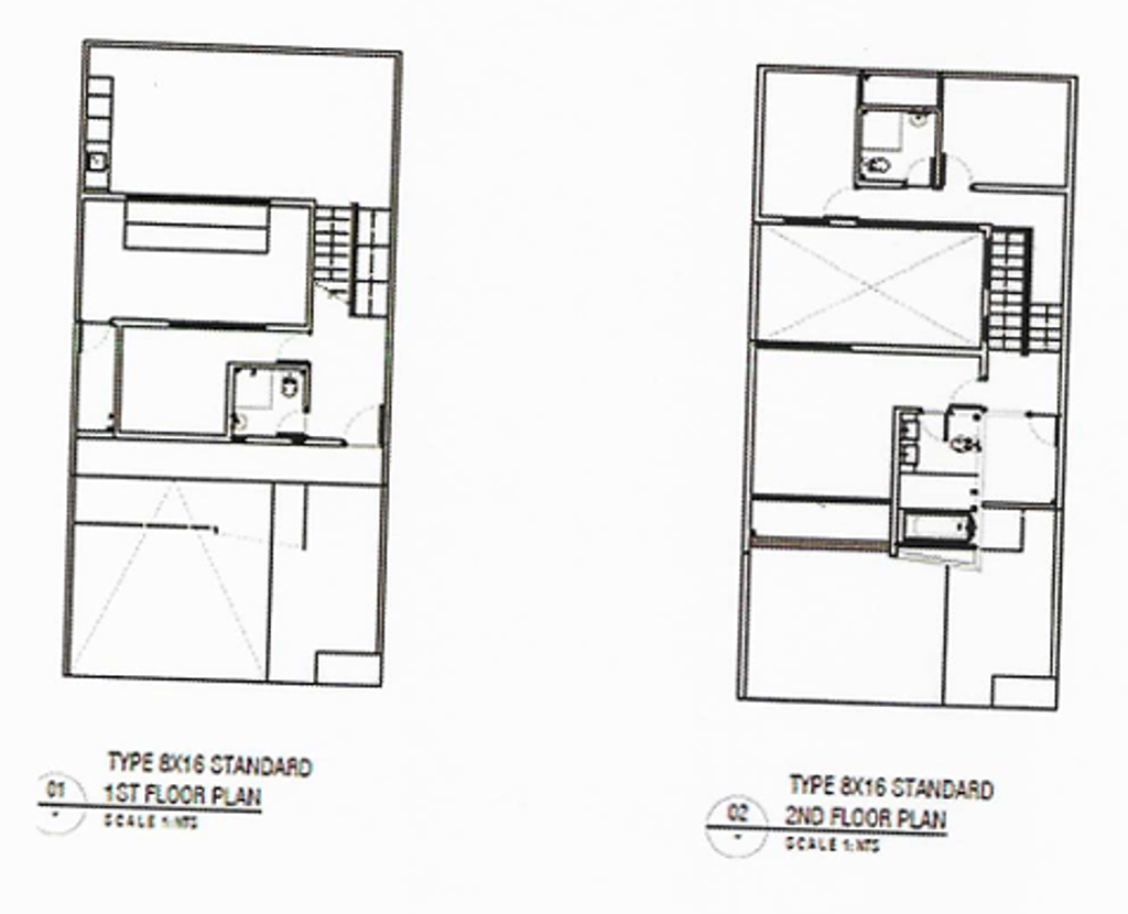
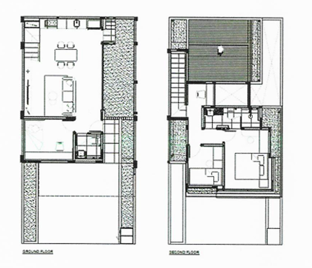
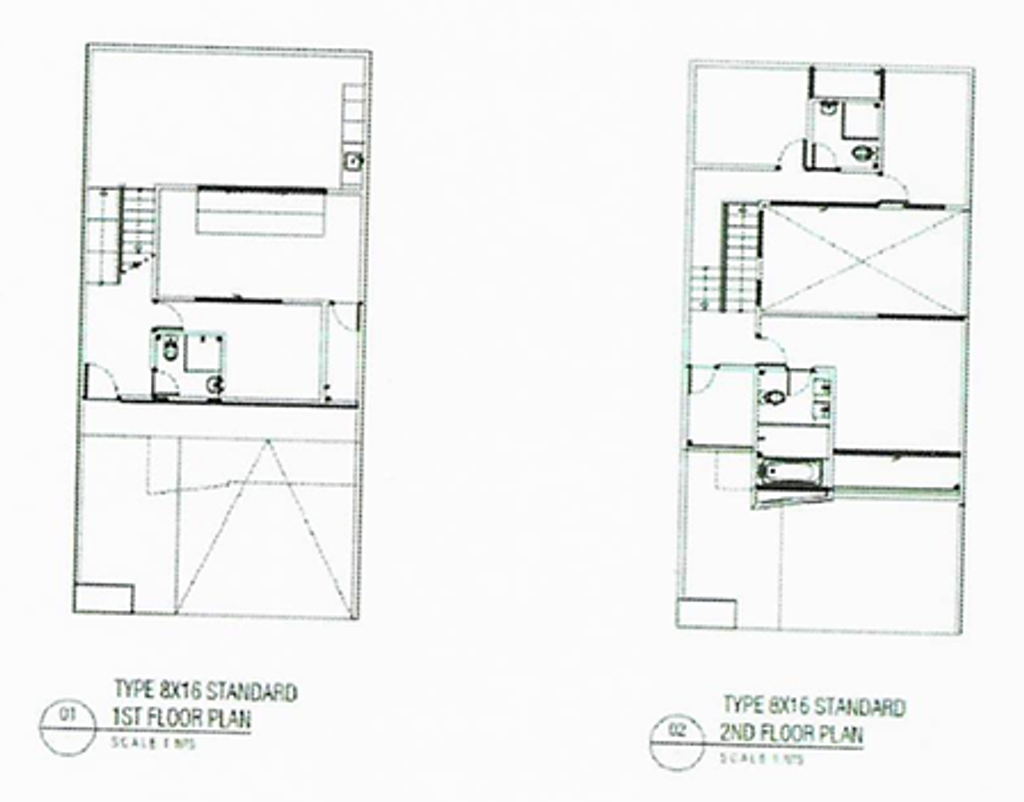
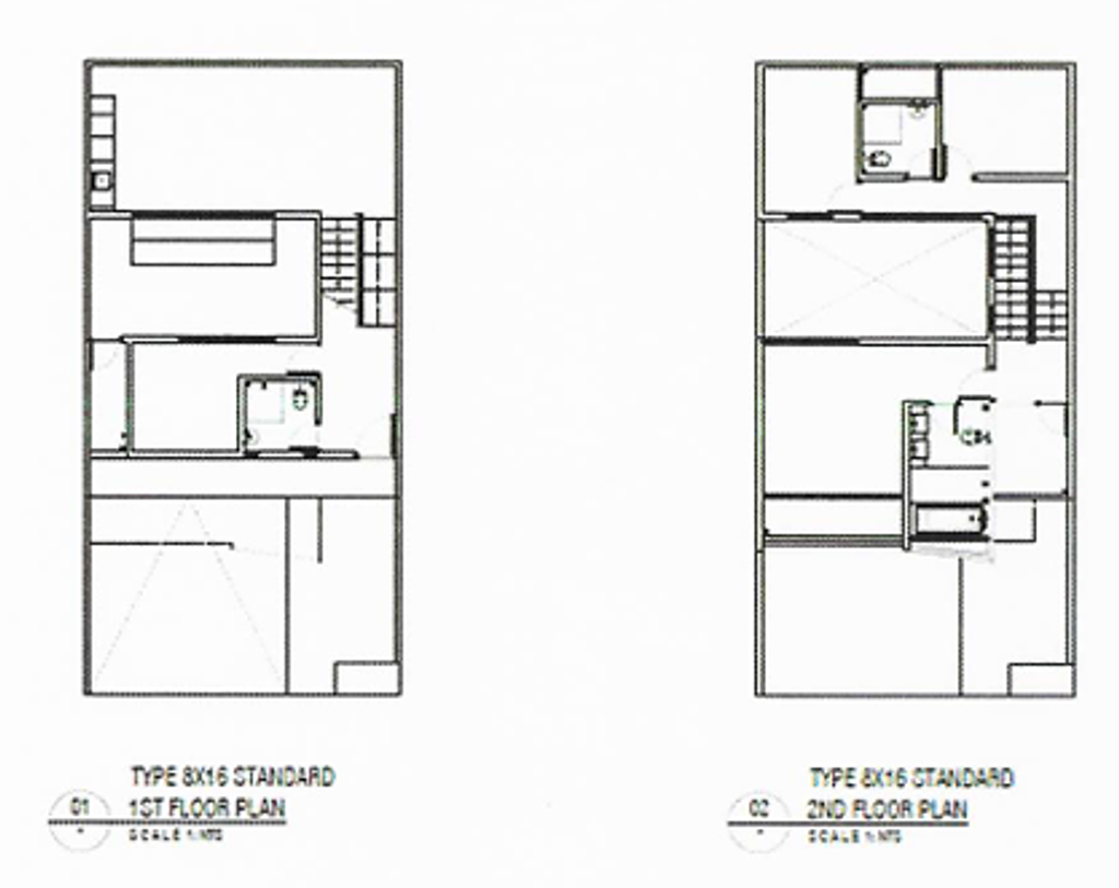
Lihat Siteplan DigitalJalan Raya Bojongsari no. 53 JAWA BARAT, KOTA DEPOK, Bojongsari, Bojongsari
Telp : +6281388854511
Email : sales.admin@vasanta.co.id
Website : shila.co.id

Harga: Rp 1.540.540.540
Luas Bangunan: 79m 2
Luas Lahan: 120m 2
Kamar Tidur: 2
Kamar Mandi: 2
a. Atap
atap genteng
b. Dinding
bata merah
c. Lantai & Pondasi
keramik & cakar ayam

Harga: Rp 2.058.558.558
Luas Bangunan: 109.05m 2
Luas Lahan: 140m 2
Kamar Tidur: 2
Kamar Mandi: 2
a. Atap
genteng
b. Dinding
bata merah
c. Lantai & Pondasi
keramik & cakar ayam


Harga: Rp 1.760.360.360
Luas Bangunan: 79m 2
Luas Lahan: 141.8m 2
Kamar Tidur: 3
Kamar Mandi: 2
a. Atap
Bitumen
b. Dinding
Brick Wall
c. Lantai & Pondasi
60x60 homogeneous Tile; 30x30 Ceramic Tile & minipile


Harga: Rp 1.496.396.396
Luas Bangunan: 79m 2
Luas Lahan: 110m 2
Kamar Tidur: 3
Kamar Mandi: 2
a. Atap
bitumen
b. Dinding
brick wall
c. Lantai & Pondasi
60x60 homogeneous tile; 30x30 ceramic tile & minipile


Harga: Rp 2.710.810.811
Luas Bangunan: 149.19m 2
Luas Lahan: 128m 2
Kamar Tidur: 4
Kamar Mandi: 3
a. Atap
zincalum dan dak beton
b. Dinding
brick wall
c. Lantai & Pondasi
homogeneous tile; ceramic tile (kitchen) & minipile


Harga: Rp 1.792.792.793
Luas Bangunan: 109.05m 2
Luas Lahan: 112m 2
Kamar Tidur: 3
Kamar Mandi: 4
a. Atap
partial cor dak dan partial spandek
b. Dinding
bata merah
c. Lantai & Pondasi
60x60 homogeneous tile dan 30x30 ceramic tile & pancang


Harga: Rp 2.003.603.604
Luas Bangunan: 109.05m 2
Luas Lahan: 146m 2
Kamar Tidur: 3
Kamar Mandi: 4
a. Atap
partial cor dak dan partial spandek
b. Dinding
bata merah
c. Lantai & Pondasi
60x60 homogeneous tile dan 30x30 ceramic tile & pancang


Harga: Rp 2.184.684.685
Luas Bangunan: 109.05m 2
Luas Lahan: 160m 2
Kamar Tidur: 3
Kamar Mandi: 4
a. Atap
partial cor dak dan partial spandek
b. Dinding
bata merah
c. Lantai & Pondasi
60x60 homogeneous tile dan 30x30 ceramic tile & pancang


Harga: Rp 1.461.261.261
Luas Bangunan: 79m 2
Luas Lahan: 88m 2
Kamar Tidur: 3
Kamar Mandi: 2
a. Atap
bitumen
b. Dinding
brick wall
c. Lantai & Pondasi
60x60 homogeneous tile; 30x30 ceramic tile & minipile


Harga: Rp 1.734.918.919
Luas Bangunan: 79m 2
Luas Lahan: 142m 2
Kamar Tidur: 3
Kamar Mandi: 2
a. Atap
bitumen
b. Dinding
brick wall
c. Lantai & Pondasi
60x60 homogeneous tile; 30x30 ceramic tile & minipile


Harga: Rp 2.045.945.946
Luas Bangunan: 79m 2
Luas Lahan: 150m 2
Kamar Tidur: 3
Kamar Mandi: 2
a. Atap
bitumen
b. Dinding
brick wall
c. Lantai & Pondasi
60x60 homogeneous tile; 30x30 ceramic tile & minipile


Harga: Rp 2.190.090.090
Luas Bangunan: 109.05m 2
Luas Lahan: 112m 2
Kamar Tidur: 3
Kamar Mandi: 4
a. Atap
partial cor dak dan partial spandek
b. Dinding
bata merah
c. Lantai & Pondasi
60x60 homogeneous tile dan 30x30 ceramic tile & pancang


Harga: Rp 2.379.558.559
Luas Bangunan: 149.19m 2
Luas Lahan: 128m 2
Kamar Tidur: 4
Kamar Mandi: 3
a. Atap
zincalum dan dak beton
b. Dinding
brick wall
c. Lantai & Pondasi
homogeneous tile; ceramic tile (kitchen) & minipile


Harga: Rp 1.574.594.595
Luas Bangunan: 79m 2
Luas Lahan: 88m 2
Kamar Tidur: 3
Kamar Mandi: 2
a. Atap
bitumen
b. Dinding
brick wall
c. Lantai & Pondasi
60x60 homogeneous tile; 30x30 ceramic tile & minipile


Harga: Rp 2.190.090.091
Luas Bangunan: 109.05m 2
Luas Lahan: 112m 2
Kamar Tidur: 3
Kamar Mandi: 4
a. Atap
partial cor dak dan partial spandek
b. Dinding
bata merah
c. Lantai & Pondasi
60x60 homogeneous tile dan 30x30 ceramic tile & pancang


Harga: Rp 2.998.378.378
Luas Bangunan: 180.43m 2
Luas Lahan: 144m 2
Kamar Tidur: 4
Kamar Mandi: 4
a. Atap
Zincalum & Dak Beton
b. Dinding
Brick Wall
c. Lantai & Pondasi
Homogenous Tile; Ceramic Tile (kitchen) & minipile


Harga: Rp 3.031.531.532
Luas Bangunan: 149.19m 2
Luas Lahan: 128m 2
Kamar Tidur: 4
Kamar Mandi: 3
a. Atap
Zincalum & Dak Beton
b. Dinding
Brick Wall
c. Lantai & Pondasi
Homogeneous Tile; Ceramic Tile (kitchen) & minipile


Harga: Rp 3.431.765.766
Luas Bangunan: 184.8m 2
Luas Lahan: 188.2m 2
Kamar Tidur: 4
Kamar Mandi: 4
a. Atap
Bitumen & Dak Beton
b. Dinding
Brick Wall
c. Lantai & Pondasi
Homogeneous Tile; Ceramic tile (kitchen) & minipile


Harga: Rp 4.043.243.243
Luas Bangunan: 184.8m 2
Luas Lahan: 160m 2
Kamar Tidur: 4
Kamar Mandi: 4
a. Atap
cor dak dan atap bitumen
b. Dinding
brick wall
c. Lantai & Pondasi
local marble (living room); 60x60 homogeneous tile & minipile


Harga: Rp 2.783.288.288
Luas Bangunan: 180.43m 2
Luas Lahan: 144m 2
Kamar Tidur: 4
Kamar Mandi: 4
a. Atap
Atap dak dan atap metal sheet
b. Dinding
brick wall
c. Lantai & Pondasi
homogeneous tile & minipile


Harga: Rp 2.478.378.378
Luas Bangunan: 109.05m 2
Luas Lahan: 140m 2
Kamar Tidur: 2
Kamar Mandi: 2
a. Atap
genteng
b. Dinding
bata merah
c. Lantai & Pondasi
keramik & cakar ayam


Harga: Rp 2.832.432.432
Luas Bangunan: 109.05m 2
Luas Lahan: 140m 2
Kamar Tidur: 2
Kamar Mandi: 2
a. Atap
genteng
b. Dinding
bata merah
c. Lantai & Pondasi
keramik & cakar ayam


Harga: Rp 1.749.549.550
Luas Bangunan: 79m 2
Luas Lahan: 88m 2
Kamar Tidur: 3
Kamar Mandi: 2
a. Atap
bitumen
b. Dinding
brick wall
c. Lantai & Pondasi
60x60 homogeneous tile; 30x30 ceramic tile & minipile


Harga: Rp 1.864.864.865
Luas Bangunan: 79m 2
Luas Lahan: 88m 2
Kamar Tidur: 3
Kamar Mandi: 2
a. Atap
bitumen
b. Dinding
brick wall
c. Lantai & Pondasi
60x60 homogeneous tile; 30x30 ceramic tile & minipile


Harga: Rp 2.709.909.910
Luas Bangunan: 109.05m 2
Luas Lahan: 160m 2
Kamar Tidur: 3
Kamar Mandi: 4
a. Atap
partial cor dak dan partial spandek
b. Dinding
bata merah
c. Lantai & Pondasi
60x60 homogeneous tile dan 30x30 ceramic tile & pancang


Harga: Rp 2.075.450.450
Luas Bangunan: 109.05m 2
Luas Lahan: 140m 2
Kamar Tidur: 3
Kamar Mandi: 3
a. Atap
Genteng
b. Dinding
Bata Merah
c. Lantai & Pondasi
Keramik & Cakar ayam


Harga: Rp 2.147.747.747
Luas Bangunan: 109.05m 2
Luas Lahan: 160m 2
Kamar Tidur: 3
Kamar Mandi: 4
a. Atap
genteng
b. Dinding
bata merah
c. Lantai & Pondasi
keramik & cakar ayam


Harga: Rp 2.562.162.162
Luas Bangunan: 79m 2
Luas Lahan: 148m 2
Kamar Tidur: 3
Kamar Mandi: 2
a. Atap
genteng
b. Dinding
bata merah
c. Lantai & Pondasi
keramik & cakar ayam


Harga: Rp 1.820.000.000
Luas Bangunan: 109.05m 2
Luas Lahan: 112m 2
Kamar Tidur: 3
Kamar Mandi: 3
a. Atap
genteng
b. Dinding
bata merah
c. Lantai & Pondasi
keramik & cakar ayam


Harga: Rp 2.127.567.567
Luas Bangunan: 109.5m 2
Luas Lahan: 160m 2
Kamar Tidur: 3
Kamar Mandi: 3
a. Atap
genteng
b. Dinding
bata merah
c. Lantai & Pondasi
keramik & cakar ayam


Harga: Rp 2.586.486.486
Luas Bangunan: 79m 2
Luas Lahan: 150m 2
Kamar Tidur: 3
Kamar Mandi: 2
a. Atap
genteng
b. Dinding
bata merah
c. Lantai & Pondasi
keramik & cakar ayam


Harga: Rp 2.297.297.297
Luas Bangunan: 109m 2
Luas Lahan: 166m 2
Kamar Tidur: 3
Kamar Mandi: 3
a. Atap
Genteng
b. Dinding
Batu Bata Merah
c. Lantai & Pondasi
Keramik & Ceker ayam


Harga: Rp 2.090.990.991
Luas Bangunan: 79m 2
Luas Lahan: 116m 2
Kamar Tidur: 3
Kamar Mandi: 2
a. Atap
Atap Genteng
b. Dinding
Bata Merah
c. Lantai & Pondasi
Keramik & Cakar Ayam


Harga: Rp 2.855.855.855
Luas Bangunan: 180.43m 2
Luas Lahan: 144m 2
Kamar Tidur: 4
Kamar Mandi: 4
a. Atap
Zincalum & Dak Beton
b. Dinding
Brick Wall
c. Lantai & Pondasi
Homogenous Tile; Ceramic Tile (kitchen) & Minipile


Harga: Rp 3.109.909.909
Luas Bangunan: 149.19m 2
Luas Lahan: 128m 2
Kamar Tidur: 4
Kamar Mandi: 3
a. Atap
Zincalum dan dak beton
b. Dinding
Brick Wall
c. Lantai & Pondasi
Homogeneous Tile; ceramic tile (kitchen) & Minipile


Harga: Rp 1.918.918.919
Luas Bangunan: 95.45m 2
Luas Lahan: 98m 2
Kamar Tidur: 2
Kamar Mandi: 2
a. Atap
Zincalum dan dak beton
b. Dinding
Light Brick
c. Lantai & Pondasi
Homogeneous Tiles & Minipile


Harga: Rp 1.900.000.000
Luas Bangunan: 95.45m 2
Luas Lahan: 98m 2
Kamar Tidur: 2
Kamar Mandi: 2
a. Atap
Zincalum dan dak beton
b. Dinding
Light Brick
c. Lantai & Pondasi
Homogeneous Tile & Minipile


Harga: Rp 2.844.144.144
Luas Bangunan: 136.46m 2
Luas Lahan: 112m 2
Kamar Tidur: 3
Kamar Mandi: 3
a. Atap
Zincalum dan dak beton
b. Dinding
Brick wall
c. Lantai & Pondasi
homogeneous tile & minipile


Harga: Rp 1.881.081.081
Luas Bangunan: 95.45m 2
Luas Lahan: 98m 2
Kamar Tidur: 2
Kamar Mandi: 2
a. Atap
Zincalum dan dak beton
b. Dinding
Brick wall
c. Lantai & Pondasi
Homogeneous tile & minipile


Harga: Rp 2.009.909.909
Luas Bangunan: 95.45m 2
Luas Lahan: 98m 2
Kamar Tidur: 2
Kamar Mandi: 2
a. Atap
Zincalum dan dak beton
b. Dinding
Brick wall
c. Lantai & Pondasi
Homogeneous Tile & Minipile


Harga: Rp 2.844.144.144
Luas Bangunan: 136.46m 2
Luas Lahan: 112m 2
Kamar Tidur: 3
Kamar Mandi: 3
a. Atap
Zincalum dan dak beton
b. Dinding
Brick wall
c. Lantai & Pondasi
Homogeneous Tile & Minipile


Harga: Rp 2.844.144.144
Luas Bangunan: 135.46m 2
Luas Lahan: 112m 2
Kamar Tidur: 3
Kamar Mandi: 3
a. Atap
Zincalum dan dak beton
b. Dinding
Brick Wall
c. Lantai & Pondasi
Homogeneous Tile & Minipile


Harga: Rp 1.790.990.990
Luas Bangunan: 95.45m 2
Luas Lahan: 98m 2
Kamar Tidur: 2
Kamar Mandi: 2
a. Atap
Zincalum dan Dak Beton
b. Dinding
Brick Wall
c. Lantai & Pondasi
Homogeneous Tile & Minipile


Harga: Rp 200.990.909
Luas Bangunan: 95.45m 2
Luas Lahan: 98m 2
Kamar Tidur: 2
Kamar Mandi: 2
a. Atap
Zincalum dan Dak Beton
b. Dinding
Brick Wall
c. Lantai & Pondasi
Homogeneous Tile & Minipile


Harga: Rp 1.880.540.540
Luas Bangunan: 95.45m 2
Luas Lahan: 98m 2
Kamar Tidur: 2
Kamar Mandi: 2
a. Atap
Zincalum dan Dak Beton
b. Dinding
Brick Wall
c. Lantai & Pondasi
Homogeneous Tile & Minipile


Harga: Rp 2.844.144.144
Luas Bangunan: 136.46m 2
Luas Lahan: 112m 2
Kamar Tidur: 3
Kamar Mandi: 3
a. Atap
Zincalum dan Dak Beton
b. Dinding
Brick Wall
c. Lantai & Pondasi
Homogeneous Tile & Minipile


Harga: Rp 2.143.636.639
Luas Bangunan: 79m 2
Luas Lahan: 159m 2
Kamar Tidur: 2
Kamar Mandi: 2
a. Atap
Zincalum dan Dak Beton
b. Dinding
Brick Wall
c. Lantai & Pondasi
Homogeneous Tile & Minipile


Harga: Rp 2.827.297.297
Luas Bangunan: 180.43m 2
Luas Lahan: 144m 2
Kamar Tidur: 3
Kamar Mandi: 3
a. Atap
Zincalum dan Dak Beton
b. Dinding
Brick Wall
c. Lantai & Pondasi
Homogeneous Tile & Minipile


Harga: Rp 1.683.783.783
Luas Bangunan: 79m 2
Luas Lahan: 120m 2
Kamar Tidur: 3
Kamar Mandi: 3
a. Atap
Bitumen
b. Dinding
Brick wall
c. Lantai & Pondasi
60x60 homogeneous Tile; 30x30 ceramic tile & minipile


Harga: Rp 3.784.684.684
Luas Bangunan: 184.8m 2
Luas Lahan: 200m 2
Kamar Tidur: 3
Kamar Mandi: 4
a. Atap
Cor dak dan Atap Bitumen
b. Dinding
brick wall
c. Lantai & Pondasi
local marble (living room); 60x60 homogeneous Tile & minipile


Harga: Rp 1.881.981.981
Luas Bangunan: 95.45m 2
Luas Lahan: 98m 2
Kamar Tidur: 2
Kamar Mandi: 2
a. Atap
Zincalum dan Dak Beton
b. Dinding
Brick wall
c. Lantai & Pondasi
Homogeneous Tile & Minipile


Harga: Rp 2.399.099.099
Luas Bangunan: 110.73m 2
Luas Lahan: 98m 2
Kamar Tidur: 3
Kamar Mandi: 2
a. Atap
Zincalum dan Dak Beton
b. Dinding
Brick Wall
c. Lantai & Pondasi
Homogeneous Tile & Minipile


Harga: Rp 1.522.972.972
Luas Bangunan: 95.45m 2
Luas Lahan: 98m 2
Kamar Tidur: 2
Kamar Mandi: 2
a. Atap
Zincalum dan Dek Beton
b. Dinding
Brick Wall
c. Lantai & Pondasi
Homogeneous Tile & Minipile


Harga: Rp 2.243.243.243
Luas Bangunan: 149.19m 2
Luas Lahan: 128m 2
Kamar Tidur: 4
Kamar Mandi: 3
a. Atap
Zincalum & Dak Beton
b. Dinding
Brick Wall
c. Lantai & Pondasi
Homogeneous Tile; Ceramic Tile (Kitchen) & Minipile


Harga: Rp 2.055.351.351
Luas Bangunan: 95.45m 2
Luas Lahan: 165.7m 2
Kamar Tidur: 3
Kamar Mandi: 3
a. Atap
Zincalum dan Dak Beton
b. Dinding
Brick wall
c. Lantai & Pondasi
Homogeneous Tile & Minipile


Harga: Rp 2.770.180.180
Luas Bangunan: 180.43m 2
Luas Lahan: 144m 2
Kamar Tidur: 4
Kamar Mandi: 4
a. Atap
Zincalum & Dak Beton
b. Dinding
Brick Wall
c. Lantai & Pondasi
Homogeneous Tile & Dak Beton & Minipile


Harga: Rp 2.855.855.856
Luas Bangunan: 180.43m 2
Luas Lahan: 144m 2
Kamar Tidur: 4
Kamar Mandi: 4
a. Atap
Zincalum & Dak Beton
b. Dinding
Brick Wall
c. Lantai & Pondasi
Homogeneous Tile, Ceramic Tile (Kitchen) & Minipile


Harga: Rp 2.243.243.243
Luas Bangunan: 149.19m 2
Luas Lahan: 128m 2
Kamar Tidur: 4
Kamar Mandi: 3
a. Atap
Zincalum & Dak Beton
b. Dinding
Brick Wall
c. Lantai & Pondasi
Homogeneous Tile; Ceramic Tile (Kitchen) & Minipile


Harga: Rp 2.221.621.622
Luas Bangunan: 149.19m 2
Luas Lahan: 128m 2
Kamar Tidur: 4
Kamar Mandi: 4
a. Atap
Zincalum & Dak Beton
b. Dinding
Brick Wall
c. Lantai & Pondasi
Homogeneous Tile; Ceramic Tile (kitchen) & Minipile


Harga: Rp 2.854.945.945
Luas Bangunan: 180.43m 2
Luas Lahan: 144m 2
Kamar Tidur: 4
Kamar Mandi: 4
a. Atap
Zincalum & Dak Beton
b. Dinding
Brick Wall
c. Lantai & Pondasi
Homogenesous Tile & Dak Beton & Minipile


Harga: Rp 2.518.918.918
Luas Bangunan: 149.19m 2
Luas Lahan: 128m 2
Kamar Tidur: 4
Kamar Mandi: 3
a. Atap
Zincalum dan dak beton
b. Dinding
Brick Wall
c. Lantai & Pondasi
Homogeneous Tile; Ceramic Tile (Kitchen) & Minipile


Harga: Rp 2.898.504.504
Luas Bangunan: 180.43m 2
Luas Lahan: 144m 2
Kamar Tidur: 4
Kamar Mandi: 4
a. Atap
Zincalum dan Dak Beton
b. Dinding
Brick Wall
c. Lantai & Pondasi
Homogeneous Tile & Minipile


Harga: Rp 2.160.360.360
Luas Bangunan: 110.73m 2
Luas Lahan: 98m 2
Kamar Tidur: 3
Kamar Mandi: 3
a. Atap
Zincalum dan dak beton
b. Dinding
Brick wall
c. Lantai & Pondasi
Homogeneous Tile & Minipile


Harga: Rp 1.919.819.819
Luas Bangunan: 95.45m 2
Luas Lahan: 98m 2
Kamar Tidur: 2
Kamar Mandi: 2
a. Atap
Zincalum dan Dak Beton
b. Dinding
Brick Wall
c. Lantai & Pondasi
Homogeneous Tile & Minipile


Harga: Rp 2.914.414.414
Luas Bangunan: 180.43m 2
Luas Lahan: 144m 2
Kamar Tidur: 4
Kamar Mandi: 4
a. Atap
Zincalum & Dak Beton
b. Dinding
Brick Wall
c. Lantai & Pondasi
Homogenous Tile; Ceramic Tile (Kitchen) & Minipile


Harga: Rp 2.518.918.918
Luas Bangunan: 149.19m 2
Luas Lahan: 128m 2
Kamar Tidur: 3
Kamar Mandi: 3
a. Atap
Zincalum & Dak Beton
b. Dinding
Brick Wall
c. Lantai & Pondasi
Homogeneous Tile; Ceramic Tile (Kitchen) & Minipile


Harga: Rp 2.243.243.243
Luas Bangunan: 149.19m 2
Luas Lahan: 128m 2
Kamar Tidur: 3
Kamar Mandi: 3
a. Atap
Zincalum dan Dak Beton
b. Dinding
Brick Wall
c. Lantai & Pondasi
Homogeneous Tile & Minipile


Harga: Rp 2.855.855.855
Luas Bangunan: 180.43m 2
Luas Lahan: 144m 2
Kamar Tidur: 4
Kamar Mandi: 4
a. Atap
Zincalum & Dak Beton
b. Dinding
Brick Wall
c. Lantai & Pondasi
Homogeneous Tile; Ceramic Tile (Kitchen) & Minipile


Harga: Rp 2.855.855.855
Luas Bangunan: 180.43m 2
Luas Lahan: 144m 2
Kamar Tidur: 4
Kamar Mandi: 4
a. Atap
Zincalum & Dak Beton
b. Dinding
Brick Wall
c. Lantai & Pondasi
Homogeneous Tile; Ceramic Tile (Kitchen) & Minipile


Harga: Rp 2.914.414.414
Luas Bangunan: 180.43m 2
Luas Lahan: 144m 2
Kamar Tidur: 4
Kamar Mandi: 4
a. Atap
Zincalum & Dak Beton
b. Dinding
Brick Wall
c. Lantai & Pondasi
Homogeneous Tile; Ceramic Tile & Minipile


Harga: Rp 3.226.054.054
Luas Bangunan: 184.8m 2
Luas Lahan: 160m 2
Kamar Tidur: 4
Kamar Mandi: 4
a. Atap
Bitumen & Dak Beton
b. Dinding
Brick Wall
c. Lantai & Pondasi
Homogeneous Tile; Ceramic Tile (kitchen) & minipile


Harga: Rp 2.582.882.883
Luas Bangunan: 184.8m 2
Luas Lahan: 144m 2
Kamar Tidur: 4
Kamar Mandi: 4
a. Atap
Bitmen & Dak Beton
b. Dinding
Brick Wall
c. Lantai & Pondasi
Homogeneous Tile; Ceramic Tile (kitchen) & minipile


Harga: Rp 2.855.855.855
Luas Bangunan: 180.43m 2
Luas Lahan: 144m 2
Kamar Tidur: 4
Kamar Mandi: 4
a. Atap
Zincalum & Dak Beton
b. Dinding
Brick Wall
c. Lantai & Pondasi
Homogeneous Tile; Ceramic Tile & minipile


Harga: Rp 2.855.855.856
Luas Bangunan: 179m 2
Luas Lahan: 144m 2
Kamar Tidur: 4
Kamar Mandi: 3
a. Atap
Zincalum & Dak beton
b. Dinding
Brick Wall
c. Lantai & Pondasi
Homogeneous Tile & Dak Beton & minipile


Harga: Rp 3.268.999.999
Luas Bangunan: 180.43m 2
Luas Lahan: 144m 2
Kamar Tidur: 4
Kamar Mandi: 4
a. Atap
Zincalum & Dak Beton
b. Dinding
Brick Wall
c. Lantai & Pondasi
Homogeneous Tile & Dak Beton & Minipile


Harga: Rp 1.628.900.901
Luas Bangunan: 95.45m 2
Luas Lahan: 98m 2
Kamar Tidur: 2
Kamar Mandi: 2
a. Atap
Zincalum dan dak beton
b. Dinding
Light Brick
c. Lantai & Pondasi
Homogeneous Tiles & Minipile
Jalan Raya Bojongsari no. 53 JAWA BARAT, KOTA DEPOK, Bojongsari, Bojongsari
Telp : +6281388854511
Email : sales.admin@vasanta.co.id
Website : shila.co.id