ID Lokasi : DPK0310122025T001
JAWA BARAT, KOTA DEPOK, Sawangan, Kedaung
PT INDO HAUZ LAND
PERKUMPULAN ASOSIASI PENGEMBANG PERUMAHAN DAN PERMUKIMAN SELURUH INDONESIA
(APERSI)
Subsidi : 0 Unit
Terjual Subsidi : 0 Unit
Komersil : 37 Unit
Terjual Komersil : 0 Unit
Lihat Siteplan Digital




Harga: Rp 700.000.000
Luas Bangunan: 60m 2
Luas Lahan: 84m 2
Kamar Tidur: 2
Kamar Mandi: 2
a. Atap
Genteng Beton, Allumunium Foil, Rangka Baja Ringan
b. Dinding
Bata diplester aci & cat
c. Lantai & Pondasi
Granit Tile 60x60, 40x40, 20x20 & Beton bertulang


Harga: Rp 473.550.000
Luas Bangunan: 36m 2
Luas Lahan: 84m 2
Kamar Tidur: 1
Kamar Mandi: 1
a. Atap
Genteng Beton, Allumunium Foil, Rangka Baja Ringan
b. Dinding
Bata diplester aci & cat
c. Lantai & Pondasi
Granit Tile 60x60, 40x40, 20x20 & Beton bertulang


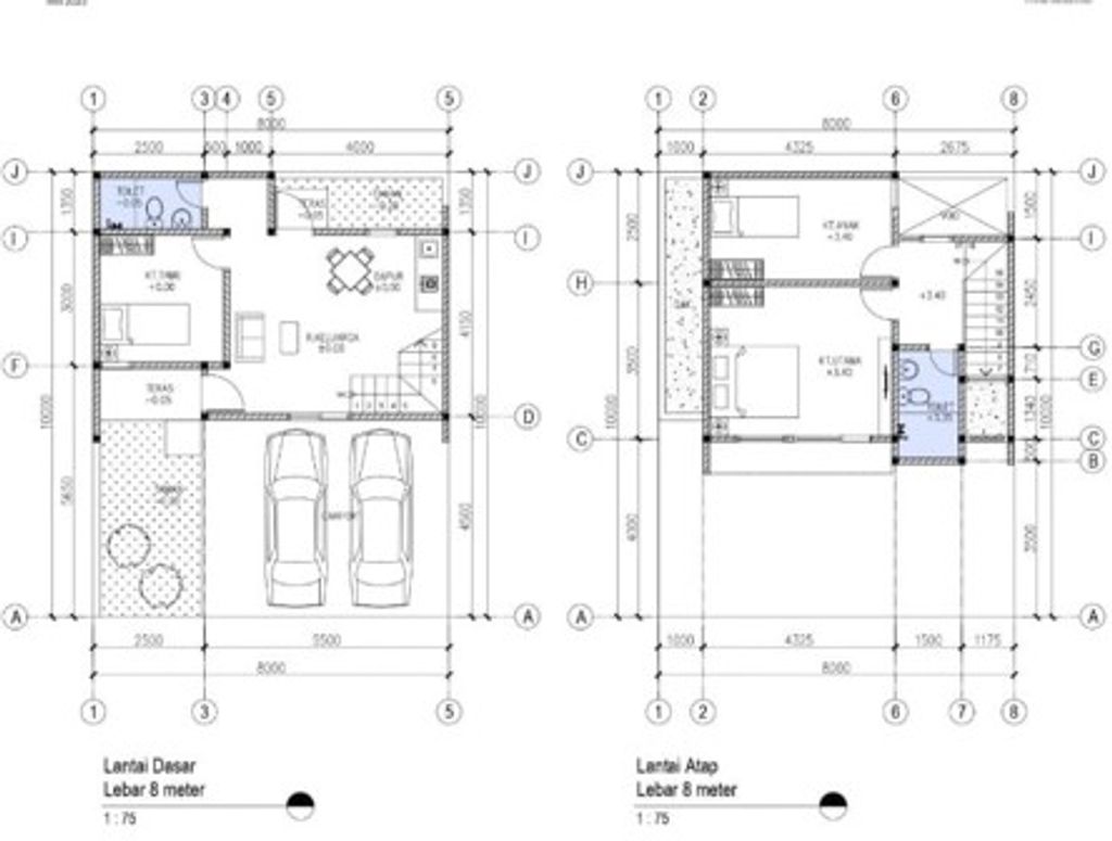
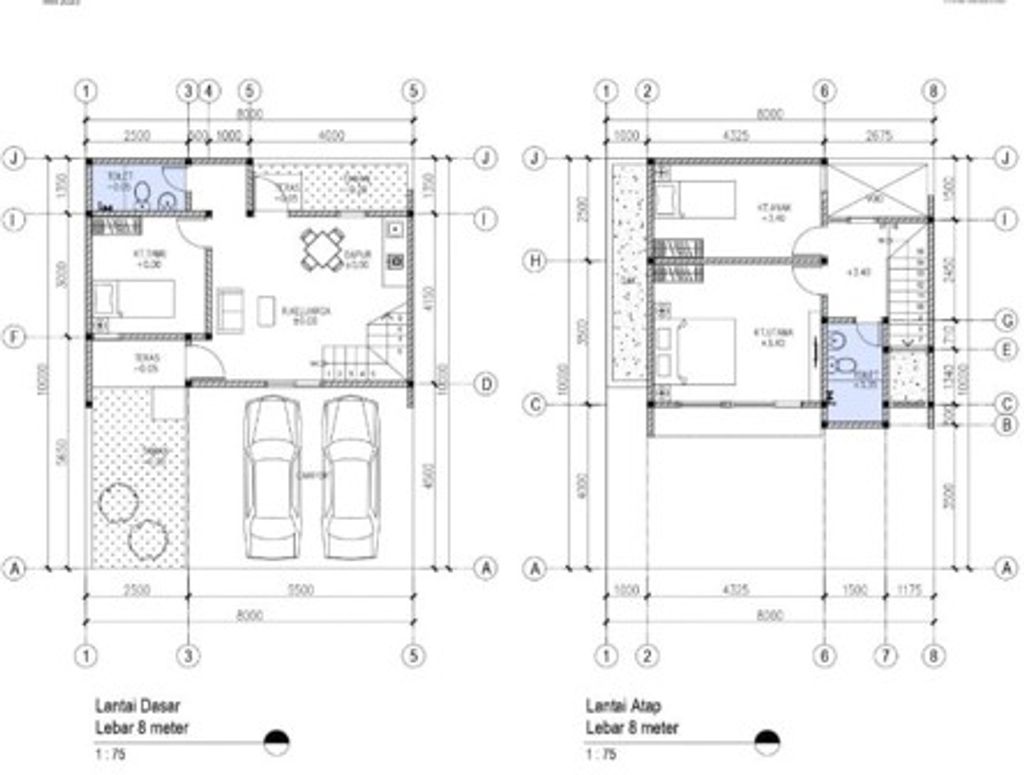
Harga: Rp 750.000.000
Luas Bangunan: 80m 2
Luas Lahan: 80m 2
Kamar Tidur: 2
Kamar Mandi: 2
a. Atap
Genteng Beton, allumunium foil, rangka atap baja ringan
b. Dinding
Bata diplester, aci dan cat
c. Lantai & Pondasi
Granite Tile 60 x 60 (interior), 40 x 40 (teras), 20 x 20 (kamar mandi) & Benton bertulang (borpile)


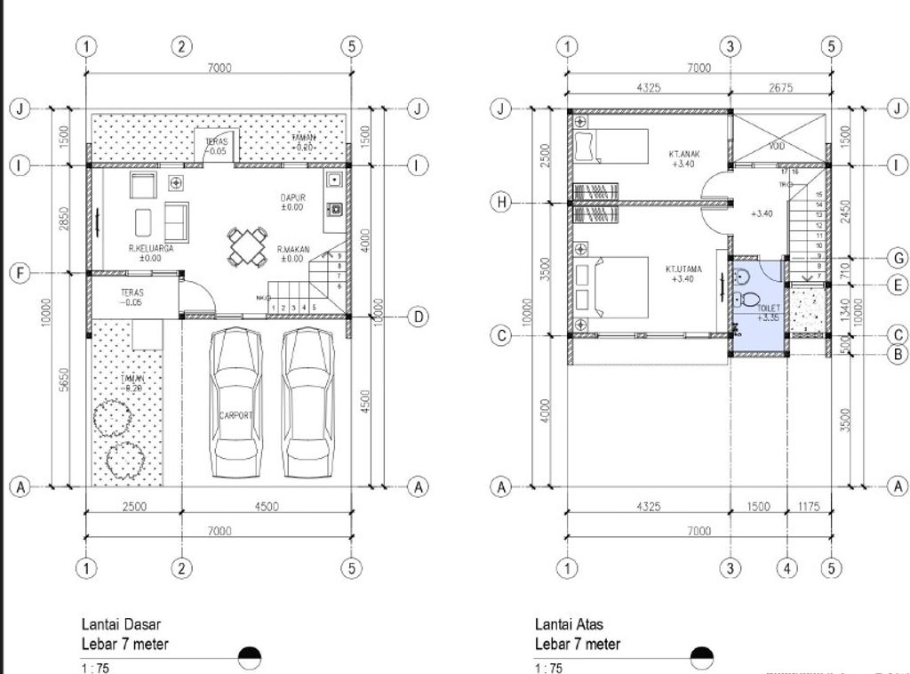
Harga: Rp 700.000.000
Luas Bangunan: 70m 2
Luas Lahan: 70m 2
Kamar Tidur: 2
Kamar Mandi: 2
a. Atap
Genteng Beton, Allumunium Foil, rangka atap baja ringan
b. Dinding
Bata diplester, aci dan cat
c. Lantai & Pondasi
Granite Tile 60x60 (interior), 40x40 (teras), 20x20 (kamar mandi) & Beton bertulang (borpile)