Kampung cendikia

ID Lokasi : GDT0120082020T003
LAMPUNG, KAB PESAWARAN, Gedong Tataan, Sukaraja
SEBATHIN CENDIKIA KARYA
Himpunan Pengembang Permukiman dan Perumahan Rakyat (HIMPERRA)


Status Rumah

Subsidi : 18 Unit

Terjual Subsidi : 14 Unit

Komersil : 0 Unit

Terjual Komersil : 0 Unit

Lihat Siteplan Digital

Peta Lokasi



Kantor Pemasaran

JL.PURNAWIRAWAN RAYA no. 16 LAMPUNG, KOTA BANDAR LAMPUNG, Rajabasa, Gedong Meneng

Telp : 0811727278

Email : ptsckdev@gmail.com

Website :

Foto Lokasi


foto gerbang perumahan Kampung cendikia
Foto Gerbang/Jalan Utama
foto contoh rumah perumahan Kampung cendikia
Foto Rumah Contoh
foto posisi tengah perumahan Kampung cendikia
Foto Posisi Tengah Lokasi

Tipe Rumah


1. Tipe subsidi (subsidi)
foto tampak rumah tipe subsidi perumahan Kampung cendikia
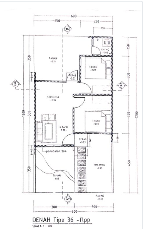
foto denah rumah tipe subsidi perumahan Kampung cendikia

Harga: Rp 135.000.000

Luas Bangunan: 36m 2

Luas Lahan: 72m 2

Kamar Tidur: 2

Kamar Mandi: 1

Spesifikasi Teknis

a. Atap
rangka baja ringan, genteng mantili

b. Dinding
dinding bata merah, plester, aci, finishing cat

c. Lantai & Pondasi
keramik ruangan 40x40, wc 20x20 & pondasi batu belah


Peta Lokasi


Kantor Pemasaran

JL.PURNAWIRAWAN RAYA no. 16 LAMPUNG, KOTA BANDAR LAMPUNG, Rajabasa, Gedong Meneng

Telp : 0811727278

Email : ptsckdev@gmail.com

Website :