Grha Asri Sukajaya

ID Lokasi : GDT1020082020T004
LAMPUNG, KAB PESAWARAN, Teluk Pandan, Sukajaya Lempasing
GRHA PRABALA SEJAHTERA
Himpunan Pengembang Permukiman dan Perumahan Rakyat (HIMPERRA)


Status Rumah

Subsidi : 71 Unit

Terjual Subsidi : 50 Unit

Komersil : 0 Unit

Terjual Komersil : 0 Unit

Lihat Siteplan Digital

Peta Lokasi



Kantor Pemasaran

Jl. Cut Nyak Dien No. 4, Palapa, Durian Payung, Bandar Lampung no. 04 LAMPUNG, KOTA BANDAR LAMPUNG, Tanjungkarang Pusat, Durian Payung

Telp : 081390283075

Email : grhaasrisukajaya@gmail.com

Website : https://www.facebook.com/Grha.Asri.Sukajaya.Lampung/

Foto Lokasi


foto gerbang perumahan Grha Asri Sukajaya
Foto Gerbang/Jalan Utama
foto contoh rumah perumahan Grha Asri Sukajaya
Foto Rumah Contoh
foto posisi tengah perumahan Grha Asri Sukajaya
Foto Posisi Tengah Lokasi

Tipe Rumah


1. Tipe 36/78 (subsidi)
foto tampak rumah tipe 36/78 perumahan Grha Asri Sukajaya
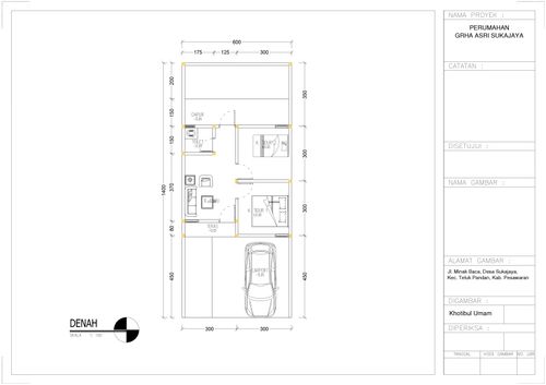
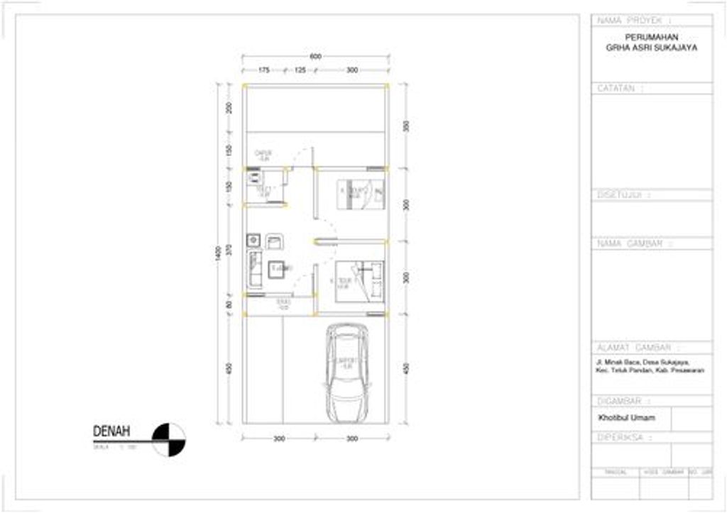
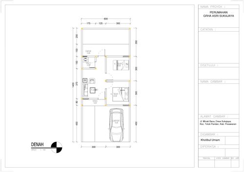
foto denah rumah tipe 36/78 perumahan Grha Asri Sukajaya

Harga: Rp 150.500.000

Luas Bangunan: 36m 2

Luas Lahan: 78m 2

Kamar Tidur: 2

Kamar Mandi: 1

Spesifikasi Teknis

a. Atap
Spandek Zincalume

b. Dinding
bata bolong, plester, acci finishing cat

c. Lantai & Pondasi
kramik 40x40 & pondasi tapak batu belah

2. Tipe 36/78 (subsidi)
foto tampak rumah tipe 36/78 perumahan Grha Asri Sukajaya
foto denah rumah tipe 36/78 perumahan Grha Asri Sukajaya

Harga: Rp 150.500.000

Luas Bangunan: 36m 2

Luas Lahan: 78m 2

Kamar Tidur: 2

Kamar Mandi: 1

Spesifikasi Teknis

a. Atap
spandek lurus

b. Dinding
bata diplester di cat

c. Lantai & Pondasi
tapak beton bertulang & semen halus

3. Tipe 36/84 (subsidi)
foto tampak rumah tipe 36/84 perumahan Grha Asri Sukajaya
foto denah rumah tipe 36/84 perumahan Grha Asri Sukajaya

Harga: Rp 162.000.000

Luas Bangunan: 36m 2

Luas Lahan: 84m 2

Kamar Tidur: 2

Kamar Mandi: 1

Spesifikasi Teknis

a. Atap
spandek Lurus

b. Dinding
Bata Diplaster dicat

c. Lantai & Pondasi
Tapak Beton Batu Bertulang & Semen Halus


Peta Lokasi


Kantor Pemasaran

Jl. Cut Nyak Dien No. 4, Palapa, Durian Payung, Bandar Lampung no. 04 LAMPUNG, KOTA BANDAR LAMPUNG, Tanjungkarang Pusat, Durian Payung

Telp : 081390283075

Email : grhaasrisukajaya@gmail.com

Website : https://www.facebook.com/Grha.Asri.Sukajaya.Lampung/