Aa8 residence

ID Lokasi : GGP0610032023T001
DKI JAKARTA, KOTA ADM JAKARTA BARAT, Kalideres, Tegal Alur
SINAR PERMATA PELANGI
REAL ESTATE INDONESIA (REI)


Status Rumah

Subsidi : 0 Unit

Terjual Subsidi : 0 Unit

Komersil : 0 Unit

Terjual Komersil : 0 Unit

Lihat Siteplan Digital

Peta Lokasi



Kantor Pemasaran

Jl. Satu Maret, RT.1/RW.4, Pegadungan, Kec. Kalideres, Kota Jakarta Barat, Daerah Khusus Ibukota Jakarta 11830 no. 02 DKI JAKARTA, KOTA ADM JAKARTA BARAT, Kalideres, Pegadungan

Telp : 02155955889

Email : sinarpermatapelangi@gmail.com

Website : www.palmcity.co.id

Foto Lokasi


foto gerbang perumahan Aa8 residence
Foto Gerbang/Jalan Utama
foto contoh rumah perumahan Aa8 residence
Foto Rumah Contoh
foto posisi tengah perumahan Aa8 residence
Foto Posisi Tengah Lokasi

Tipe Rumah


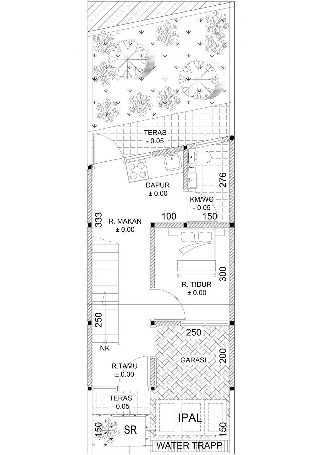
1. Tipe Hoek (komersil)
foto tampak rumah tipe Hoek perumahan Aa8 residence
foto denah rumah tipe Hoek perumahan Aa8 residence

Harga: Rp 1.780.000.000

Luas Bangunan: 50.24m 2

Luas Lahan: 52.6m 2

Kamar Tidur: 2

Kamar Mandi: 2

Spesifikasi Teknis

a. Atap
RANGKA BAJA RINGAN ATAP GENTING

b. Dinding
BATA RINGAN PLESTER ACI FINISH CAT

c. Lantai & Pondasi
FINISH KERAMIK 60X60 & TIANG PANCANG

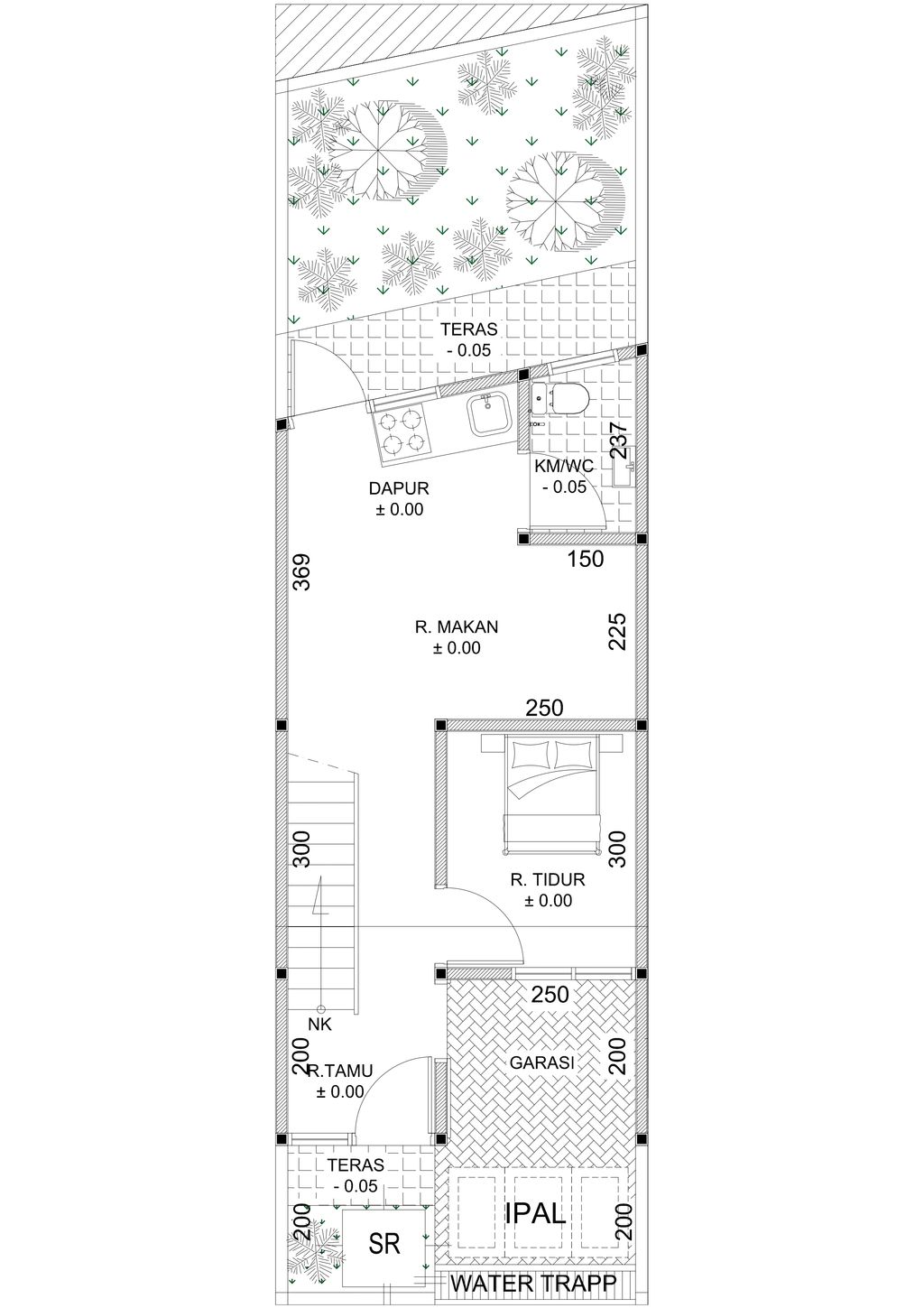
2. Tipe Standart (komersil)
foto tampak rumah tipe Standart perumahan Aa8 residence
foto denah rumah tipe Standart perumahan Aa8 residence

Harga: Rp 1.700.000.000

Luas Bangunan: 70.46m 2

Luas Lahan: 60.2m 2

Kamar Tidur: 3

Kamar Mandi: 2

Spesifikasi Teknis

a. Atap
RANGKA BAJA RINGAN ATAP GENTING

b. Dinding
BATA RINGAN PLESTER ACI FINISH CAT

c. Lantai & Pondasi
FINISH KERAMIK 60X60 & TIANG PANCANG

3. Tipe Standart (komersil)
foto tampak rumah tipe Standart perumahan Aa8 residence
foto denah rumah tipe Standart perumahan Aa8 residence

Harga: Rp 1.850.000.000

Luas Bangunan: 87.22m 2

Luas Lahan: 68.5m 2

Kamar Tidur: 3

Kamar Mandi: 2

Spesifikasi Teknis

a. Atap
RANGKA BAJA RINGAN ATAP GENTING

b. Dinding
BATA RINGAN PLESTER ACI FINISH CAT

c. Lantai & Pondasi
FINISH KERAMIK 60X60 & TIANG PANCANG


Peta Lokasi


Kantor Pemasaran

Jl. Satu Maret, RT.1/RW.4, Pegadungan, Kec. Kalideres, Kota Jakarta Barat, Daerah Khusus Ibukota Jakarta 11830 no. 02 DKI JAKARTA, KOTA ADM JAKARTA BARAT, Kalideres, Pegadungan

Telp : 02155955889

Email : sinarpermatapelangi@gmail.com

Website : www.palmcity.co.id