ID Lokasi : GGP0810052024T001
DKI JAKARTA, KOTA ADM JAKARTA BARAT, Kembangan, Joglo
PT PENTA ADI SAMUDERA
REAL ESTATE INDONESIA
(REI)
Subsidi : 0 Unit
Terjual Subsidi : 0 Unit
Komersil : 1 Unit
Terjual Komersil : 21 Unit
Lihat Siteplan DigitalJL. RAYA JOGLO no. 18 DKI JAKARTA, KOTA ADM JAKARTA BARAT, Kembangan, Joglo
Telp : 02125684888
Email : pasamudera.pajak@gmail.com
Website : -





Harga: Rp 2.411.000.000
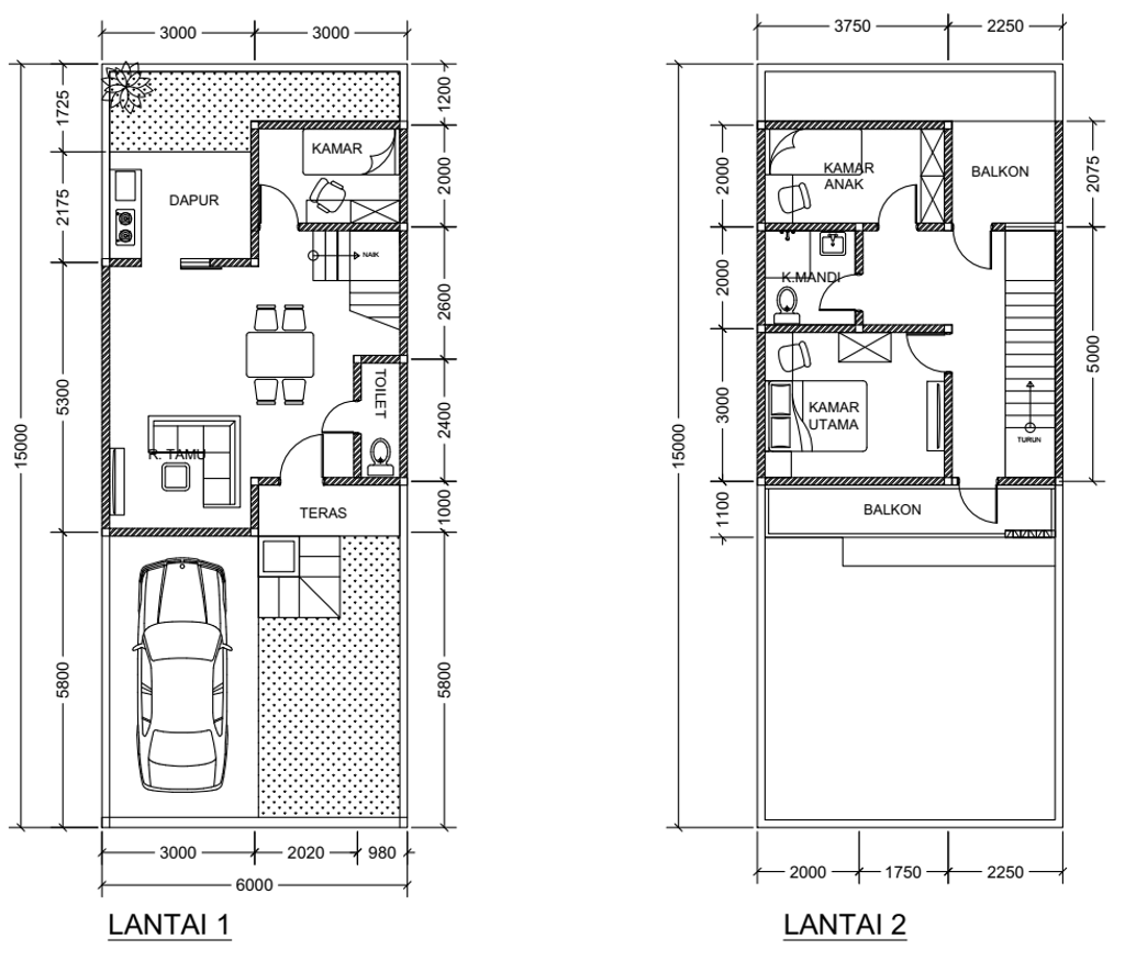
Luas Bangunan: 113m 2
Luas Lahan: 108m 2
Kamar Tidur: 4
Kamar Mandi: 2
a. Atap
Struktur rangka baja ringan dengan penutup atap genteng keramik
b. Dinding
Bata Merah diplester Aci dan Finishing cat
c. Lantai & Pondasi
Keramik Lantai HT berukuran 60x60cm & Mini Bore pile


Harga: Rp 2.232.000.000
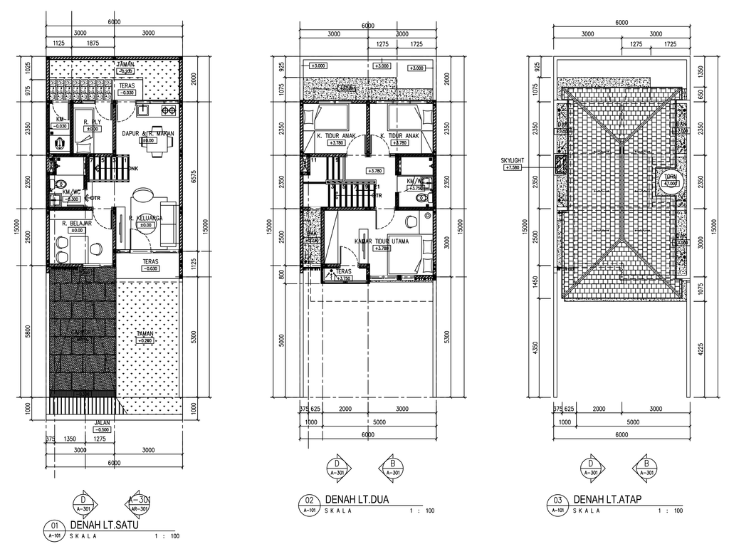
Luas Bangunan: 90m 2
Luas Lahan: 109m 2
Kamar Tidur: 4
Kamar Mandi: 2
a. Atap
Struktur rangka baja ringan dengan penutup atap genteng keramik
b. Dinding
Bata Merah diplester Aci dan Finishing cat
c. Lantai & Pondasi
Keramik Lantai HT berukuran 60x60cm & Mini Bore pile


Harga: Rp 2.277.000.000
Luas Bangunan: 90m 2
Luas Lahan: 112m 2
Kamar Tidur: 4
Kamar Mandi: 2
a. Atap
Struktur rangka baja ringan dengan penutup atap genteng keramik
b. Dinding
Bata Merah diplester Aci dan Finishing cat
c. Lantai & Pondasi
Keramik Lantai HT berukuran 60x60cm & Mini Bore pile


Harga: Rp 2.852.250.000
Luas Bangunan: 100.6m 2
Luas Lahan: 134m 2
Kamar Tidur: 4
Kamar Mandi: 2
a. Atap
Struktur rangka baja ringan dengan penutup atap genteng keramik
b. Dinding
Bata Merah diplester Aci dan Finishing cat
c. Lantai & Pondasi
Keramik Lantai HT berukuran 60x60cm & Mini Bore pile


Harga: Rp 2.873.600.000
Luas Bangunan: 100.6m 2
Luas Lahan: 136m 2
Kamar Tidur: 4
Kamar Mandi: 2
a. Atap
Struktur rangka baja ringan dengan penutup atap genteng keramik
b. Dinding
Bata Merah diplester Aci dan Finishing cat
c. Lantai & Pondasi
Keramik Lantai HT berukuran 60x60cm & Mini Bore pile


Harga: Rp 3.621.500.000
Luas Bangunan: 113m 2
Luas Lahan: 194m 2
Kamar Tidur: 4
Kamar Mandi: 2
a. Atap
Struktur rangka baja ringan dengan penutup atap genteng keramik
b. Dinding
Bata Merah diplester Aci dan Finishing cat
c. Lantai & Pondasi
Keramik Lantai HT berukuran 60x60cm & Mini Bore pile


Harga: Rp 2.191.453.000
Luas Bangunan: 100.2m 2
Luas Lahan: 90m 2
Kamar Tidur: 4
Kamar Mandi: 2
a. Atap
Struktur rangka baja ringan dengan penutup atap genteng keramik
b. Dinding
Bata Merah diplester Aci dan Finishing cat
c. Lantai & Pondasi
Keramik Lantai HT berukuran 60x60cm & Mini Bore pile


Harga: Rp 2.060.000.000
Luas Bangunan: 72m 2
Luas Lahan: 90m 2
Kamar Tidur: 3
Kamar Mandi: 2
a. Atap
Struktur rangka baja ringan dengan penutup atap genteng keramik
b. Dinding
Bata Merah diplester Aci dan Finishing cat
c. Lantai & Pondasi
Lantai HT berukuran 60x60cm & Plat beton bertulang


Harga: Rp 2.115.556.000
Luas Bangunan: 72m 2
Luas Lahan: 90m 2
Kamar Tidur: 3
Kamar Mandi: 2
a. Atap
Struktur rangka baja ringan dengan penutup atap genteng keramik
b. Dinding
Bata Merah diplester Aci dan Finishing cat
c. Lantai & Pondasi
Keramik Lantai HT berukuran 60x60cm & Plat beton bertulang


Harga: Rp 2.060.000.000
Luas Bangunan: 72m 2
Luas Lahan: 90m 2
Kamar Tidur: 3
Kamar Mandi: 2
a. Atap
Struktur rangka baja ringan dengan penutup atap genteng keramik
b. Dinding
Bata Merah diplester Aci dan Finishing cat
c. Lantai & Pondasi
Lantai HT berukuran 60x60cm & Plat beton bertulang


Harga: Rp 1.940.000.000
Luas Bangunan: 72m 2
Luas Lahan: 90m 2
Kamar Tidur: 3
Kamar Mandi: 2
a. Atap
Struktur atap baja ringan dengan penutup atap genteng keramik
b. Dinding
Bata Merah diplester Aci dan Finishing cat
c. Lantai & Pondasi
Lantai HT berukuran 60x60cm & Plat beton bertulang


Harga: Rp 1.950.000.000
Luas Bangunan: 80m 2
Luas Lahan: 90m 2
Kamar Tidur: 3
Kamar Mandi: 2
a. Atap
Struktur rangka baja ringan dengan penutup atap genteng keramik
b. Dinding
Bata Merah diplester Aci dan Finishing cat
c. Lantai & Pondasi
Lantai HT berukuran 60x60cm & Plat beton bertulang


Harga: Rp 1.920.000.000
Luas Bangunan: 80m 2
Luas Lahan: 90m 2
Kamar Tidur: 3
Kamar Mandi: 2
a. Atap
Struktur rangka baja ringan dengan penutup atap genteng keramik
b. Dinding
Bata Merah diplester Aci dan Finishing cat
c. Lantai & Pondasi
Lantai HT berukuran 60x60cm & Plat beton bertulang


Harga: Rp 1.940.000.000
Luas Bangunan: 80m 2
Luas Lahan: 90m 2
Kamar Tidur: 3
Kamar Mandi: 2
a. Atap
Struktur rangka baja ringan dengan penutup atap genteng keramik
b. Dinding
Bata Merah diplester Aci dan Finishing cat
c. Lantai & Pondasi
Lantai HT berukuran 60x60cm & Plat beton bertulang


Harga: Rp 2.132.200.000
Luas Bangunan: 80m 2
Luas Lahan: 90m 2
Kamar Tidur: 3
Kamar Mandi: 2
a. Atap
Struktur rangka baja ringan dengan penutup atap genteng keramik
b. Dinding
Bata Merah diplester Aci dan Finishing cat
c. Lantai & Pondasi
Lantai HT berukuran 60x60cm & Plat beton bertulang


Harga: Rp 1.970.000.000
Luas Bangunan: 96m 2
Luas Lahan: 90m 2
Kamar Tidur: 3
Kamar Mandi: 2
a. Atap
Struktur rangka baja ringan dengan penutup atap genteng keramik
b. Dinding
Bata Merah diplester Aci dan Finishing cat
c. Lantai & Pondasi
Lantai HT berukuran 60x60cm & Plat beton bertulang


Harga: Rp 1.985.000.000
Luas Bangunan: 80m 2
Luas Lahan: 90m 2
Kamar Tidur: 3
Kamar Mandi: 2
a. Atap
Struktur rangka baja ringan dengan penutup atap genteng keramik
b. Dinding
Bata Merah diplester Aci dan Finishing cat
c. Lantai & Pondasi
Lantai HT berukuran 60x60cm & Plat beton bertulang


Harga: Rp 2.108.945.000
Luas Bangunan: 80m 2
Luas Lahan: 90m 2
Kamar Tidur: 3
Kamar Mandi: 2
a. Atap
Struktur rangka baja ringan dengan penutup atap genteng keramik
b. Dinding
Bata Merah diplester Aci dan Finishing cat
c. Lantai & Pondasi
Lantai HT berukuran 60x60cm & Plat beton bertulang


Harga: Rp 1.985.000.000
Luas Bangunan: 80m 2
Luas Lahan: 90m 2
Kamar Tidur: 3
Kamar Mandi: 2
a. Atap
Struktur rangka baja ringan dengan penutup atap genteng keramik
b. Dinding
Bata Merah diplester Aci dan Finishing cat
c. Lantai & Pondasi
Lantai HT berukuran 60x60cm & Plat beton bertulang


Harga: Rp 2.337.550.000
Luas Bangunan: 95m 2
Luas Lahan: 90m 2
Kamar Tidur: 4
Kamar Mandi: 2
a. Atap
Struktur rangka baja ringan dengan penutup atap genteng keramik
b. Dinding
Bata Merah diplester Aci dan Finishing cat
c. Lantai & Pondasi
Keramik Lantai HT berukuran 60x60cm & Plat beton bertulang


Harga: Rp 1.983.000.000
Luas Bangunan: 96m 2
Luas Lahan: 90m 2
Kamar Tidur: 3
Kamar Mandi: 2
a. Atap
Struktur rangka baja ringan dengan penutup atap genteng keramik
b. Dinding
Bata Merah diplester Aci dan Finishing cat
c. Lantai & Pondasi
Keramik Lantai HT berukuran 60x60cm & Plat beton bertulang


Harga: Rp 1.950.000.000
Luas Bangunan: 96m 2
Luas Lahan: 90m 2
Kamar Tidur: 3
Kamar Mandi: 2
a. Atap
Struktur rangka baja ringan dengan penutup atap genteng keramik
b. Dinding
Bata Merah diplester Aci dan Finishing cat
c. Lantai & Pondasi
Lantai HT berukuran 60x60cm & Plat beton bertulang
JL. RAYA JOGLO no. 18 DKI JAKARTA, KOTA ADM JAKARTA BARAT, Kembangan, Joglo
Telp : 02125684888
Email : pasamudera.pajak@gmail.com
Website : -