ID Lokasi : GRT0420062025T001
JAWA BARAT, KAB GARUT, Tarogong Kaler, Sirnajaya
PT UTAMA MULYA FAMILY
PERKUMPULAN ASOSIASI PENGEMBANG PERUMAHAN DAN PERMUKIMAN SELURUH INDONESIA
(APERSI)
Subsidi : 0 Unit
Terjual Subsidi : 0 Unit
Komersil : 1 Unit
Terjual Komersil : 25 Unit
Lihat Siteplan Digital




Harga: Rp 265.000.000
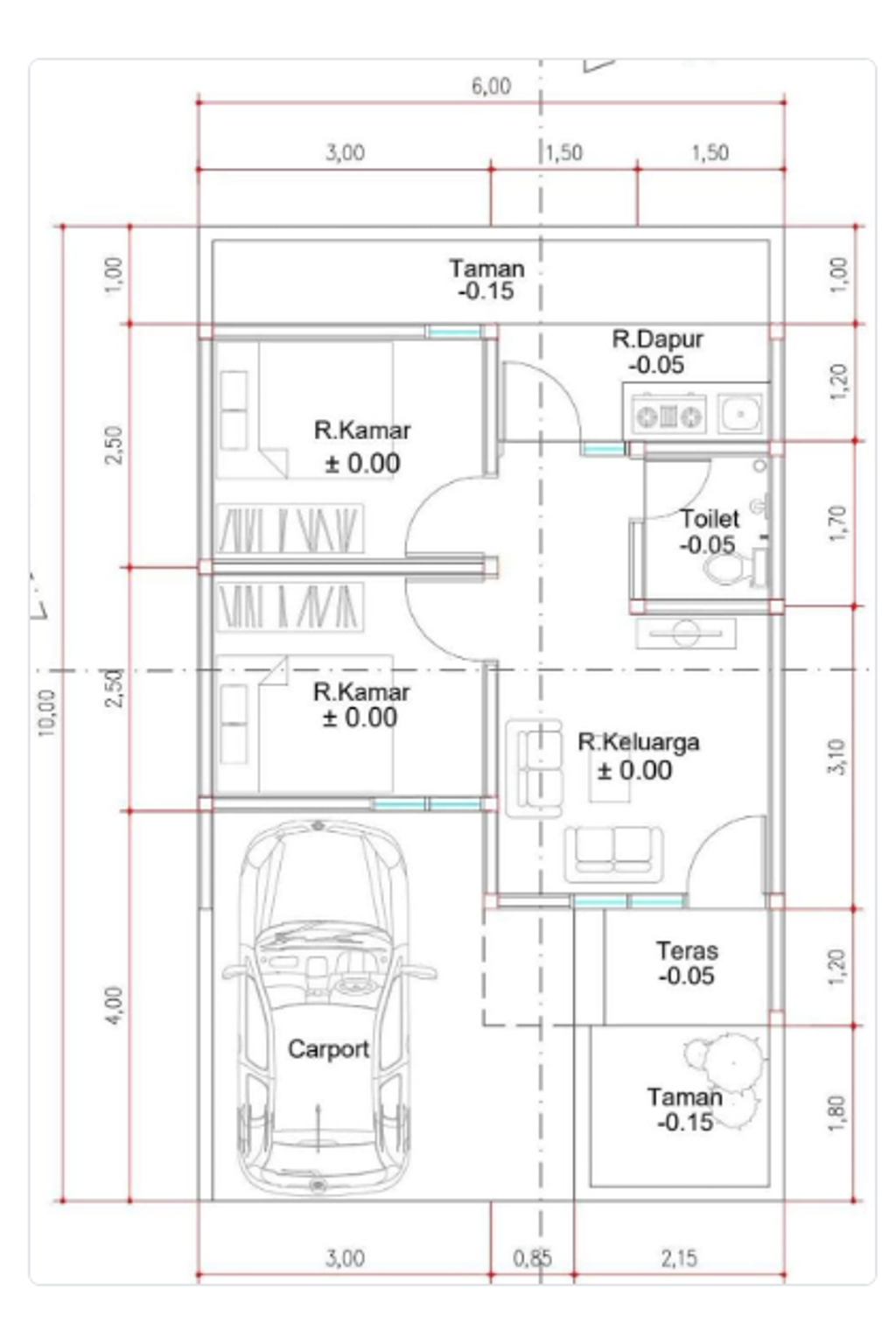
Luas Bangunan: 32m 2
Luas Lahan: 63m 2
Kamar Tidur: 2
Kamar Mandi: 1
a. Atap
Rangka Atap : Baja Ringan
Genteng : Beton Berwarna
b. Dinding
Dinding : Bata Merah, Plester, Aci, Dan Finishing Cat Setara Jotun
c. Lantai & Pondasi
Lantai : Granit 60x60 & Pondasi : Batu Kali Struktur Beton Bertulang


Harga: Rp 265.000.000
Luas Bangunan: 32m 2
Luas Lahan: 64m 2
Kamar Tidur: 2
Kamar Mandi: 1
a. Atap
Rangka Atap : Baja Ringan
Genteng : Beton Berwarna
b. Dinding
Dinding : Bata Merah, Plester, Aci, Dan Finishing Cat Setara Jotun
c. Lantai & Pondasi
Lantai : Granit 60x60 & Pondasi : Batu Kali Struktur Beton Bertulang


Harga: Rp 200.500.000
Luas Bangunan: 32m 2
Luas Lahan: 62m 2
Kamar Tidur: 2
Kamar Mandi: 1
a. Atap
Rangka Atap : Baja Ringan
Genteng : Beton Berwarna
b. Dinding
Dinding : Bata Merah, Plester, Aci, Dan Finishing Cat Setara Jotun
c. Lantai & Pondasi
Lantai : Granit 60x60 & Pondasi : Batu Kali Struktur Beton Bertulang


Harga: Rp 265.000.000
Luas Bangunan: 32m 2
Luas Lahan: 67m 2
Kamar Tidur: 2
Kamar Mandi: 1
a. Atap
Rangka Atap : Baja Ringan Genteng : Beton Berwarna
b. Dinding
Dinding : Bata Merah, Plester, Aci dan Finishing Cat setara jotun
c. Lantai & Pondasi
Lantai : Granit 60x60
& Pondasi : Batu Kali Struktur Beton Bertulang


Harga: Rp 265.000.000
Luas Bangunan: 32m 2
Luas Lahan: 68m 2
Kamar Tidur: 2
Kamar Mandi: 1
a. Atap
Rangka Atap : Baja Ringan Genteng : Beton Berwarna
b. Dinding
Dinding : Bata Merah, Plester, Aci dan Finishing Cat setara jotun
c. Lantai & Pondasi
Lantai Lantai : Granit 60x60 & Pondasi : Batu Kali Struktur Beton Bertulang


Harga: Rp 206.500.000
Luas Bangunan: 32m 2
Luas Lahan: 81m 2
Kamar Tidur: 2
Kamar Mandi: 1
a. Atap
Rangka Atap : Baja Ringan Genteng : Beton Berwarna
b. Dinding
Dinding : Bata Merah, Plester, Aci dan Finishing Cat setara jotun
c. Lantai & Pondasi
Lantai : Granit 60x60
& Pondasi : Batu Kali Struktur Beton Bertulang


Harga: Rp 196.000.000
Luas Bangunan: 32m 2
Luas Lahan: 74m 2
Kamar Tidur: 2
Kamar Mandi: 1
a. Atap
Rangka Atap : Baja Ringan Genteng : Beton Berwarna
b. Dinding
Dinding : Bata Merah, Plester, Aci dan Finishing Cat setara jotun
c. Lantai & Pondasi
Lantai : Granit 60x60
& Pondasi : Batu Kali Struktur Beton Bertulang


Harga: Rp 191.500.000
Luas Bangunan: 32m 2
Luas Lahan: 71m 2
Kamar Tidur: 2
Kamar Mandi: 1
a. Atap
Rangka Atap : Baja Ringan Genteng : Beton Berwarna
b. Dinding
Dinding : Bata Merah, Plester, Aci dan Finishing Cat setara jotun
c. Lantai & Pondasi
Lantai : Granit 60x60
& Pondasi : Batu Kali Struktur Beton Bertulang


Harga: Rp 215.500.000
Luas Bangunan: 32m 2
Luas Lahan: 87m 2
Kamar Tidur: 2
Kamar Mandi: 1
a. Atap
Rangka Atap : Baja Ringan Genteng : Beton Berwarna
b. Dinding
Dinding : Bata Merah, Plester, Aci dan Finishing Cat setara jotun
c. Lantai & Pondasi
Lantai : Granit 60x60
& Pondasi : Batu Kali Struktur Beton Bertulang


Harga: Rp 197.500.000
Luas Bangunan: 32m 2
Luas Lahan: 75m 2
Kamar Tidur: 2
Kamar Mandi: 1
a. Atap
Rangka Atap : Baja Ringan Genteng : Beton Berwarna
b. Dinding
Dinding : Bata Merah, Plester, Aci dan Finishing Cat setara jotun
c. Lantai & Pondasi
Lantai : Granit 60x60 & Pondasi : Batu Kali Struktur Beton Bertulang


Harga: Rp 175.000.000
Luas Bangunan: 32m 2
Luas Lahan: 60m 2
Kamar Tidur: 2
Kamar Mandi: 1
a. Atap
Rangka Atap : Baja Ringan
Genteng : Beton Berwarna
b. Dinding
Dinding : Bata Merah, Plester, Aci, Dan Finishing Cat Setara Jotun
c. Lantai & Pondasi
Lantai :Granit 60x60 & Pondasi : Batu Kali Struktur Beton Bertulang


Harga: Rp 179.500.000
Luas Bangunan: 32m 2
Luas Lahan: 63m 2
Kamar Tidur: 2
Kamar Mandi: 1
a. Atap
Rangka Atap : Baja Ringan Genteng : Beton Berwarna
b. Dinding
Dinding : Bata Merah, Plester, Aci, Dan Finishing Cat Setara Jotun
c. Lantai & Pondasi
Lantai :Granit 60x60 & Pondasi : Batu Kali Struktur Beton Bertulang


Harga: Rp 185.500.000
Luas Bangunan: 32m 2
Luas Lahan: 67m 2
Kamar Tidur: 2
Kamar Mandi: 1
a. Atap
Rangka Atap : Baja Ringan Genteng : Beton Berwarna
b. Dinding
BerwarnaDinding: Dinding : Bata Merah, Plester, Aci, Dan Finishing Cat Setara Jotun
c. Lantai & Pondasi
: Lantai :Granit 60x60 & Pondasi : Batu Kali Struktur Beton Bertulang


Harga: Rp 184.000.000
Luas Bangunan: 32m 2
Luas Lahan: 66m 2
Kamar Tidur: 2
Kamar Mandi: 1
a. Atap
Rangka Atap : Baja Ringan Genteng : Beton Berwarna
b. Dinding
Dinding : Bata Merah, Plester, Aci dan Finishing Cat setara jotun
c. Lantai & Pondasi
Lantai : Granit 60x60
& Pondasi : Batu Kali Struktur Beton Bertulang