ID Lokasi : GRT0620122020T001
JAWA BARAT, KAB GARUT, Banyuresmi, Karyamukti
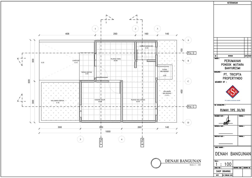
PT. TRI CIPTA PROPERTYNDO
ASOSIASI PENGEMBANG DAN PEMASAR RUMAH NASIONAL
(ASPRUMNAS)
Subsidi : 2 Unit
Terjual Subsidi : 28 Unit
Komersil : 0 Unit
Terjual Komersil : 0 Unit
Lihat Siteplan DigitalJl.Raya H.Hasan Arif banyuresmi- Lewigoong Desa Karyamukti Kecamatan Banyuresmi samping SPBE no. 186 JAWA BARAT, KAB GARUT, Banyuresmi, Karyamukti
Telp : 081224158600
Email : uly.sulistio@gmail.com





Harga: Rp 150.000.000
Luas Bangunan: 30m 2
Luas Lahan: 60m 2
Kamar Tidur: 1
Kamar Mandi: 1
a. Atap
BAJA RINGAN , GENTENG PLAT
b. Dinding
BATU BATA DI ACI
c. Lantai & Pondasi
KERAMIK & PASANGAN BATU KALI
Jl.Raya H.Hasan Arif banyuresmi- Lewigoong Desa Karyamukti Kecamatan Banyuresmi samping SPBE no. 186 JAWA BARAT, KAB GARUT, Banyuresmi, Karyamukti
Telp : 081224158600
Email : uly.sulistio@gmail.com