ID Lokasi : GSK1320222025T002
JAWA TIMUR, KAB GRESIK, Menganti, Laban
PT HUTOMO MANDALA RAHARJO
REAL ESTATE INDONESIA
(REI)
Subsidi : 0 Unit
Terjual Subsidi : 0 Unit
Komersil : 47 Unit
Terjual Komersil : 0 Unit
Lihat Siteplan DigitalJalan Raya Jeruk No. 15, RT 001, RW 001, Jeruk, Lakarsantri, Surabaya no. 15 JAWA TIMUR, KOTA SURABAYA, Lakarsantri, Jeruk
Telp : 081238880159
Email : hutomomandala.raharjo@gmail.com
Website : https://mansionnine.id/





Harga: Rp 1.250.000.000
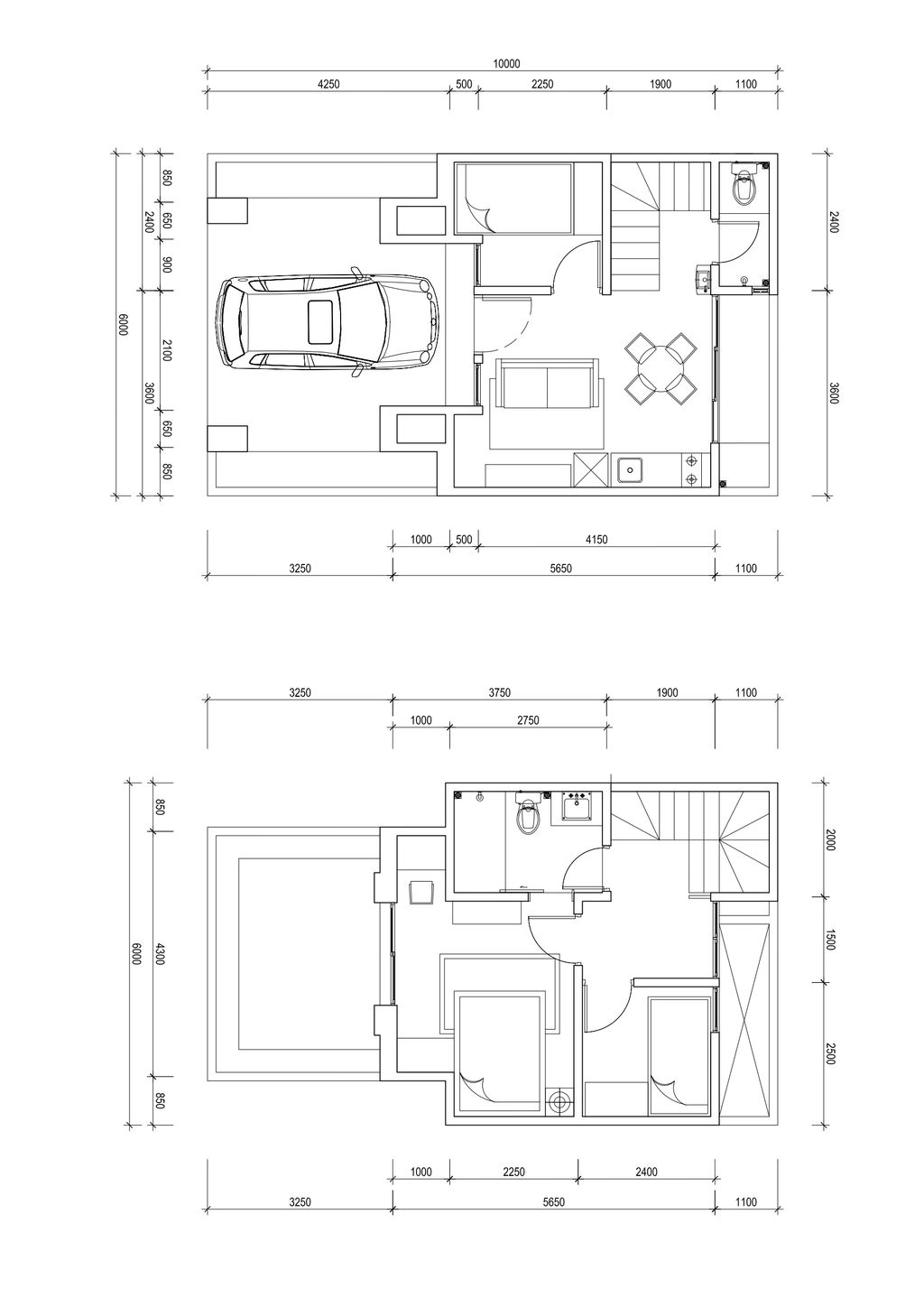
Luas Bangunan: 90m 2
Luas Lahan: 60m 2
Kamar Tidur: 3
Kamar Mandi: 2
a. Atap
Rangka atap Baja ringan canal C C100
Penutup atap genteng beton
b. Dinding
Dinding bata ringan dan perekat bata ringan
c. Lantai & Pondasi
Granite tile tipe 60x60 dan mortar perekat granite & Pondasi tiang pancang minipile 20x20 sedalam 10 meter


Harga: Rp 1.350.000.000
Luas Bangunan: 76m 2
Luas Lahan: 59m 2
Kamar Tidur: 3
Kamar Mandi: 3
a. Atap
Rangka atap Baja ringan canal C C100
Penutup atap genteng beton
b. Dinding
Dinding bata ringan dan perekat bata ringan
c. Lantai & Pondasi
Granite tile tipe 60x60 dan mortar perekat granite & Pondasi tiang pancang minipile 20x20 sedalam 10 meter
Jalan Raya Jeruk No. 15, RT 001, RW 001, Jeruk, Lakarsantri, Surabaya no. 15 JAWA TIMUR, KOTA SURABAYA, Lakarsantri, Jeruk
Telp : 081238880159
Email : hutomomandala.raharjo@gmail.com
Website : https://mansionnine.id/