ID Lokasi : GTO0310052025T001
GORONTALO, KOTA GORONTALO, Kota Utara, Wongkaditi Barat
CV IKAY
PERKUMPULAN ASOSIASI PENGEMBANG PERUMAHAN DAN PERMUKIMAN SELURUH INDONESIA
(APERSI)
Subsidi : 7 Unit
Terjual Subsidi : 10 Unit
Komersil : 0 Unit
Terjual Komersil : 0 Unit
Lihat Siteplan Digital




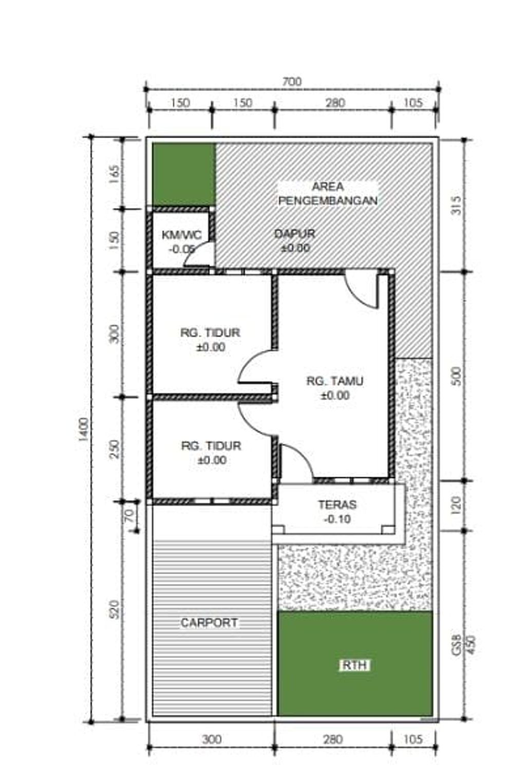
Harga: Rp 173.000.000
Luas Bangunan: 36m 2
Luas Lahan: 105m 2
Kamar Tidur: 2
Kamar Mandi: 1
a. Atap
Atap kayu kelapa
b. Dinding
Batu Bata
c. Lantai & Pondasi
lantai keramik & pondasi batu kali