ID Lokasi : GTO0310142026T002
GORONTALO, KOTA GORONTALO, Kota Utara, Dulomo Utara
PT AAN BERKAH ABADI
ASOSIASI PENGEMBANG RUMAH SEDERHANA SEHAT NASIONAL
(APERNAS)
Subsidi : 0 Unit
Terjual Subsidi : 0 Unit
Komersil : 56 Unit
Terjual Komersil : 0 Unit
Lihat Siteplan Digital




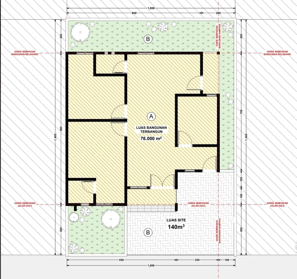
Harga: Rp 550.000.000
Luas Bangunan: 70m 2
Luas Lahan: 153m 2
Kamar Tidur: 3
Kamar Mandi: 2
a. Atap
Asoka Merah Jempol
b. Dinding
Batu Merah diplaster dan dicat
c. Lantai & Pondasi
Kermaik 60 X 60 & Batu Percah


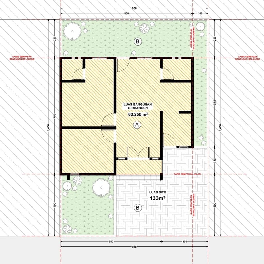
Harga: Rp 450.000.000
Luas Bangunan: 60m 2
Luas Lahan: 135m 2
Kamar Tidur: 2
Kamar Mandi: 2
a. Atap
Asoka Merah Jempol
b. Dinding
Batu merah diplaster dan dicat
c. Lantai & Pondasi
Keramik 60 X 60 & Batu Pecah


Harga: Rp 375.000.000
Luas Bangunan: 45m 2
Luas Lahan: 135m 2
Kamar Tidur: 2
Kamar Mandi: 1
a. Atap
Asoka Merah Jempol
b. Dinding
Batu Merah diplaster dan dicat
c. Lantai & Pondasi
Keramik 60 X 60 & Batu Pecah