ID Lokasi : IDM1320072021T001
JAWA BARAT, KAB INDRAMAYU, Jatibarang, Kebulen
PT GRAHA SHEGIA BERKARYA
REAL ESTATE INDONESIA
(REI)
Subsidi : 25 Unit
Terjual Subsidi : 16 Unit
Komersil : 16 Unit
Terjual Komersil : 0 Unit
Lihat Siteplan Digital




Harga: Rp 595.000.000
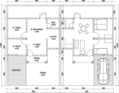
Luas Bangunan: 90m 2
Luas Lahan: 60m 2
Kamar Tidur: 1
Kamar Mandi: 2
a. Atap
GENTENG MORANDO
b. Dinding
PASANGAN BATA
c. Lantai & Pondasi
KRAMIK LANTAI 40 X 40 & PASANGAN BATU KALI / ROLAAG (TERAS)


Harga: Rp 420.000.000
Luas Bangunan: 54m 2
Luas Lahan: 120m 2
Kamar Tidur: 2
Kamar Mandi: 1
a. Atap
GENTENG MORANDO
b. Dinding
PASANGAN BATA DI PLESTER DEPAN
c. Lantai & Pondasi
KERAMIK LANTAI 50 X 50 & PASANGAN BATU KALI/ ROLAAG (TERAS)


Harga: Rp 390.000.000
Luas Bangunan: 45m 2
Luas Lahan: 96m 2
Kamar Tidur: 2
Kamar Mandi: 1
a. Atap
GENTENG MORANDO
b. Dinding
PASANGAN BATA DI PLESTER DEPAN
c. Lantai & Pondasi
KERAMIK LANTAI 50 X 50 & PASANGAN BATU KALI, ROLAAG (TERAS)


Harga: Rp 295.000.000
Luas Bangunan: 38m 2
Luas Lahan: 72m 2
Kamar Tidur: 2
Kamar Mandi: 1
a. Atap
GENTENG MORANDO
b. Dinding
PASANGAN BATA DI PLESTER DEPAN
c. Lantai & Pondasi
KERIK LANTAI 40 X 40 & PASANGAN BATU KALI, ROLAAG (TERAS)


Harga: Rp 150.500.000
Luas Bangunan: 27m 2
Luas Lahan: 72m 2
Kamar Tidur: 2
Kamar Mandi: 1
a. Atap
GENTENG FLET BETON
b. Dinding
BATA MERAH DI PLESTER ACI
c. Lantai & Pondasi
KERAMIK 30 X 30 & BATU KALI


Harga: Rp 166.000.000
Luas Bangunan: 30m 2
Luas Lahan: 60m 2
Kamar Tidur: 2
Kamar Mandi: 1
a. Atap
GENTENG MULTIROOF/SETARA
b. Dinding
BATA MERAH
c. Lantai & Pondasi
KERAMIK 40 X 40 & BATU KALI