BUMI DARSUA KOYA 2

ID Lokasi : JAP0410042022T002
PAPUA, KOTA JAYAPURA, Muara Tami, Koya Barat
DARSUA HARAPAN ABADI
REAL ESTATE INDONESIA (REI)


Status Rumah

Subsidi : 14 Unit

Terjual Subsidi : 0 Unit

Komersil : 0 Unit

Terjual Komersil : 0 Unit

Lihat Siteplan Digital

Peta Lokasi



Kantor Pemasaran

Jl.WAMENA BELAKANG no. 02 PAPUA, KOTA JAYAPURA, Muara Tami, Koya Barat

Telp : 082198085195

Email : ptdarsuaharapanabadi@gmail.com

Website : -

Foto Lokasi


foto gerbang perumahan BUMI DARSUA KOYA 2
Foto Gerbang/Jalan Utama
foto contoh rumah perumahan BUMI DARSUA KOYA 2
Foto Rumah Contoh
foto posisi tengah perumahan BUMI DARSUA KOYA 2
Foto Posisi Tengah Lokasi

Tipe Rumah


1. Tipe 36 (subsidi)
foto tampak rumah tipe 36 perumahan BUMI DARSUA KOYA 2
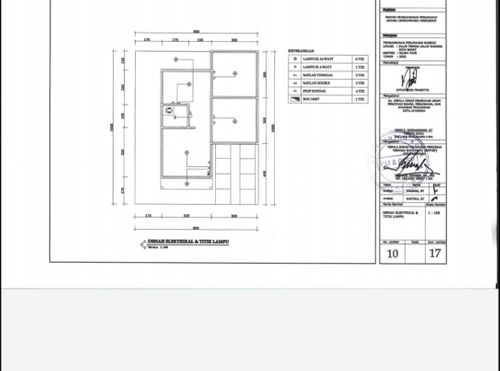
foto denah rumah tipe 36 perumahan BUMI DARSUA KOYA 2

Harga: Rp 219.000.000

Luas Bangunan: 36m 2

Luas Lahan: 80m 2

Kamar Tidur: 2

Kamar Mandi: 1

Spesifikasi Teknis

a. Atap
Seng

b. Dinding
Batu tela

c. Lantai & Pondasi
Keramik & Batu Kali


Peta Lokasi


Kantor Pemasaran

Jl.WAMENA BELAKANG no. 02 PAPUA, KOTA JAYAPURA, Muara Tami, Koya Barat

Telp : 082198085195

Email : ptdarsuaharapanabadi@gmail.com

Website : -