PERUMAHAN GRAND EFATA XI DOYO LAMA

ID Lokasi : JAP1320022022T002
PAPUA, KAB JAYAPURA, Waibu, Doyo Lama
EFATA PAPUA SEJAHTERA
REAL ESTATE INDONESIA (REI)


Status Rumah

Subsidi : 0 Unit

Terjual Subsidi : 2 Unit

Komersil : 0 Unit

Terjual Komersil : 0 Unit

Lihat Siteplan Digital

Peta Lokasi



Kantor Pemasaran

JLN.SENTANI GENYEM KOMPKAFE EFATA DOYO LAMA no. 1 PAPUA, KAB JAYAPURA, Waibu, Doyo Lama

Telp : 082195464172

Email : efatapsejahtera@yahoo.com

Website :

Foto Lokasi


foto gerbang perumahan PERUMAHAN GRAND EFATA XI DOYO LAMA
Foto Gerbang/Jalan Utama
foto contoh rumah perumahan PERUMAHAN GRAND EFATA XI DOYO LAMA
Foto Rumah Contoh
foto posisi tengah perumahan PERUMAHAN GRAND EFATA XI DOYO LAMA
Foto Posisi Tengah Lokasi

Tipe Rumah


1. Tipe 36 (subsidi)
foto tampak rumah tipe 36 perumahan PERUMAHAN GRAND EFATA XI DOYO LAMA
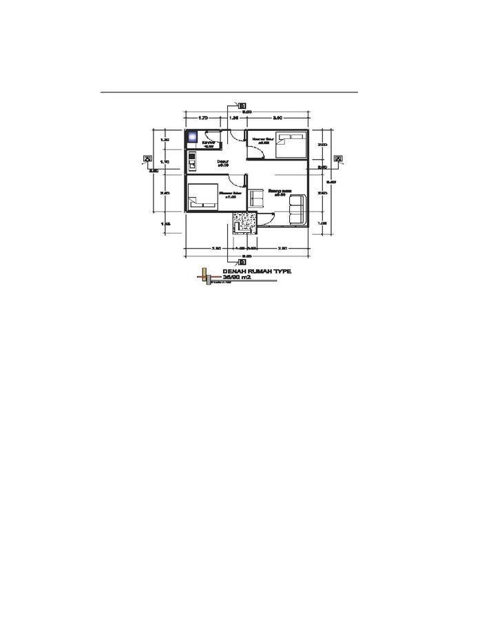
foto denah rumah tipe 36 perumahan PERUMAHAN GRAND EFATA XI DOYO LAMA

Harga: Rp 219.000.000

Luas Bangunan: 36m 2

Luas Lahan: 100m 2

Kamar Tidur: 2

Kamar Mandi: 1

Spesifikasi Teknis

a. Atap
ATAP MULTIROOF

b. Dinding
PLASTER ACI

c. Lantai & Pondasi
KERAMIK 40X40 & BATU GUNUNG


Peta Lokasi


Kantor Pemasaran

JLN.SENTANI GENYEM KOMPKAFE EFATA DOYO LAMA no. 1 PAPUA, KAB JAYAPURA, Waibu, Doyo Lama

Telp : 082195464172

Email : efatapsejahtera@yahoo.com

Website :