ID Lokasi : JBG0320092025T001
JAWA TIMUR, KAB JOMBANG, Ngoro, Sidowarek
PT ALAFI BERKAH SEJAHTERA
ALIANSI PENGEMBANG PERUMAHAN NASIONAL JAYA
(APPERNAS JAYA)
Subsidi : 24 Unit
Terjual Subsidi : 5 Unit
Komersil : 0 Unit
Terjual Komersil : 0 Unit
Lihat Siteplan Digital




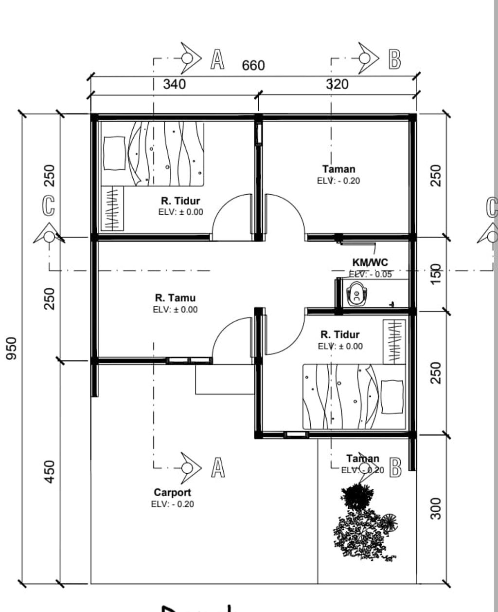
Harga: Rp 166.000.000
Luas Bangunan: 30m 2
Luas Lahan: 60m 2
Kamar Tidur: 2
Kamar Mandi: 1
a. Atap
GENTENG FLAT BETON
b. Dinding
BATA MERAH
c. Lantai & Pondasi
KERAMIK 40x40 & BETON BERTULANG