ID Lokasi : JMB0710052024T007
JAMBI, KOTA JAMBI, Kota Baru, Kenali Asam Bawah
PT DARMA WANGSA ABADI
REAL ESTATE INDONESIA
(REI)
Subsidi : 0 Unit
Terjual Subsidi : 0 Unit
Komersil : 4 Unit
Terjual Komersil : 0 Unit
Lihat Siteplan Digital




Harga: Rp 700.000.000
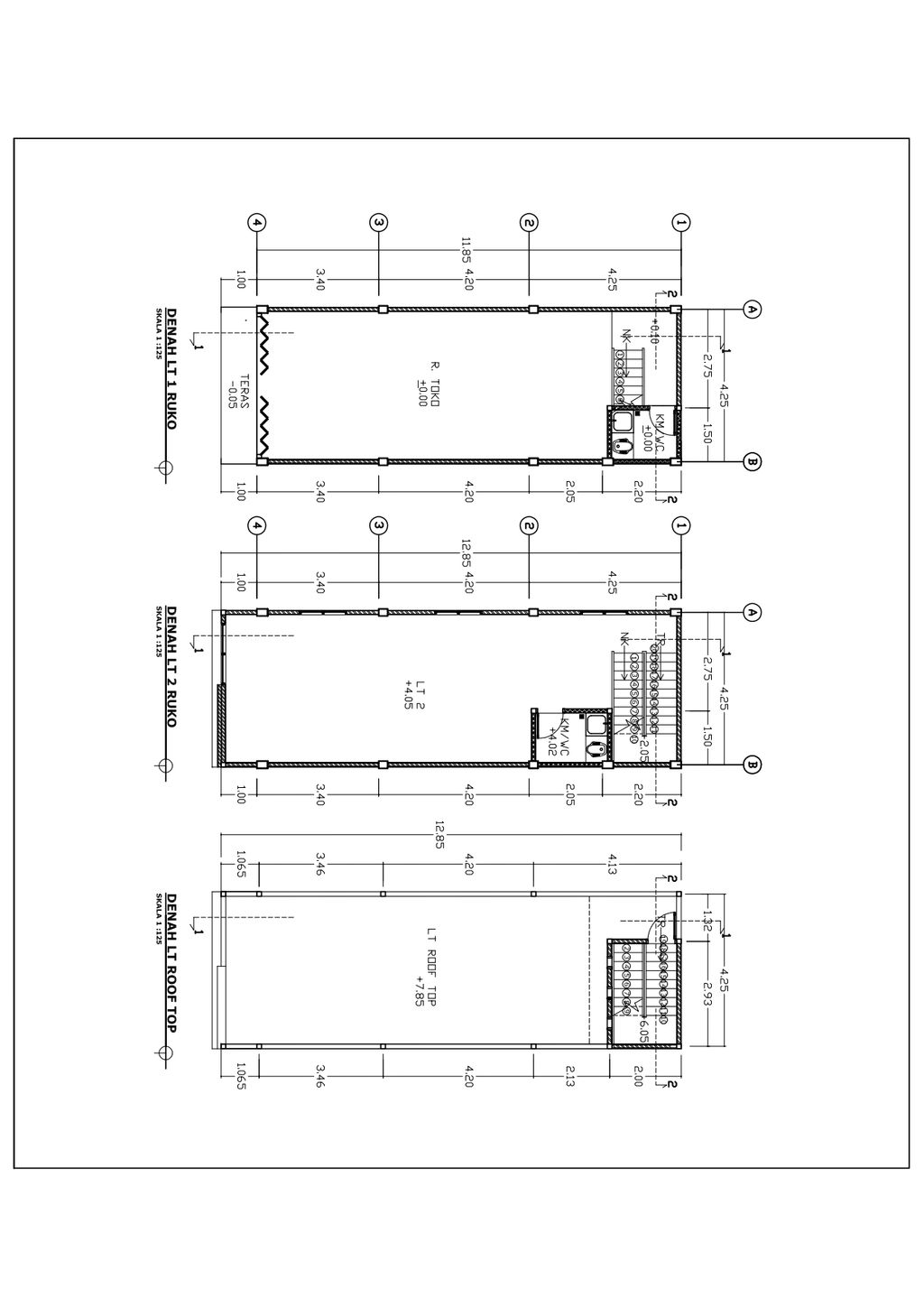
Luas Bangunan: 101m 2
Luas Lahan: 106m 2
Kamar Tidur: 0
Kamar Mandi: 2
a. Atap
Dak Beton
b. Dinding
Pas. 1/2 Bata Merah
c. Lantai & Pondasi
40 x 40 & Pondasi Tapak
Pondasi Jalur Pas. Bata Merah


Harga: Rp 750.000.000
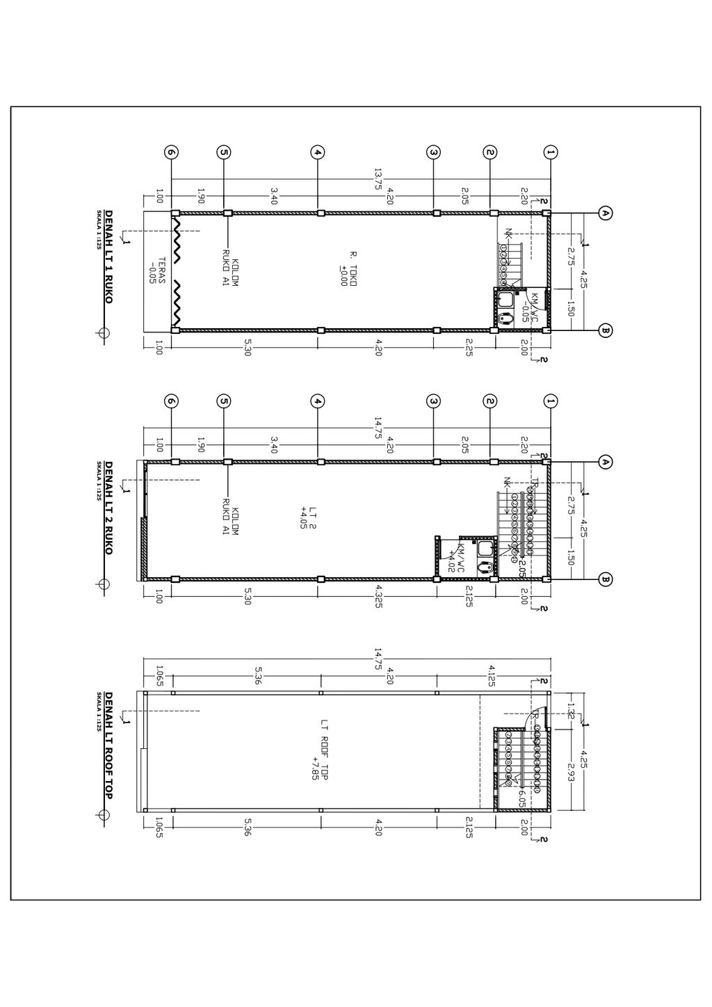
Luas Bangunan: 111m 2
Luas Lahan: 122m 2
Kamar Tidur: 0
Kamar Mandi: 2
a. Atap
Dak Beton
b. Dinding
Pas. 1/2 Bata Merah
c. Lantai & Pondasi
40 x 40 & Pondasi Tapak
Pondasi Jalur Pas. Bata Merah


Harga: Rp 775.000.000
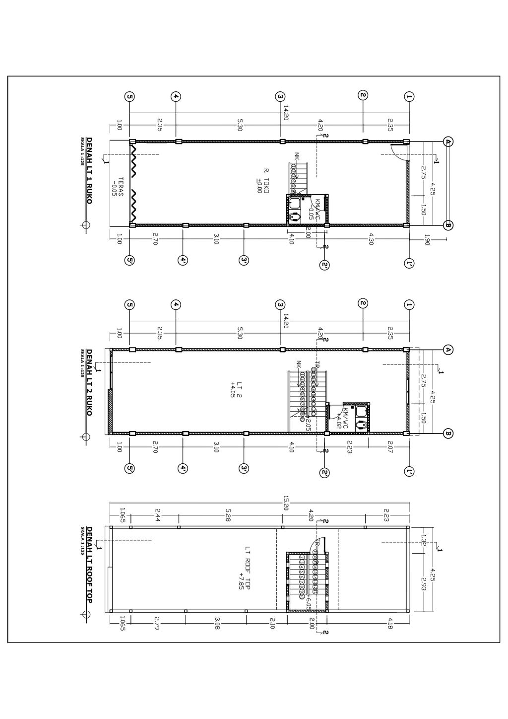
Luas Bangunan: 118m 2
Luas Lahan: 126m 2
Kamar Tidur: 0
Kamar Mandi: 2
a. Atap
Dak Beton
b. Dinding
Pas. 1/2 Bata Merah
c. Lantai & Pondasi
40 x 40 & Pondasi Tapak
Pondasi Jalur Pas. Bata Merah


Harga: Rp 850.000.000
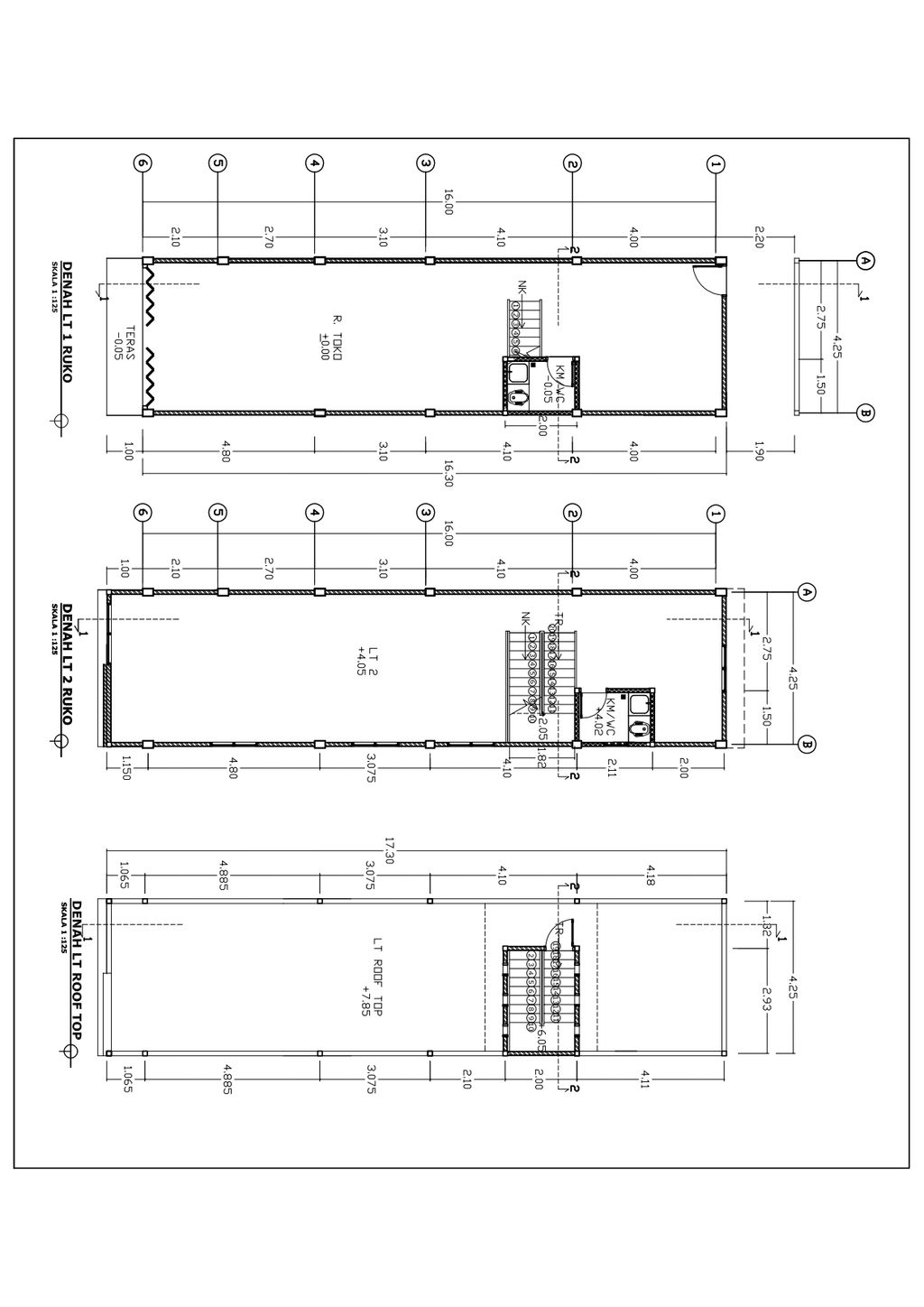
Luas Bangunan: 132m 2
Luas Lahan: 144m 2
Kamar Tidur: 0
Kamar Mandi: 2
a. Atap
Dak Beton
b. Dinding
Pas. 1/2 Bata Merah
c. Lantai & Pondasi
40 x 40 & Pondasi Tapak
Pondasi Jalur Pas. Bata Merah