ID Lokasi : JMB0910012026T002
JAMBI, KOTA JAMBI, Alam Barajo, Kenali Besar
PT GRAHA MUTIARA JAMBI
REAL ESTATE INDONESIA
(REI)
Subsidi : 168 Unit
Terjual Subsidi : 0 Unit
Komersil : 28 Unit
Terjual Komersil : 0 Unit
Lihat Siteplan Digital




Harga: Rp 166.000.000
Luas Bangunan: 36m 2
Luas Lahan: 105m 2
Kamar Tidur: 2
Kamar Mandi: 1
a. Atap
ATAP GALVANIS FUMIRA CLICK-330 DAN RANGKA BAJA RINGAN FUMIRA TRUS
b. Dinding
BATU BATA, PLESTER, CAT
c. Lantai & Pondasi
KERAMIK 50X50 & BATA MENERUS


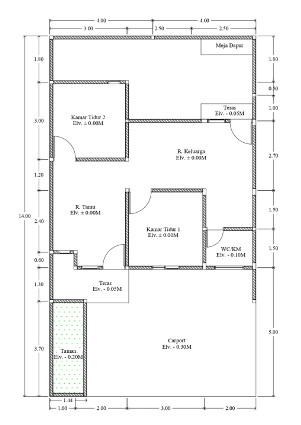
Harga: Rp 455.000.000
Luas Bangunan: 50m 2
Luas Lahan: 112m 2
Kamar Tidur: 2
Kamar Mandi: 1
a. Atap
ATAP GALVANIS FUMIRA CLICK-330 DAN RANGKA BAJA RINGAN FUMIRA TRUSS
b. Dinding
BATU BATA, PLESTER DAN CAT
c. Lantai & Pondasi
KERAMIK 50X50 & BATA MENERUS