ID Lokasi : JMR1420042021T002
JAWA TIMUR, KAB JEMBER, Panti, Glagahwero
PT BAITUL MAKMUR SENTOSA
Himpunan Pengembang Permukiman dan Perumahan Rakyat
(HIMPERRA)
Subsidi : 8 Unit
Terjual Subsidi : 10 Unit
Komersil : 26 Unit
Terjual Komersil : 2 Unit
Lihat Siteplan Digital




Harga: Rp 225.000.000
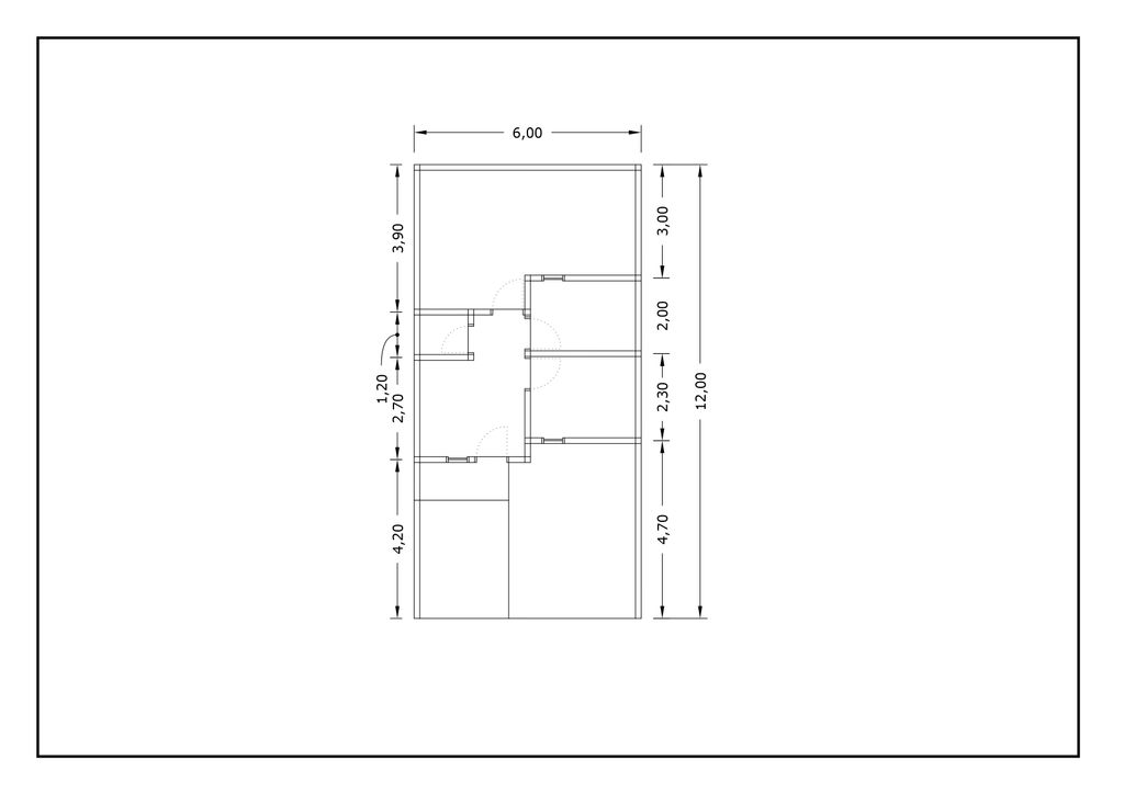
Luas Bangunan: 42m 2
Luas Lahan: 78m 2
Kamar Tidur: 2
Kamar Mandi: 1
a. Atap
Rangka Atap Baja Ringan
b. Dinding
Bata Merah
c. Lantai & Pondasi
Keramik 40x40 & Batu Kali


Harga: Rp 195.000.000
Luas Bangunan: 36m 2
Luas Lahan: 75m 2
Kamar Tidur: 2
Kamar Mandi: 1
a. Atap
Rangka Atap Baja Ringan
b. Dinding
Bata merah
c. Lantai & Pondasi
Keramik 40x40 & Batu Kali


Harga: Rp 150.500.000
Luas Bangunan: 27m 2
Luas Lahan: 72m 2
Kamar Tidur: 2
Kamar Mandi: 1
a. Atap
Rangka Atap Baja Ringan
b. Dinding
Bata Merah
c. Lantai & Pondasi
Keramik 40x40 & Batu Kali


Harga: Rp 162.000.000
Luas Bangunan: 30m 2
Luas Lahan: 72m 2
Kamar Tidur: 2
Kamar Mandi: 1
a. Atap
Rangka Atap Baja Ringan
b. Dinding
Bata Merah
c. Lantai & Pondasi
Keramik Ukuran 40x40 & Batu Kali