ID Lokasi : JMR2110062020T004
JAWA TIMUR, KAB JEMBER, Sumbersari, Wirolegi
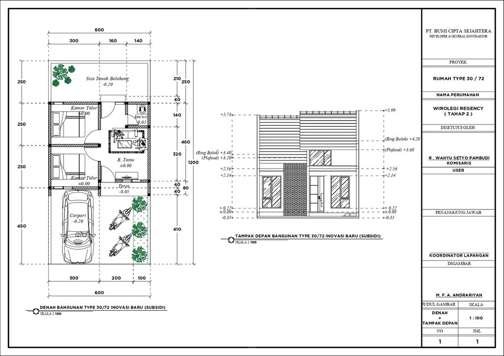
PT BUMI CIPTA SEJAHTERA
REAL ESTATE INDONESIA
(REI)
Subsidi : 196 Unit
Terjual Subsidi : 307 Unit
Komersil : 37 Unit
Terjual Komersil : 11 Unit
Lihat Siteplan Digital




Harga: Rp 150.500.000
Luas Bangunan: 30m 2
Luas Lahan: 72m 2
Kamar Tidur: 2
Kamar Mandi: 1
a. Atap
KERANGKA ATAP GALVALUM
b. Dinding
BATA MERAH DIPLESTER FINISHING CAT
c. Lantai & Pondasi
KERAMIK POLOS 30X30 & BATU PECAH


Harga: Rp 305.000.000
Luas Bangunan: 47m 2
Luas Lahan: 72m 2
Kamar Tidur: 2
Kamar Mandi: 1
a. Atap
KERANGKA ATAP GALVALUM
b. Dinding
BATA MERAH DI PLESTER FINISHING CAT
c. Lantai & Pondasi
KERAMIK POLOS UKURAN 40X40 & BATU PECAH


Harga: Rp 181.000.000
Luas Bangunan: 36m 2
Luas Lahan: 72m 2
Kamar Tidur: 2
Kamar Mandi: 1
a. Atap
KERANGKA ATAP GALVALUM
b. Dinding
BATA MERAH DIPLESTER FINISHING CAT
c. Lantai & Pondasi
KERAMIK POLOS 30X30 & BATU PECAH


Harga: Rp 130.000.000
Luas Bangunan: 33m 2
Luas Lahan: 72m 2
Kamar Tidur: 2
Kamar Mandi: 1
a. Atap
KERANGKA ATAP GALVALUM
b. Dinding
BATA MERAH DIPLESTER FINISHING CAT
c. Lantai & Pondasi
KERAMIK POLOS 30X30 & BATU PECAH


Harga: Rp 135.000.000
Luas Bangunan: 30m 2
Luas Lahan: 60m 2
Kamar Tidur: 2
Kamar Mandi: 1
a. Atap
KERANGKA ATAP GALVALUM
b. Dinding
BATA MERAH DIPLESTER FINISHING CAT
c. Lantai & Pondasi
KERAMIK POLOS 30X30 & BATU PECAH


Harga: Rp 137.000.000
Luas Bangunan: 23m 2
Luas Lahan: 60m 2
Kamar Tidur: 1
Kamar Mandi: 1
a. Atap
Galvalum
b. Dinding
Bata Merah, Plester, Aci, Cat
c. Lantai & Pondasi
Lantai Keramik 30x30 & Batu Pecah


Harga: Rp 166.000.000
Luas Bangunan: 30m 2
Luas Lahan: 72m 2
Kamar Tidur: 2
Kamar Mandi: 1
a. Atap
KERANGKA ATAP GALVALUM
b. Dinding
BATA MERAH DIPLESTER FINISHING CAT
c. Lantai & Pondasi
KERAMIK MOTIF MARBLE 50X50 & BATU PECAH