Persada Mappatunru

ID Lokasi : JNP0310032022T002
SULAWESI SELATAN, KAB JENEPONTO, Binamu, Empoang
FARMA JAYA UTAMA
Himpunan Pengembang Permukiman dan Perumahan Rakyat (HIMPERRA)


Status Rumah

Subsidi : 39 Unit

Terjual Subsidi : 3 Unit

Komersil : 0 Unit

Terjual Komersil : 0 Unit

Lihat Siteplan Digital

Peta Lokasi



Kantor Pemasaran

Jl. Pahlawan Ruko Mappatunru No.4 no. 4 SULAWESI SELATAN, KAB JENEPONTO, Binamu, Empoang

Telp : 085298917305

Email : farmajayajeneponto@gmail.com

Website :

Foto Lokasi


foto gerbang perumahan Persada Mappatunru
Foto Gerbang/Jalan Utama
foto contoh rumah perumahan Persada Mappatunru
Foto Rumah Contoh
foto posisi tengah perumahan Persada Mappatunru
Foto Posisi Tengah Lokasi

Tipe Rumah


1. Tipe 36/90 (subsidi)
foto tampak rumah tipe 36/90 perumahan Persada Mappatunru
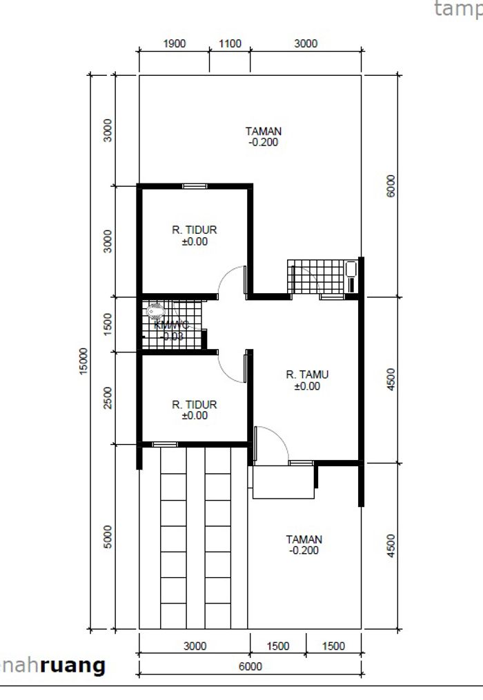
foto denah rumah tipe 36/90 perumahan Persada Mappatunru

Harga: Rp 156.500.000

Luas Bangunan: 36m 2

Luas Lahan: 90m 2

Kamar Tidur: 2

Kamar Mandi: 1

Spesifikasi Teknis

a. Atap
Atap Spandek, rangka baja ringan

b. Dinding
Dinding Bata Merah

c. Lantai & Pondasi
Tegel putih 30x30 & Pondasi Batu Kali

2. Tipe 36 (subsidi)
foto tampak rumah tipe 36 perumahan Persada Mappatunru
foto denah rumah tipe 36 perumahan Persada Mappatunru

Harga: Rp 156.500.000

Luas Bangunan: 36m 2

Luas Lahan: 72m 2

Kamar Tidur: 2

Kamar Mandi: 1

Spesifikasi Teknis

a. Atap
rangka baja ringan dengan spandek

b. Dinding
batu bata merah

c. Lantai & Pondasi
30x30 lantai putih & batu kali


Peta Lokasi


Kantor Pemasaran

Jl. Pahlawan Ruko Mappatunru No.4 no. 4 SULAWESI SELATAN, KAB JENEPONTO, Binamu, Empoang

Telp : 085298917305

Email : farmajayajeneponto@gmail.com

Website :