ID Lokasi : JNP1120012024T001
SULAWESI SELATAN, KAB JENEPONTO, Tarowang, Pao
PT SYARIEF MUJUR CEMERLANG
APERSI BERSATU
(AB)
Subsidi : 27 Unit
Terjual Subsidi : 12 Unit
Komersil : 0 Unit
Terjual Komersil : 0 Unit
Lihat Siteplan Digital




Harga: Rp 173.000.000
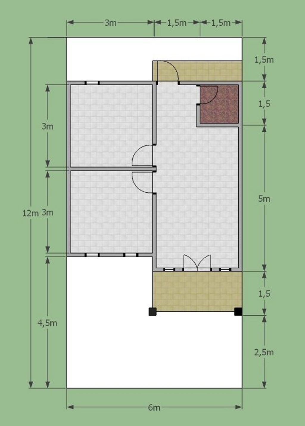
Luas Bangunan: 40m 2
Luas Lahan: 90m 2
Kamar Tidur: 2
Kamar Mandi: 1
a. Atap
SPANDEK
b. Dinding
BATA MERAH/BATA RINGAN
c. Lantai & Pondasi
TEGEL & BATU KALI


Harga: Rp 173.000.000
Luas Bangunan: 36m 2
Luas Lahan: 72m 2
Kamar Tidur: 2
Kamar Mandi: 1
a. Atap
Atap Seng
b. Dinding
Dinding Tembok
c. Lantai & Pondasi
Lantai Keramik & Pondasi Batu Gunung


Harga: Rp 173.000.000
Luas Bangunan: 36m 2
Luas Lahan: 90m 2
Kamar Tidur: 2
Kamar Mandi: 1
a. Atap
SPANDEK
b. Dinding
HEABEL, BATA RINGAN
c. Lantai & Pondasi
KERAMIK & BATU KALI