Petra Gardenia

ID Lokasi : JTH0820232021T001
ACEH, KAB ACEH BESAR, Peukan Bada, Lam Hasan
PETRA BUMI SEROJA
IKATAN DEWAN PENGEMBANG RUMAH BERDIKARI (IKADERI)


Status Rumah

Subsidi : 0 Unit

Terjual Subsidi : 5 Unit

Komersil : 0 Unit

Terjual Komersil : 0 Unit

Lihat Siteplan Digital

Peta Lokasi



Kantor Pemasaran

jalan tanjung no. 01 ACEH, KOTA BANDA ACEH, Syiah Kuala, Ie Masen Kayee Adang

Telp : 08122020661

Email : petramt78@gmail.com

Website : -

Foto Lokasi


foto gerbang perumahan Petra Gardenia
Foto Gerbang/Jalan Utama
foto contoh rumah perumahan Petra Gardenia
Foto Rumah Contoh
foto posisi tengah perumahan Petra Gardenia
Foto Posisi Tengah Lokasi

Tipe Rumah


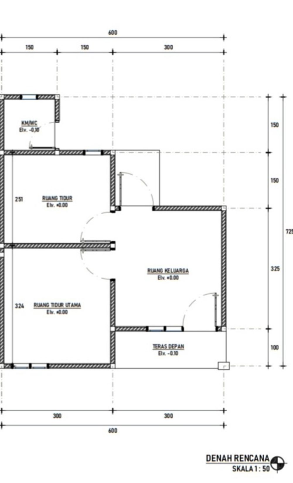
1. Tipe sakinah (subsidi)
foto tampak rumah tipe sakinah perumahan Petra Gardenia
foto denah rumah tipe sakinah perumahan Petra Gardenia

Harga: Rp 150.500.000

Luas Bangunan: 36m 2

Luas Lahan: 107m 2

Kamar Tidur: 2

Kamar Mandi: 1

Spesifikasi Teknis

a. Atap
seng genteng

b. Dinding
pasangan batu bata merah

c. Lantai & Pondasi
keramik 50 x 50 & pasangan batu gunung


Peta Lokasi


Kantor Pemasaran

jalan tanjung no. 01 ACEH, KOTA BANDA ACEH, Syiah Kuala, Ie Masen Kayee Adang

Telp : 08122020661

Email : petramt78@gmail.com

Website : -