ID Lokasi : KBR0620112020T001
KALIMANTAN SELATAN, KAB KOTABARU, Pulaulaut Utara, Stagen
PT GRAHA JAYA MAKMUR SENTOSA
REAL ESTATE INDONESIA
(REI)
Subsidi : 80 Unit
Terjual Subsidi : 68 Unit
Komersil : 0 Unit
Terjual Komersil : 0 Unit
Lihat Siteplan Digital




Harga: Rp 142.000.000
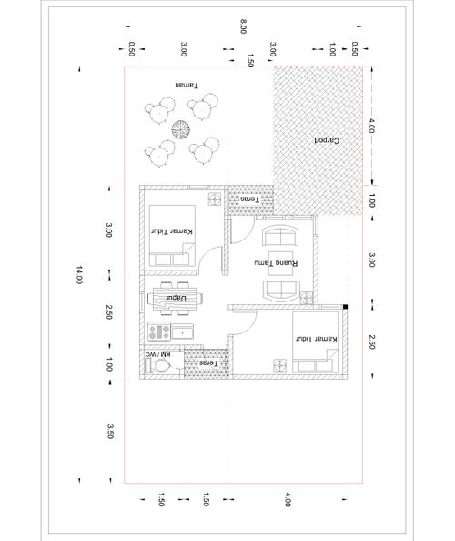
Luas Bangunan: 36m 2
Luas Lahan: 112m 2
Kamar Tidur: 2
Kamar Mandi: 1
a. Atap
Rangka Kayu , Penutup Atap Sakura roof
b. Dinding
Dinding batako, diplester, diaci finishing Cat tembok
c. Lantai & Pondasi
Lantai Ruangan keramik 40 x 40 , lantai WC Keramik 25 x 25 & Batu Gunung