ID Lokasi : KBR1720012020T001
KALIMANTAN SELATAN, KAB KOTABARU, Kelumpang Hilir, Serongga
CV PUTRA PANDAWA ALZAHRA
PERKUMPULAN ASOSIASI PENGEMBANG PERUMAHAN DAN PERMUKIMAN SELURUH INDONESIA
(APERSI)
Subsidi : 18 Unit
Terjual Subsidi : 271 Unit
Komersil : 0 Unit
Terjual Komersil : 0 Unit
Lihat Siteplan Digital




Harga: Rp 164.500.000
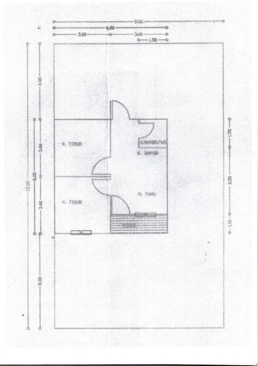
Luas Bangunan: 36m 2
Luas Lahan: 135m 2
Kamar Tidur: 2
Kamar Mandi: 1
a. Atap
RANGKA KAYU DAN MULTIRUFT
b. Dinding
DINDING PLESTER
c. Lantai & Pondasi
KERAMIK & BATU GUNUNG


Harga: Rp 164.500.000
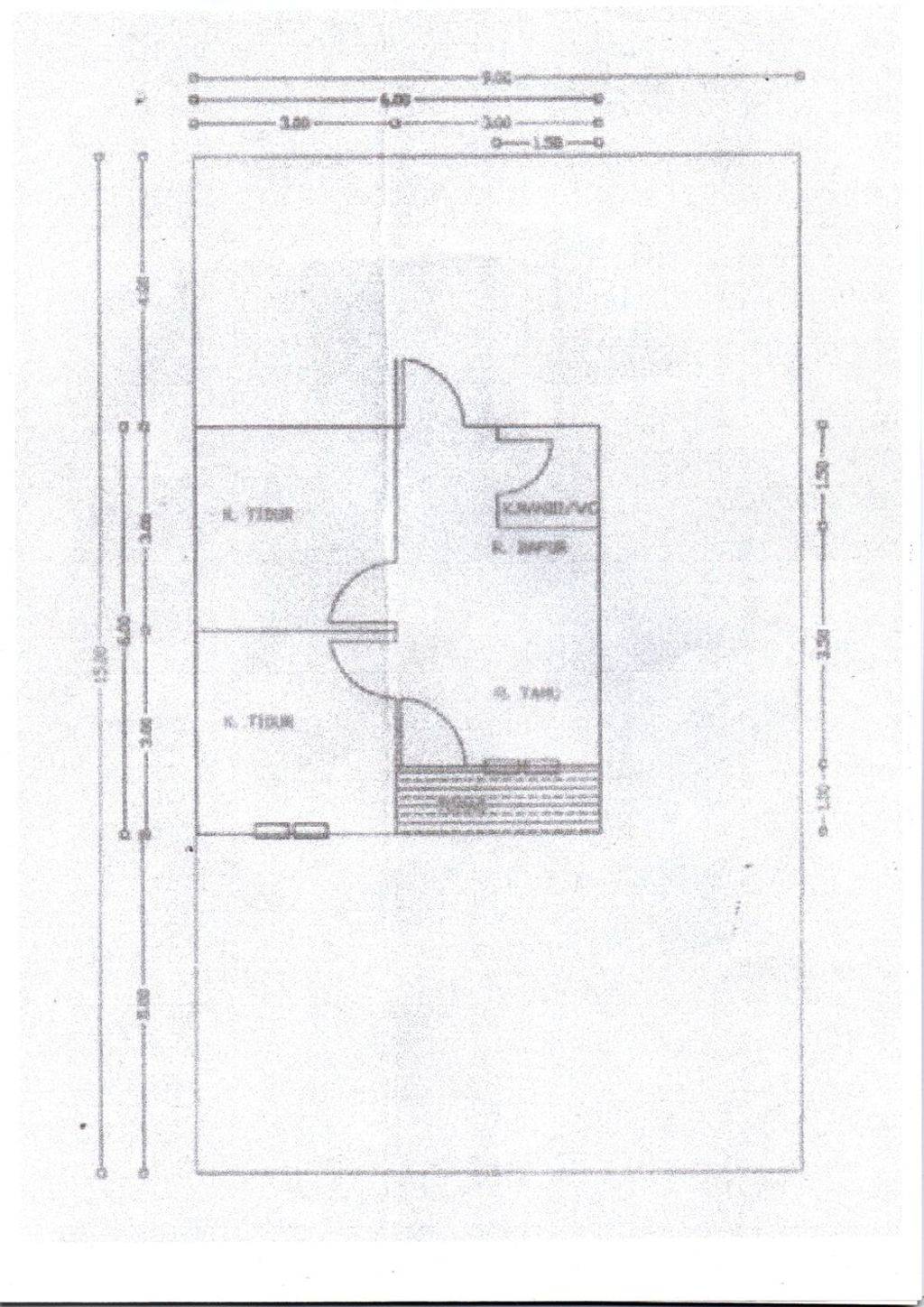
Luas Bangunan: 35m 2
Luas Lahan: 135m 2
Kamar Tidur: 2
Kamar Mandi: 1
a. Atap
MULTIROOFT
b. Dinding
BATAKO PLESTER
c. Lantai & Pondasi
KRAMIK 40X40 & BATU GUNUNG


Harga: Rp 182.000.000
Luas Bangunan: 36m 2
Luas Lahan: 135m 2
Kamar Tidur: 2
Kamar Mandi: 1
a. Atap
MULTIRUFT
b. Dinding
BATAKO PLESTER PLAMIR
c. Lantai & Pondasi
KRAMIK 40X40 & BATU GUNUNG