ID Lokasi : KBR1720012024T001
KALIMANTAN SELATAN, KAB KOTABARU, Kelumpang Hilir, Serongga
CV PUTRA PANDAWA ALZAHRA
PERKUMPULAN ASOSIASI PENGEMBANG PERUMAHAN DAN PERMUKIMAN SELURUH INDONESIA
(APERSI)
Subsidi : 207 Unit
Terjual Subsidi : 0 Unit
Komersil : 0 Unit
Terjual Komersil : 0 Unit
Lihat Siteplan Digital




Harga: Rp 182.000.000
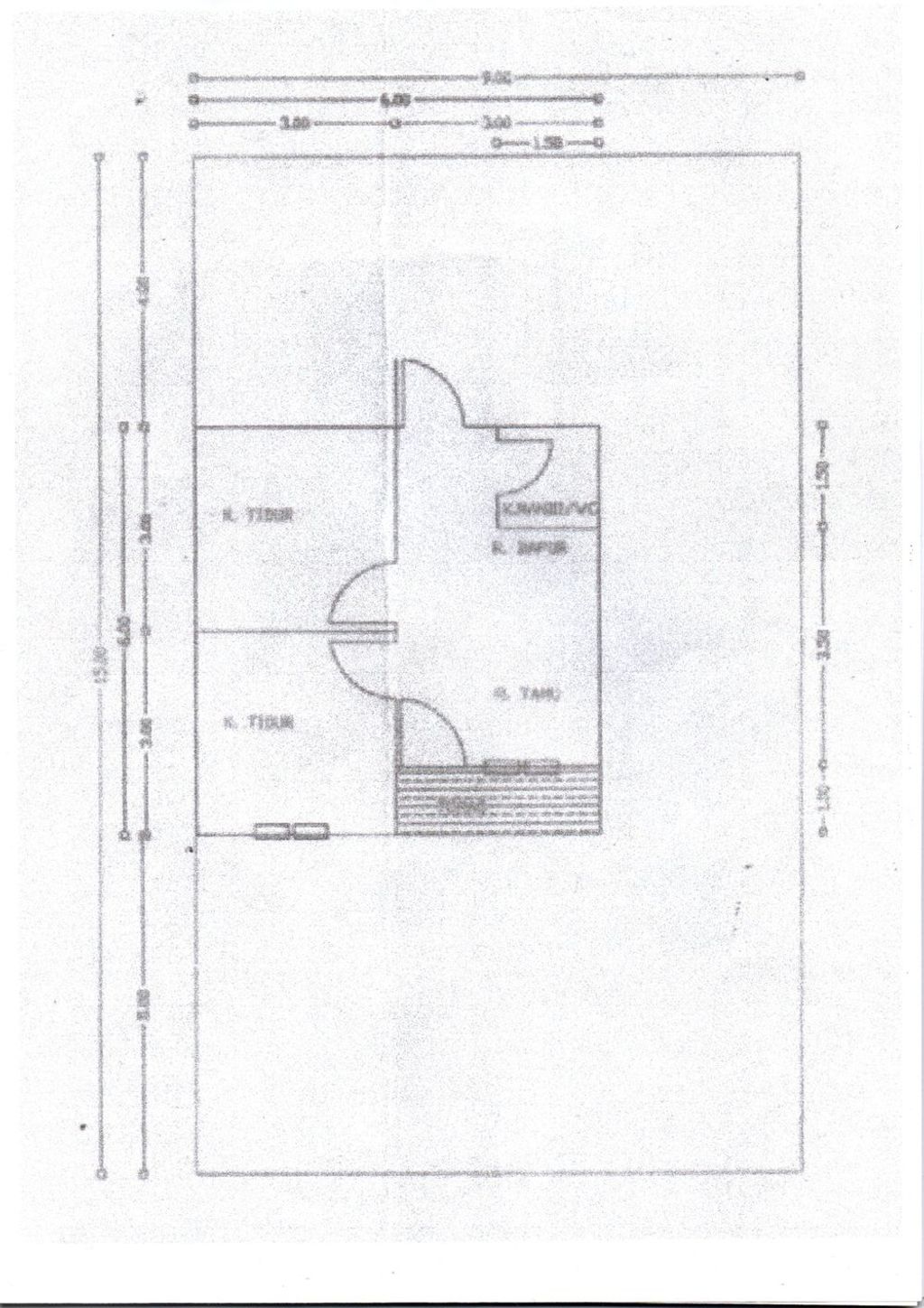
Luas Bangunan: 36m 2
Luas Lahan: 135m 2
Kamar Tidur: 2
Kamar Mandi: -4
a. Atap
MULTIRUFT
b. Dinding
BATAKO PLESTER
c. Lantai & Pondasi
KERAMIK 40X40 & BATU GUNUNG