AROMA BUKIT INDAH

ID Lokasi : KDI0310012020T017
SULAWESI TENGGARA, KOTA KENDARI, Baruga, Baruga
TRISED MULTI GRAHA
PERKUMPULAN ASOSIASI PENGEMBANG PERUMAHAN DAN PERMUKIMAN SELURUH INDONESIA (APERSI)


Status Rumah

Subsidi : 6 Unit

Terjual Subsidi : 155 Unit

Komersil : 2 Unit

Terjual Komersil : 4 Unit

Lihat Siteplan Digital

Peta Lokasi



Kantor Pemasaran

Jl.sao sao no. 0 SULAWESI TENGGARA, KOTA KENDARI, Mandonga, Korumba

Telp : 083132424158

Email : trisedmultigraha@gmail.com

Website :

Foto Lokasi


foto gerbang perumahan AROMA BUKIT INDAH
Foto Gerbang/Jalan Utama
foto contoh rumah perumahan AROMA BUKIT INDAH
Foto Rumah Contoh
foto posisi tengah perumahan AROMA BUKIT INDAH
Foto Posisi Tengah Lokasi

Tipe Rumah


1. Tipe 36 (subsidi)
foto tampak rumah tipe 36 perumahan AROMA BUKIT INDAH
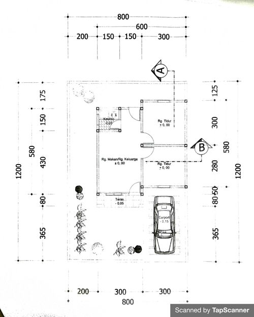
foto denah rumah tipe 36 perumahan AROMA BUKIT INDAH

Harga: Rp 156.500.000

Luas Bangunan: 36m 2

Luas Lahan: 96m 2

Kamar Tidur: 2

Kamar Mandi: 1

Spesifikasi Teknis

a. Atap
KAYU JATI

b. Dinding
BATA MERAH

c. Lantai & Pondasi
TEHEL & BATU KALI

2. Tipe 36 Blok B (subsidi)
foto tampak rumah tipe 36 Blok B perumahan AROMA BUKIT INDAH
foto denah rumah tipe 36 Blok B perumahan AROMA BUKIT INDAH

Harga: Rp 173.000.000

Luas Bangunan: 36m 2

Luas Lahan: 96m 2

Kamar Tidur: 2

Kamar Mandi: 1

Spesifikasi Teknis

a. Atap
Spandek

b. Dinding
Batu Merah

c. Lantai & Pondasi
Keramik 40x40 & Baru Gunung Moramo


Peta Lokasi


Kantor Pemasaran

Jl.sao sao no. 0 SULAWESI TENGGARA, KOTA KENDARI, Mandonga, Korumba

Telp : 083132424158

Email : trisedmultigraha@gmail.com

Website :