ID Lokasi : KDI0310082025T001
SULAWESI TENGGARA, KOTA KENDARI, Baruga, Wundudopi
PT MAJU GRIYA CAHAYA
PERKUMPULAN ASOSIASI PENGEMBANG PERUMAHAN DAN PERMUKIMAN SELURUH INDONESIA
(APERSI)
Subsidi : 0 Unit
Terjual Subsidi : 28 Unit
Komersil : 0 Unit
Terjual Komersil : 0 Unit
Lihat Siteplan Digital




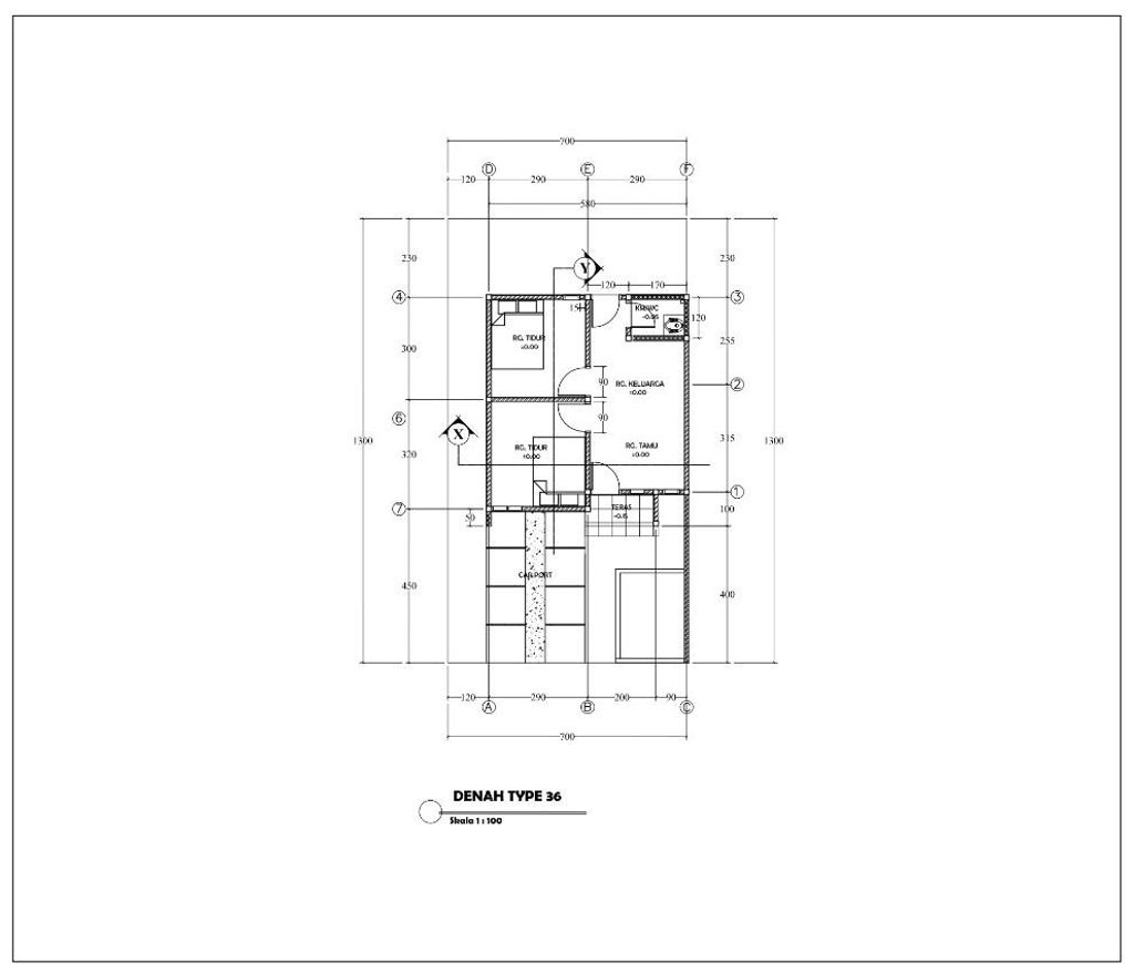
Harga: Rp 173.000.000
Luas Bangunan: 36m 2
Luas Lahan: 91m 2
Kamar Tidur: 2
Kamar Mandi: 1
a. Atap
BAJARINGAN = SPANDEK
b. Dinding
BATU BATA = PLASTER
c. Lantai & Pondasi
KRAMIK 40 X 40 & BATU GUNUNG