ID Lokasi : KDI0410032025T003
SULAWESI TENGGARA, KOTA KENDARI, Poasia, Andonohu
PT WAKUMORO JAYA PROPERTINDO
PERKUMPULAN ASOSIASI PENGEMBANG PERUMAHAN DAN PERMUKIMAN SELURUH INDONESIA
(APERSI)
Subsidi : 15 Unit
Terjual Subsidi : 83 Unit
Komersil : 0 Unit
Terjual Komersil : 0 Unit
Lihat Siteplan DigitalJL. TINGGOLOLI no. - SULAWESI TENGGARA, KOTA KENDARI, Poasia, Andonohu
Telp : 085242467819
Email : kahar_uvri@yahoo.com
Website : -





Harga: Rp 173.000.000
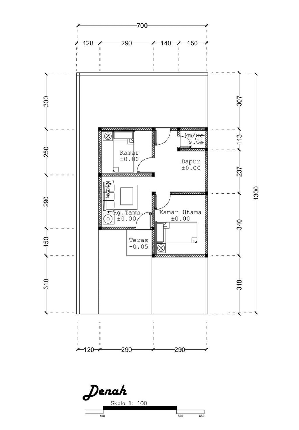
Luas Bangunan: 36m 2
Luas Lahan: 91m 2
Kamar Tidur: 2
Kamar Mandi: 1
a. Atap
atap spandek
b. Dinding
batako
c. Lantai & Pondasi
tehel 40 x 40 cm & batu gunung
JL. TINGGOLOLI no. - SULAWESI TENGGARA, KOTA KENDARI, Poasia, Andonohu
Telp : 085242467819
Email : kahar_uvri@yahoo.com
Website : -