TITA INDAH RESIDENCE TAHAP 2

ID Lokasi : KDI0410042024T001
SULAWESI TENGGARA, KOTA KENDARI, Poasia, Rahandouna
MAHA KARYA HALUOLEO
REAL ESTATE INDONESIA (REI)


Status Rumah

Subsidi : 53 Unit

Terjual Subsidi : 21 Unit

Komersil : 0 Unit

Terjual Komersil : 0 Unit

Lihat Siteplan Digital

Peta Lokasi



Kantor Pemasaran

JALAN ABUNAWAS no. 37 A SULAWESI TENGGARA, KOTA KENDARI, Kadia, Bende

Telp : 082333999914

Email : haluoleoproperty@gmail.com

Website :

Foto Lokasi


foto gerbang perumahan TITA INDAH RESIDENCE TAHAP 2
Foto Gerbang/Jalan Utama
foto contoh rumah perumahan TITA INDAH RESIDENCE TAHAP 2
Foto Rumah Contoh
foto posisi tengah perumahan TITA INDAH RESIDENCE TAHAP 2
Foto Posisi Tengah Lokasi

Tipe Rumah


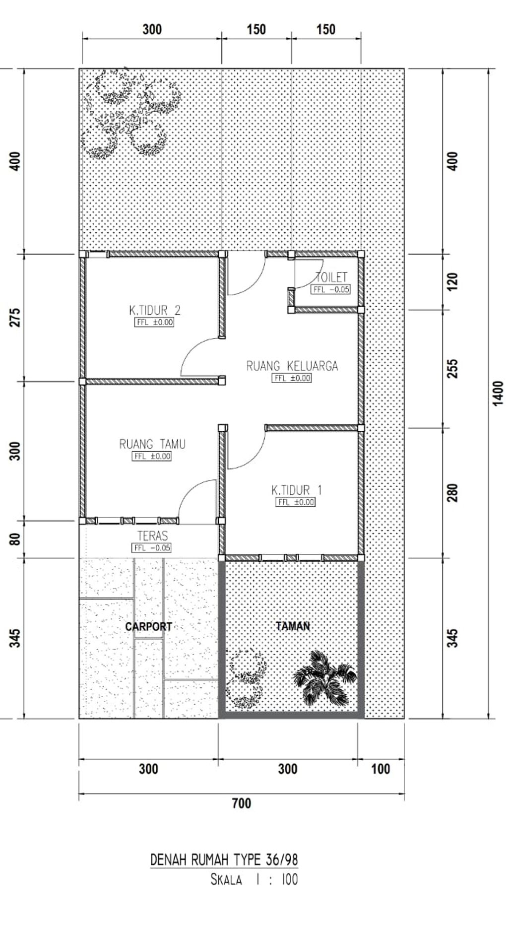
1. Tipe 36 (subsidi)
foto tampak rumah tipe 36 perumahan TITA INDAH RESIDENCE TAHAP 2
foto denah rumah tipe 36 perumahan TITA INDAH RESIDENCE TAHAP 2

Harga: Rp 173.000.000

Luas Bangunan: 36m 2

Luas Lahan: 98m 2

Kamar Tidur: 2

Kamar Mandi: 1

Spesifikasi Teknis

a. Atap
SPANDEX

b. Dinding
BATA MERAH

c. Lantai & Pondasi
KERAMIK 40X40 & BATU GUNUNG


Peta Lokasi


Kantor Pemasaran

JALAN ABUNAWAS no. 37 A SULAWESI TENGGARA, KOTA KENDARI, Kadia, Bende

Telp : 082333999914

Email : haluoleoproperty@gmail.com

Website :