ID Lokasi : KDI0710042023T004
SULAWESI TENGGARA, KOTA KENDARI, Wua-Wua, Anawai
PT ROJO BAGUS NUSANTARA
PERKUMPULAN ASOSIASI PENGEMBANG PERUMAHAN DAN PERMUKIMAN SELURUH INDONESIA
(APERSI)
Subsidi : 14 Unit
Terjual Subsidi : 30 Unit
Komersil : 0 Unit
Terjual Komersil : 0 Unit
Lihat Siteplan Digital




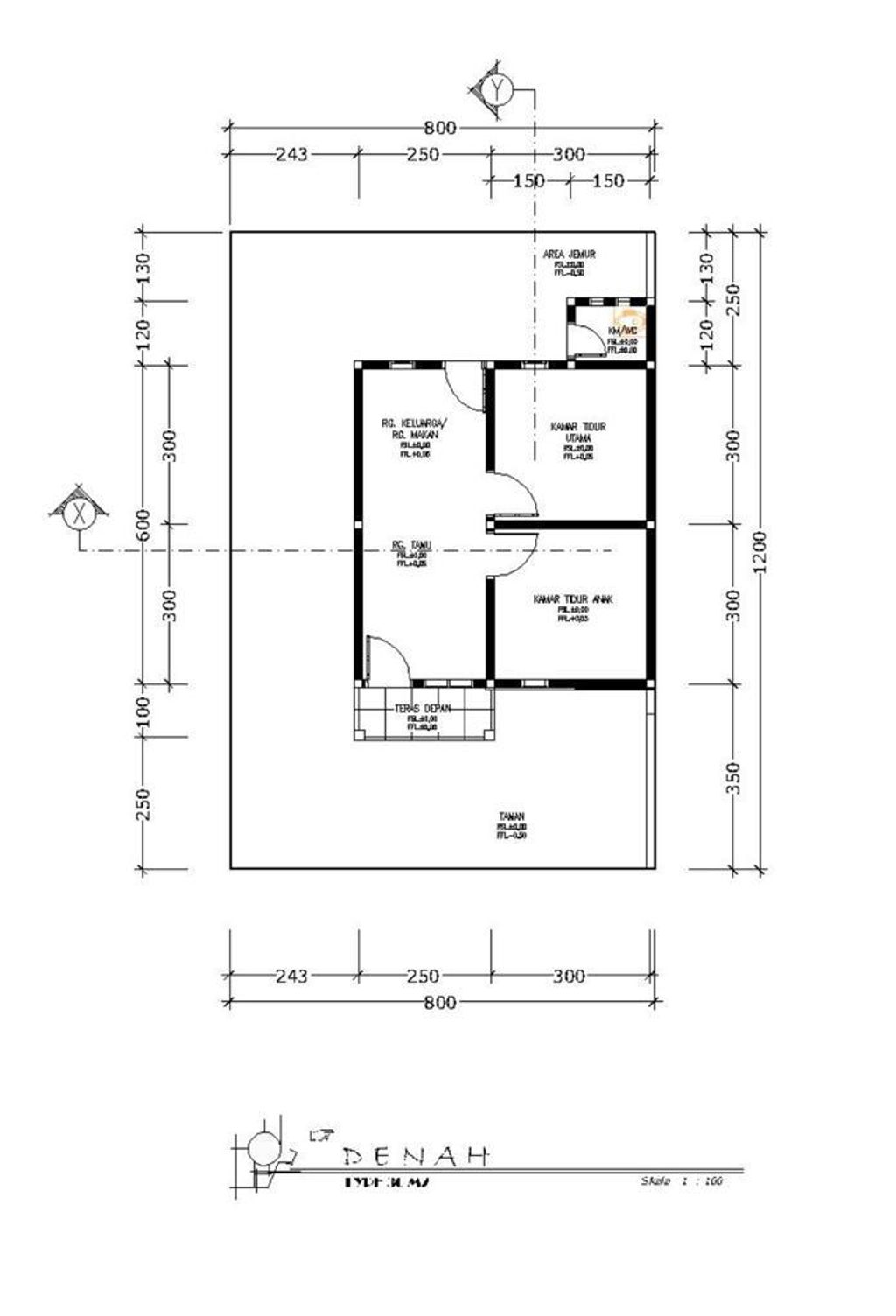
Harga: Rp 168.000.000
Luas Bangunan: 36m 2
Luas Lahan: 96m 2
Kamar Tidur: 2
Kamar Mandi: 1
a. Atap
SPANDEK
b. Dinding
BATU MERAH/BATA
c. Lantai & Pondasi
KRAMIK/TEHEL & BATU MORAMO


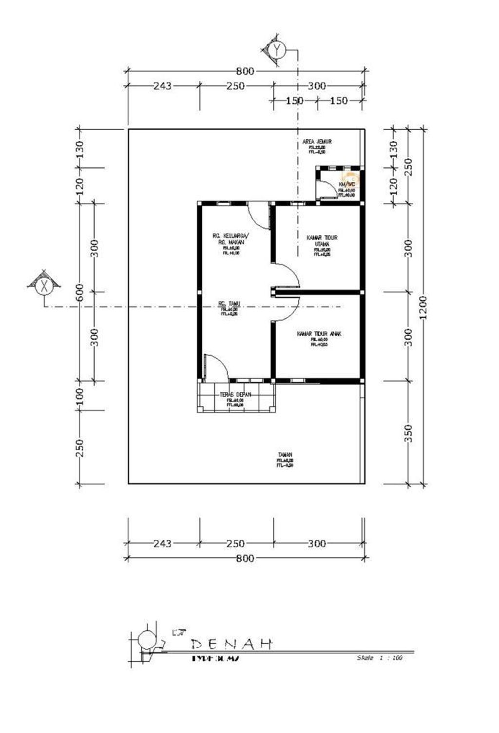
Harga: Rp 173.000.000
Luas Bangunan: 36m 2
Luas Lahan: 96m 2
Kamar Tidur: 2
Kamar Mandi: 1
a. Atap
SPANDEK
b. Dinding
BATU BATA
c. Lantai & Pondasi
KRAMIK & BATU MORAMO


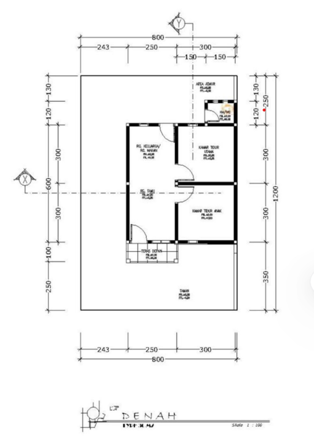
Harga: Rp 173.000.000
Luas Bangunan: 36m 2
Luas Lahan: 96m 2
Kamar Tidur: 2
Kamar Mandi: 1
a. Atap
SPANDEK
b. Dinding
BATU BATA
c. Lantai & Pondasi
KERAMIK & BATU MORAMO