ID Lokasi : KDI0710042025T006
SULAWESI TENGGARA, KOTA KENDARI, Wua-Wua, Anawai
PT PROPERTI NIAGA MANDIRI
PERKUMPULAN ASOSIASI PENGEMBANG PERUMAHAN DAN PERMUKIMAN SELURUH INDONESIA
(APERSI)
Subsidi : 81 Unit
Terjual Subsidi : 49 Unit
Komersil : 0 Unit
Terjual Komersil : 0 Unit
Lihat Siteplan Digital




Harga: Rp 173.000
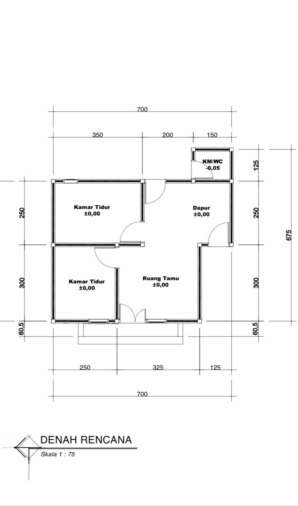
Luas Bangunan: 36m 2
Luas Lahan: 91m 2
Kamar Tidur: 2
Kamar Mandi: 1
a. Atap
spandek galvallum ukuran 3,40 , ketebalan 0,025 , rangka kayu
b. Dinding
batu bata, semen conch, pasir nambo caputan 1 banding 5 lori
c. Lantai & Pondasi
keramik arwana ukuran 50x50 & batu moramo,semen conch, pasir nambo,caputan 1 banding 5 lori


Harga: Rp 173.000.000
Luas Bangunan: 36m 2
Luas Lahan: 84m 2
Kamar Tidur: 2
Kamar Mandi: 1
a. Atap
spandek
b. Dinding
batu merah
c. Lantai & Pondasi
TEGEL LANTAI 50 CM X 50 CM & BATU GUNUNG


Harga: Rp 173.000.000
Luas Bangunan: 36m 2
Luas Lahan: 84m 2
Kamar Tidur: 2
Kamar Mandi: 1
a. Atap
spandek galvallum ukuran 3,40, ketebalan 0,025, rangka kayu
b. Dinding
batu bata, semen conch, pasir nambo campuran 1 banding 5 lori
c. Lantai & Pondasi
keramik arwana ukuran 50x50 & batu moramo, semen conch , pasir nambo campuran 1 banding 5 lori