ALAM KEMUNING RESIDENCE

ID Lokasi : KDI1010022025T004
SULAWESI TENGGARA, KOTA KENDARI, Kambu, Mokoau
SEMESTA ALAM KEMUNING
PERKUMPULAN ASOSIASI PENGEMBANG PERUMAHAN DAN PERMUKIMAN SELURUH INDONESIA (APERSI)


Status Rumah

Subsidi : 22 Unit

Terjual Subsidi : 8 Unit

Komersil : 0 Unit

Terjual Komersil : 0 Unit

Lihat Siteplan Digital

Peta Lokasi



Kantor Pemasaran

jl. lingkung pesantren kel, mokoau kec. kambu kota kendari no. A.01 SULAWESI TENGGARA, KOTA KENDARI, Kambu, Mokoau

Telp : 08114099978

Email : kemuningalam@gmail.com

Website :

Foto Lokasi


foto gerbang perumahan ALAM KEMUNING RESIDENCE
Foto Gerbang/Jalan Utama
foto contoh rumah perumahan ALAM KEMUNING RESIDENCE
Foto Rumah Contoh
foto posisi tengah perumahan ALAM KEMUNING RESIDENCE
Foto Posisi Tengah Lokasi

Tipe Rumah


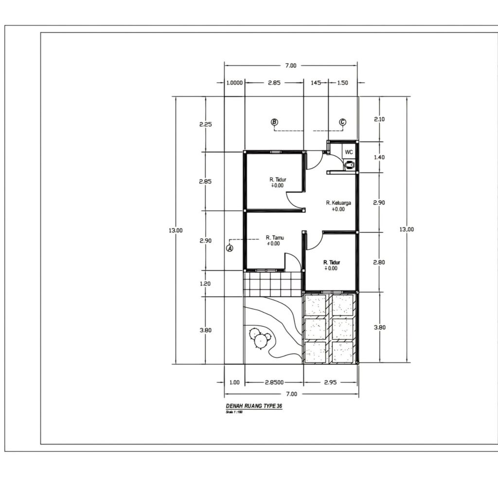
1. Tipe 36 (subsidi)
foto tampak rumah tipe 36 perumahan ALAM KEMUNING RESIDENCE
foto denah rumah tipe 36 perumahan ALAM KEMUNING RESIDENCE

Harga: Rp 173.000.000

Luas Bangunan: 36m 2

Luas Lahan: 91m 2

Kamar Tidur: 2

Kamar Mandi: 1

Spesifikasi Teknis

a. Atap
ATAP SPANDEK/ RANGKA KAYU KELAS I

b. Dinding
BATAKO/PLASTER DAN CAT

c. Lantai & Pondasi
LANTAI KERAMIK 40X40 DAN BATU KALI & PONDASI BATU GUNUNG


Peta Lokasi


Kantor Pemasaran

jl. lingkung pesantren kel, mokoau kec. kambu kota kendari no. A.01 SULAWESI TENGGARA, KOTA KENDARI, Kambu, Mokoau

Telp : 08114099978

Email : kemuningalam@gmail.com

Website :