GREEN PESONA ABADI 3

ID Lokasi : KDL0720172023T010
JAWA TENGAH, KAB KENDAL, Boja, Meteseh
DHIYO ABADI LAND
Himpunan Pengembang Permukiman dan Perumahan Rakyat (HIMPERRA)


Status Rumah

Subsidi : 4 Unit

Terjual Subsidi : 61 Unit

Komersil : 0 Unit

Terjual Komersil : 0 Unit

Lihat Siteplan Digital

Peta Lokasi



Kantor Pemasaran

Desa Meteseh, Rt. 06 / Rw. 05, Dusun Rowosari no. 1 JAWA TENGAH, KAB KENDAL, Boja, Meteseh

Telp : 081326012033

Email : dhiyoabadiland@gmail.com

Website :

Foto Lokasi


foto gerbang perumahan GREEN PESONA ABADI 3
Foto Gerbang/Jalan Utama
foto contoh rumah perumahan GREEN PESONA ABADI 3
Foto Rumah Contoh
foto posisi tengah perumahan GREEN PESONA ABADI 3
Foto Posisi Tengah Lokasi

Tipe Rumah


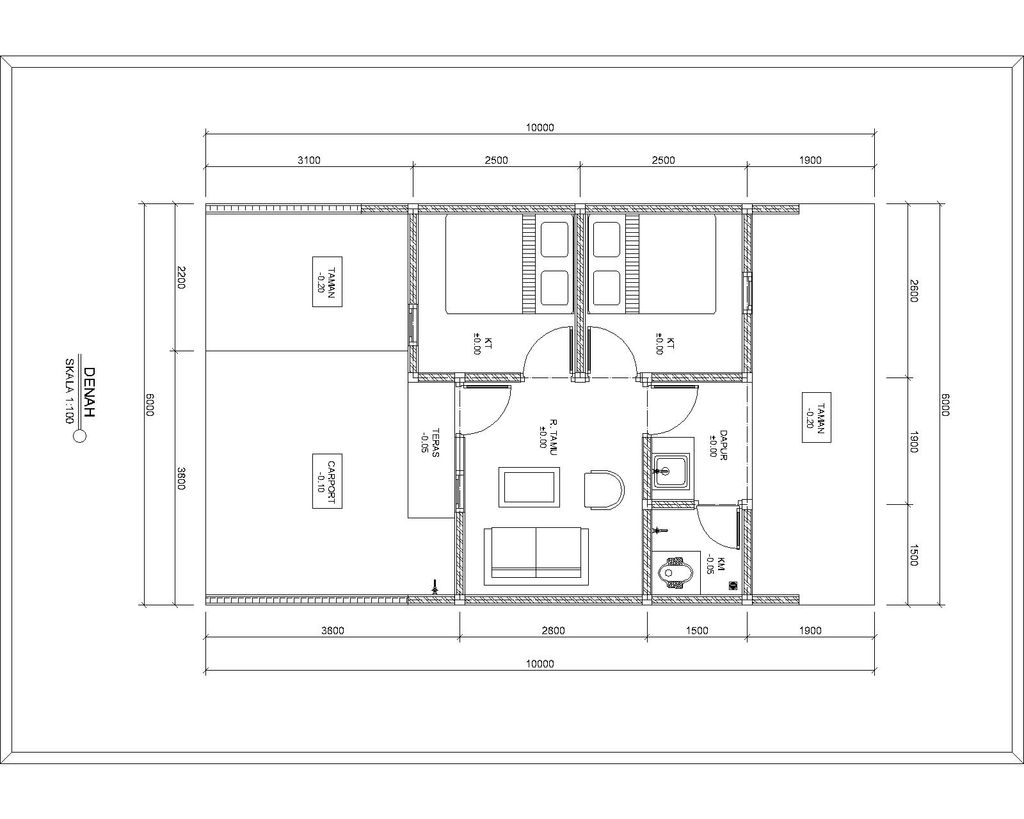
1. Tipe 27/60 (subsidi)
foto tampak rumah tipe 27/60 perumahan GREEN PESONA ABADI 3
foto denah rumah tipe 27/60 perumahan GREEN PESONA ABADI 3

Harga: Rp 162.000.000

Luas Bangunan: 27m 2

Luas Lahan: 60m 2

Kamar Tidur: 2

Kamar Mandi: 1

Spesifikasi Teknis

a. Atap
Genteng Mantili

b. Dinding
Hebel

c. Lantai & Pondasi
Keramik & Batu Kali


Peta Lokasi


Kantor Pemasaran

Desa Meteseh, Rt. 06 / Rw. 05, Dusun Rowosari no. 1 JAWA TENGAH, KAB KENDAL, Boja, Meteseh

Telp : 081326012033

Email : dhiyoabadiland@gmail.com

Website :