ID Lokasi : KDR0420062025T001
JAWA TIMUR, KAB KEDIRI, Ngadiluwih, Dukuh
PT DHAHA JAYA PERSADA
REAL ESTATE INDONESIA
(REI)
Subsidi : 95 Unit
Terjual Subsidi : 22 Unit
Komersil : 0 Unit
Terjual Komersil : 0 Unit
Lihat Siteplan Digital




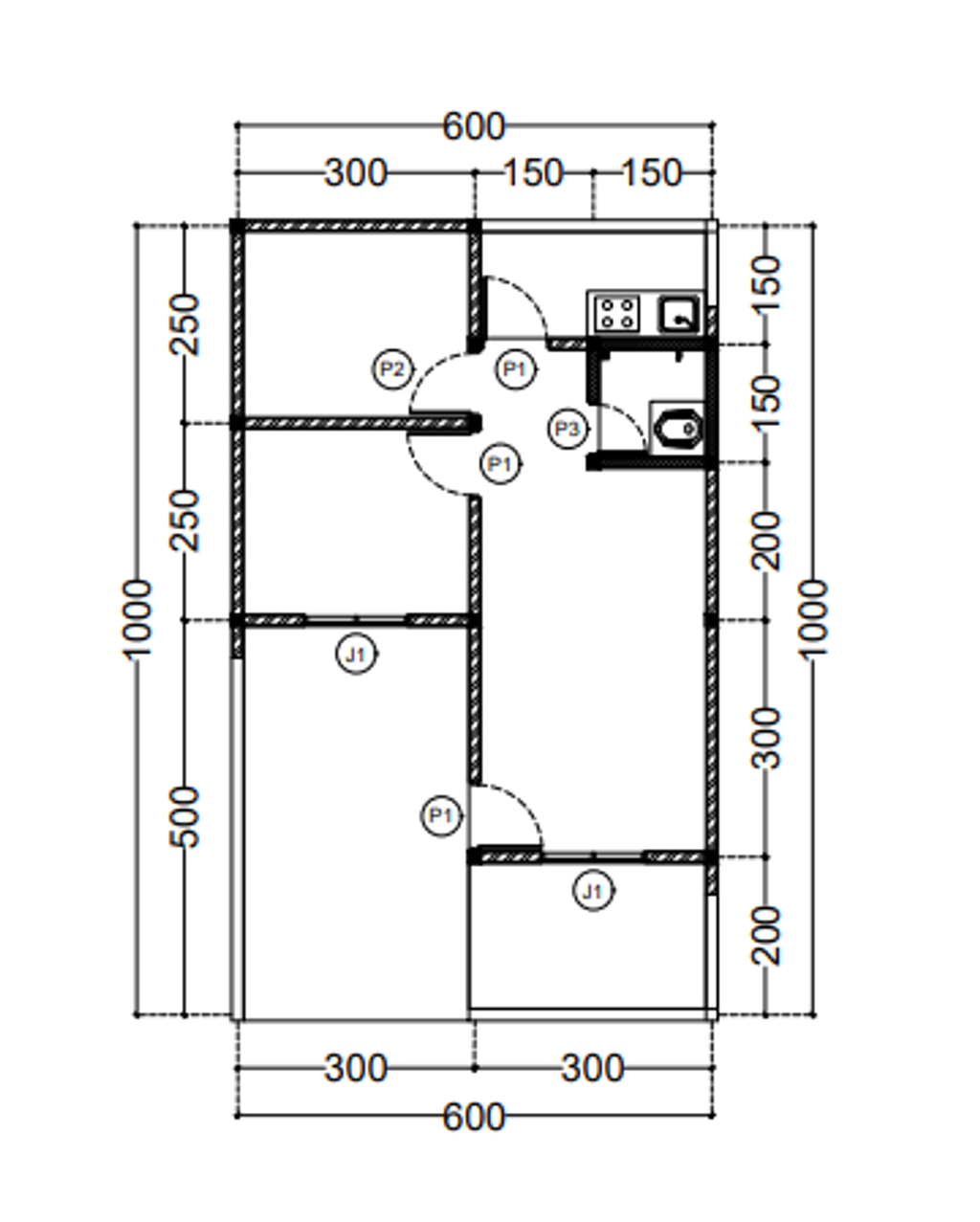
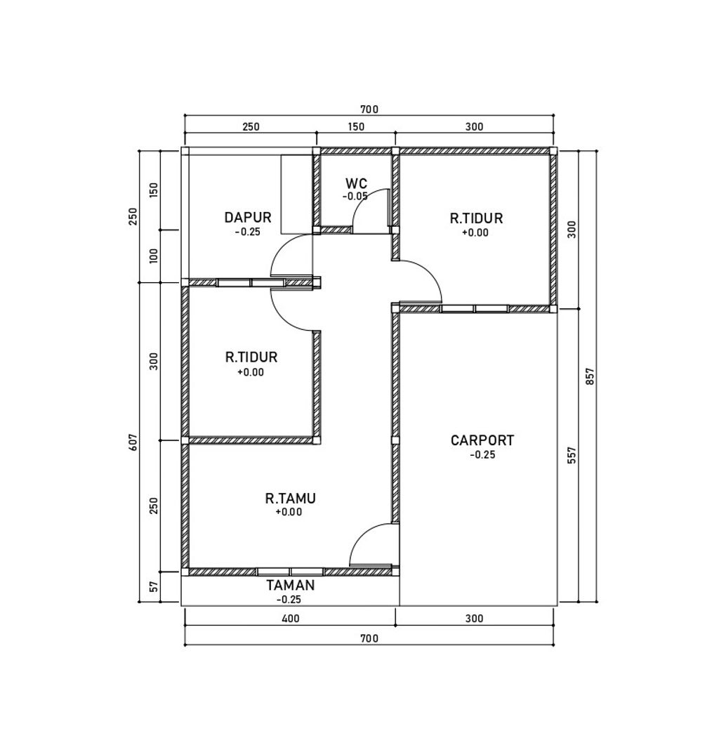
Harga: Rp 166.000.000
Luas Bangunan: 36m 2
Luas Lahan: 60m 2
Kamar Tidur: 2
Kamar Mandi: 1
a. Atap
Rangka Baaja ringan dan genteng beton
b. Dinding
Batako finish Plaster aci
c. Lantai & Pondasi
keramik 40 x 40 & Batu Kali


Harga: Rp 166.000.000
Luas Bangunan: 36m 2
Luas Lahan: 60m 2
Kamar Tidur: 2
Kamar Mandi: 1
a. Atap
Rangka Baja ringan dan genteng beton
b. Dinding
Batako Finish PLaster Aci
c. Lantai & Pondasi
Keramik 40 x 40 & Batu Kali


Harga: Rp 166.000.000
Luas Bangunan: 36m 2
Luas Lahan: 60m 2
Kamar Tidur: 2
Kamar Mandi: 1
a. Atap
Rangka Baja ringan dan genteng Beton
b. Dinding
Batako Finish Plaster Aci
c. Lantai & Pondasi
Keramik 40 x 40 & Batu Kali