ID Lokasi : KDR2520082025T003
JAWA TIMUR, KAB KEDIRI, Ngasem, Karangrejo
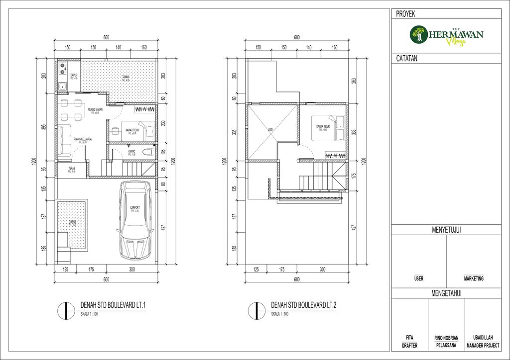
PT GRIYA BAKTI PAMENANG
ASOSIASI PENGEMBANG RUMAH SEDERHANA SEHAT NASIONAL
(APERNAS)
Subsidi : 0 Unit
Terjual Subsidi : 0 Unit
Komersil : 2 Unit
Terjual Komersil : 8 Unit
Lihat Siteplan DigitalJalan Jayakatwang no. 247 JAWA TIMUR, KAB KEDIRI, Ngasem, Karangrejo
Telp : 0341 3029983
Email : pt.griyabaktipamenang@gmail.com
Website : thehermawan.id





Harga: Rp 514.320.000
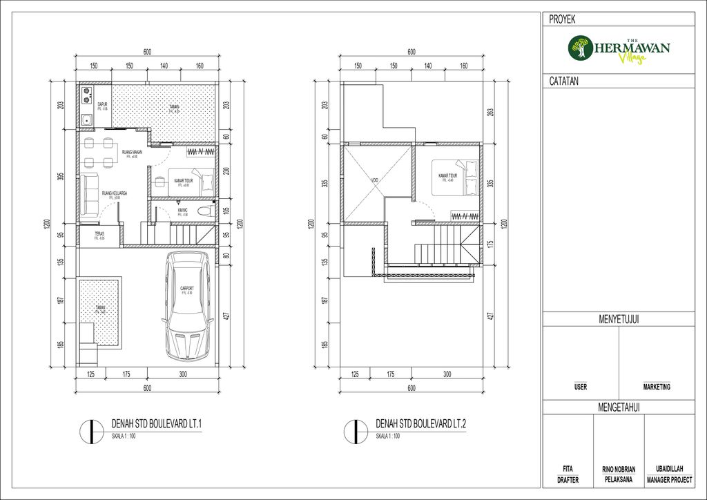
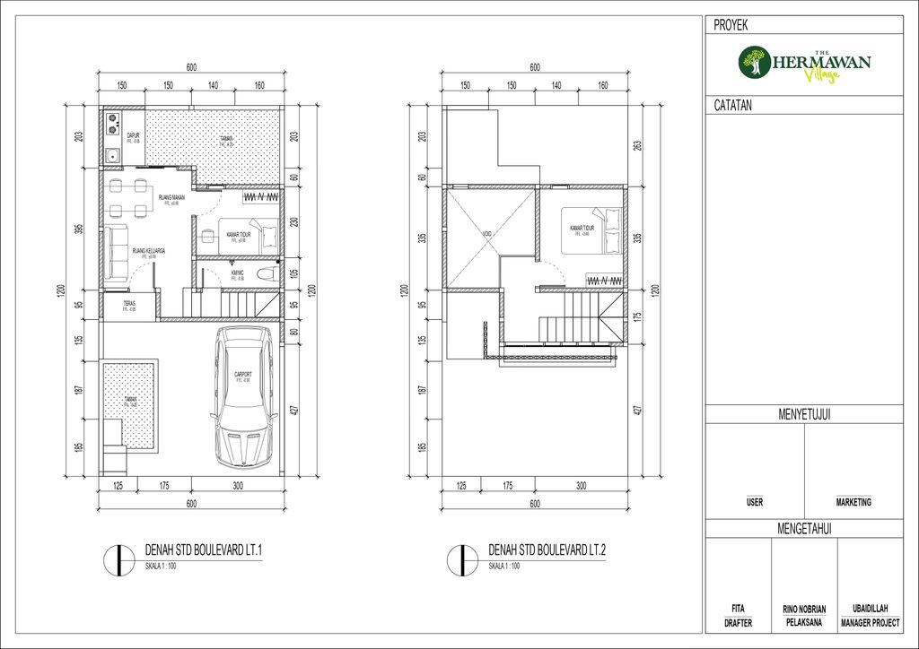
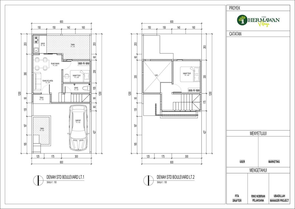
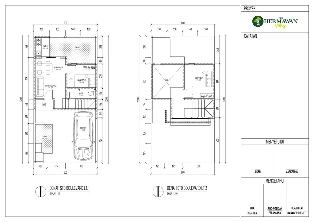
Luas Bangunan: 52m 2
Luas Lahan: 72m 2
Kamar Tidur: 2
Kamar Mandi: 1
a. Atap
Rangka atap baja ringan penutup atap genteng beton + cat
b. Dinding
Dinding bata ringan plester aci finishing cat
c. Lantai & Pondasi
Lantai Rabat cor finishing granit & Lantai 1 : pondasi batu kali dan struktur beton bertulang, Lantai 2 : pondasi batu kali dan pondasi foot plat struktur beton bertulang


Harga: Rp 514.320.000
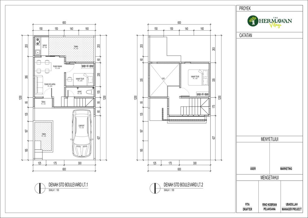
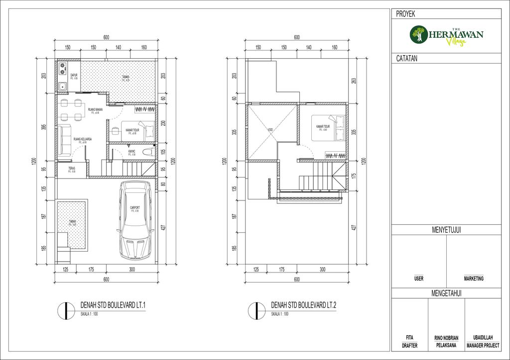
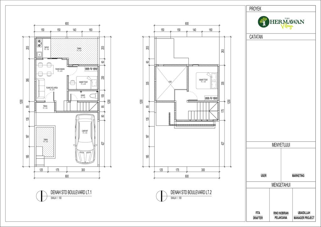
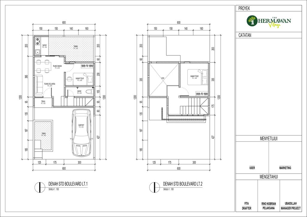
Luas Bangunan: 47m 2
Luas Lahan: 72m 2
Kamar Tidur: 2
Kamar Mandi: 1
a. Atap
Rangka atap baja ringan penutup atap genteng beton + cat
b. Dinding
Dinding bata ringan plester aci finishing cat
c. Lantai & Pondasi
Lantai Rabat cor finishing granit
& Lantai 1 : pondasi batu kali dan struktur beton bertulang, Lantai 2 : pondasi batu kali dan pondasi foot plat struktur beton bertulang


Harga: Rp 514.320.000
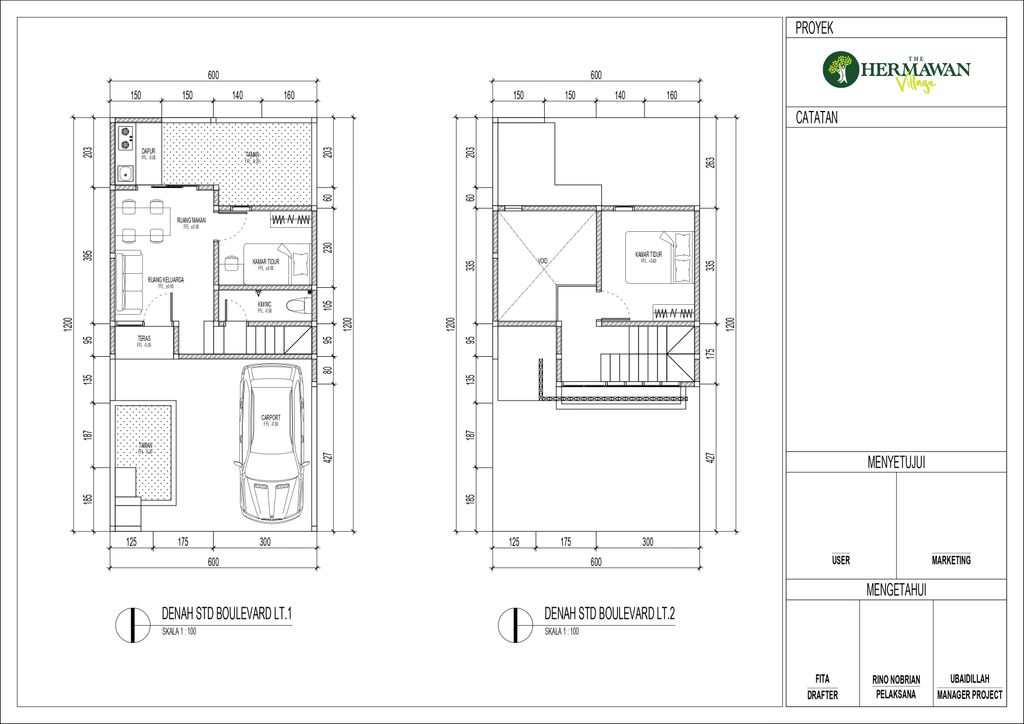
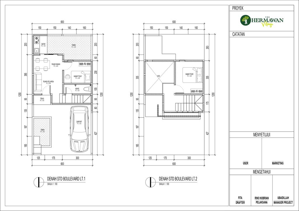
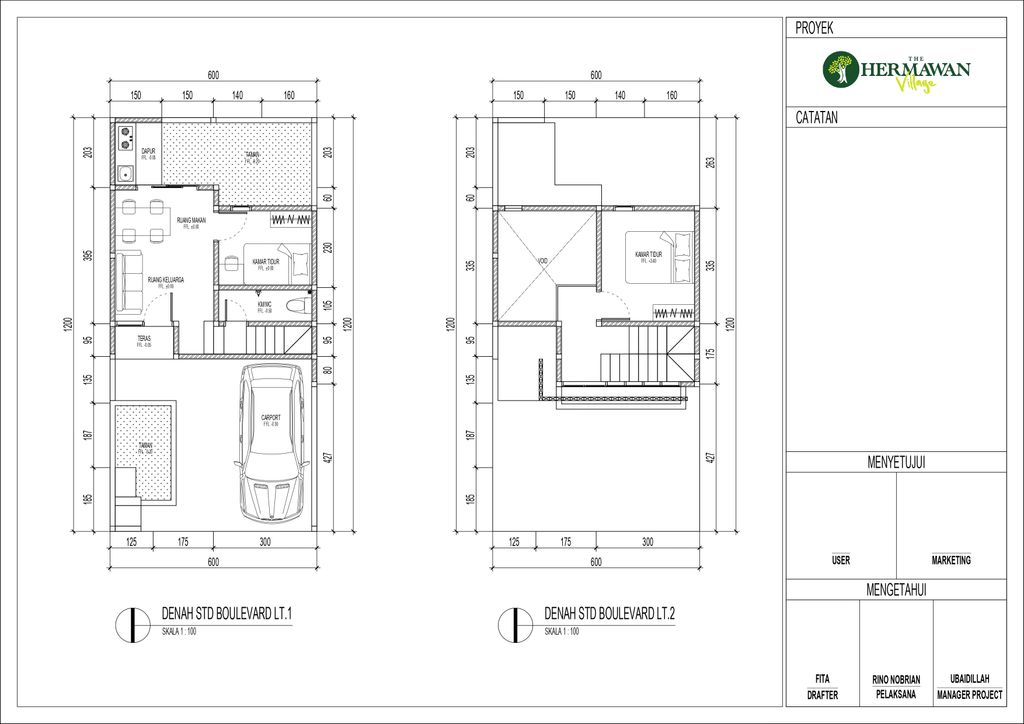
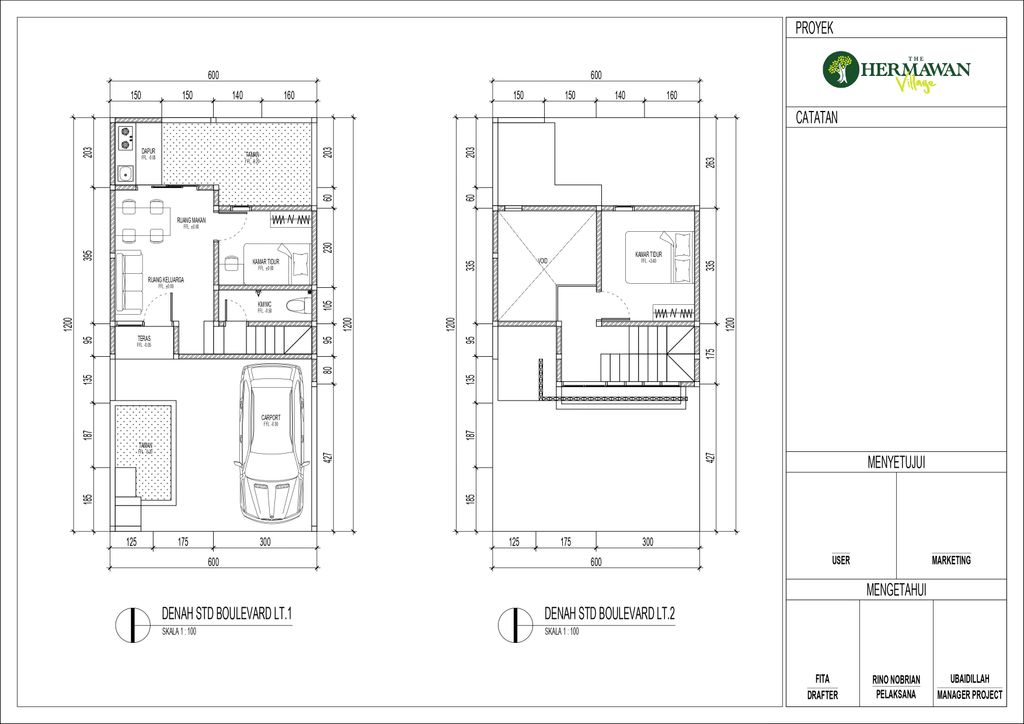
Luas Bangunan: 47m 2
Luas Lahan: 72m 2
Kamar Tidur: 2
Kamar Mandi: 1
a. Atap
Rangka atap baja ringan penutup atap genteng beton + cat
b. Dinding
Dinding bata ringan plester aci finishing cat
c. Lantai & Pondasi
Lantai Rabat cor finishing granit & Lantai 1 : pondasi batu kali dan struktur beton bertulang, Lantai 2 : pondasi batu kali dan pondasi foot plat struktur beton bertulang


Harga: Rp 633.360.000
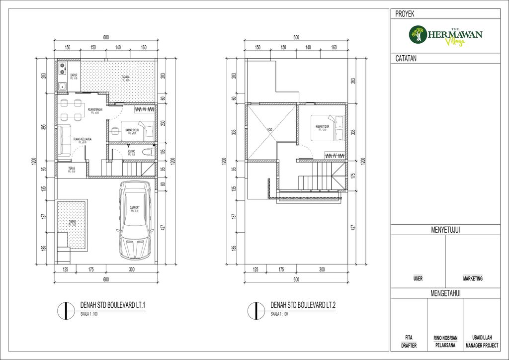
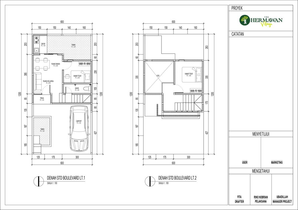
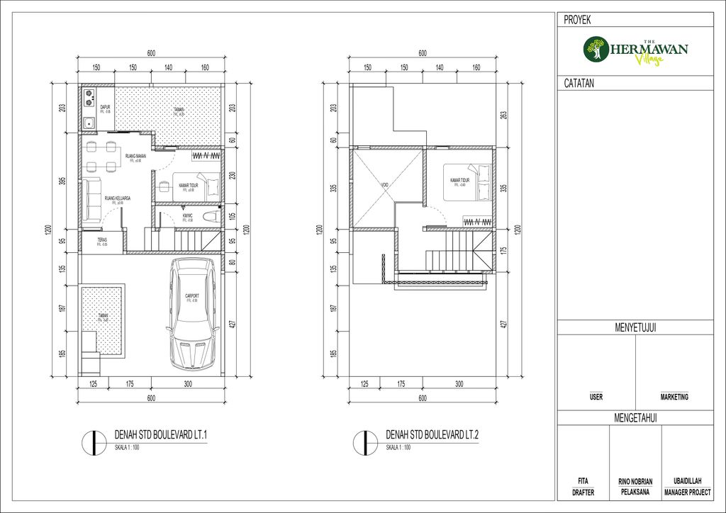
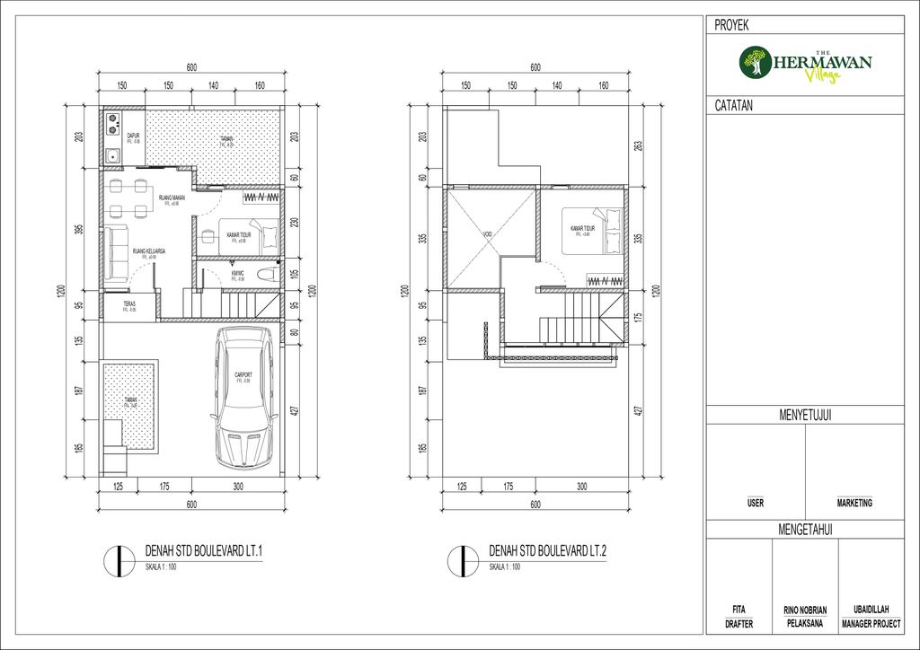
Luas Bangunan: 47m 2
Luas Lahan: 96m 2
Kamar Tidur: 2
Kamar Mandi: 1
a. Atap
Rangka atap baja ringan penutup atap genteng beton + cat
b. Dinding
Dinding bata ringan plester aci finishing cat
c. Lantai & Pondasi
Lantai Rabat cor finishing granit
& Lantai 1 : pondasi batu kali dan struktur beton bertulang, Lantai 2 : pondasi batu kali dan pondasi foot plat struktur beton bertulang


Harga: Rp 625.680.000
Luas Bangunan: 47m 2
Luas Lahan: 96m 2
Kamar Tidur: 2
Kamar Mandi: 1
a. Atap
Rangka atap baja ringan penutup atap genteng beton + cat
b. Dinding
Dinding bata ringan plester aci finishing cat
c. Lantai & Pondasi
Lantai Rabat cor finishing granit & Lantai 1 : pondasi batu kali dan struktur beton bertulang, Lantai 2 : pondasi batu kali dan pondasi foot plat struktur beton bertulang


Harga: Rp 508.560.000
Luas Bangunan: 47m 2
Luas Lahan: 72m 2
Kamar Tidur: 2
Kamar Mandi: 1
a. Atap
Rangka atap baja ringan penutup atap genteng beton + cat
b. Dinding
Dinding bata ringan plester aci finishing cat
c. Lantai & Pondasi
Lantai Rabat cor finishing granit & Lantai 1 : pondasi batu kali dan struktur beton bertulang, Lantai 2 : pondasi batu kali dan pondasi foot plat struktur beton bertulang


Harga: Rp 508.560.000
Luas Bangunan: 47m 2
Luas Lahan: 72m 2
Kamar Tidur: 2
Kamar Mandi: 1
a. Atap
Rangka atap baja ringan penutup atap genteng beton + cat
b. Dinding
Dinding bata ringan plester aci finishing cat
c. Lantai & Pondasi
Lantai Rabat cor finishing granit & Lantai 1 : pondasi batu kali dan struktur beton bertulang, Lantai 2 : pondasi batu kali dan pondasi foot plat struktur beton bertulang


Harga: Rp 508.560.000
Luas Bangunan: 47m 2
Luas Lahan: 72m 2
Kamar Tidur: 2
Kamar Mandi: 1
a. Atap
Rangka atap baja ringan penutup atap genteng beton + cat
b. Dinding
Dinding bata ringan plester aci finishing cat
c. Lantai & Pondasi
Lantai Rabat cor finishing granit & Lantai 1 : pondasi batu kali dan struktur beton bertulang, Lantai 2 : pondasi batu kali dan pondasi foot plat struktur beton bertulang


Harga: Rp 762.000.000
Luas Bangunan: 47m 2
Luas Lahan: 135m 2
Kamar Tidur: 2
Kamar Mandi: 1
a. Atap
Rangka atap baja ringan penutup atap genteng beton + cat
b. Dinding
Dinding bata ringan plester aci finishing cat
c. Lantai & Pondasi
Lantai Rabat cor finishing granit
& Lantai 1 : pondasi batu kali dan struktur beton bertulang, Lantai 2 : pondasi batu kali dan pondasi foot plat struktur beton bertulang


Harga: Rp 861.520.000
Luas Bangunan: 47m 2
Luas Lahan: 142m 2
Kamar Tidur: 2
Kamar Mandi: 1
a. Atap
Rangka atap baja ringan penutup atap genteng beton + cat
b. Dinding
Dinding bata ringan plester aci finishing cat
c. Lantai & Pondasi
Lantai Rabat cor finishing granit & Lantai 1 : pondasi batu kali dan struktur beton bertulang, Lantai 2 : pondasi batu kali dan pondasi foot plat struktur beton bertulang


Harga: Rp 514.320.000
Luas Bangunan: 47m 2
Luas Lahan: 72m 2
Kamar Tidur: 2
Kamar Mandi: 1
a. Atap
Rangka atap baja ringan penutup atap genteng beton + cat
b. Dinding
Dinding bata ringan plester aci finishing cat
c. Lantai & Pondasi
Lantai Rabat cor finishing granit & Lantai 1 : pondasi batu kali dan struktur beton bertulang, Lantai 2 : pondasi batu kali dan pondasi foot plat struktur beton bertulang


Harga: Rp 633.360.000
Luas Bangunan: 47m 2
Luas Lahan: 96m 2
Kamar Tidur: 2
Kamar Mandi: 1
a. Atap
Rangka atap baja ringan penutup atap genteng beton + cat
b. Dinding
Dinding bata ringan plester aci finishing cat
c. Lantai & Pondasi
Lantai Rabat cor finishing granit & Lantai 1 : pondasi batu kali dan struktur beton bertulang, Lantai 2 : pondasi batu kali dan pondasi foot plat struktur beton bertulang


Harga: Rp 625.680.000
Luas Bangunan: 47m 2
Luas Lahan: 96m 2
Kamar Tidur: 2
Kamar Mandi: 1
a. Atap
Rangka atap baja ringan penutup atap genteng beton + cat
b. Dinding
Dinding bata ringan plester aci finishing cat
c. Lantai & Pondasi
Lantai Rabat cor finishing granit
& Lantai 1 : pondasi batu kali dan struktur beton bertulang, Lantai 2 : pondasi batu kali dan pondasi foot plat struktur beton bertulang


Harga: Rp 508.560.000
Luas Bangunan: 47m 2
Luas Lahan: 72m 2
Kamar Tidur: 2
Kamar Mandi: 1
a. Atap
Rangka atap baja ringan penutup atap genteng beton + cat
b. Dinding
Dinding bata ringan plester aci finishing cat
c. Lantai & Pondasi
Lantai Rabat cor finishing granit & Lantai 1 : pondasi batu kali dan struktur beton bertulang, Lantai 2 : pondasi batu kali dan pondasi foot plat struktur beton bertulang


Harga: Rp 508.560.000
Luas Bangunan: 47m 2
Luas Lahan: 72m 2
Kamar Tidur: 2
Kamar Mandi: 1
a. Atap
Rangka atap baja ringan penutup atap genteng beton + cat
b. Dinding
Dinding bata ringan plester aci finishing cat
c. Lantai & Pondasi
Lantai Rabat cor finishing granit
& Lantai 1 : pondasi batu kali dan struktur beton bertulang, Lantai 2 : pondasi batu kali dan pondasi foot plat struktur beton bertulang


Harga: Rp 508.560.000
Luas Bangunan: 47m 2
Luas Lahan: 72m 2
Kamar Tidur: 2
Kamar Mandi: 1
a. Atap
Rangka atap baja ringan penutup atap genteng beton + cat
b. Dinding
Dinding bata ringan plester aci finishing cat
c. Lantai & Pondasi
Lantai Rabat cor finishing granit
& Lantai 1 : pondasi batu kali dan struktur beton bertulang, Lantai 2 : pondasi batu kali dan pondasi foot plat struktur beton bertulang


Harga: Rp 508.560.000
Luas Bangunan: 47m 2
Luas Lahan: 72m 2
Kamar Tidur: 2
Kamar Mandi: 1
a. Atap
Rangka atap baja ringan penutup atap genteng beton + cat
b. Dinding
Dinding bata ringan plester aci finishing cat
c. Lantai & Pondasi
Lantai Rabat cor finishing granit
& Lantai 1 : pondasi batu kali dan struktur beton bertulang, Lantai 2 : pondasi batu kali dan pondasi foot plat struktur beton bertulang


Harga: Rp 508.560.000
Luas Bangunan: 47m 2
Luas Lahan: 72m 2
Kamar Tidur: 2
Kamar Mandi: 1
a. Atap
Rangka atap baja ringan penutup atap genteng beton + cat
b. Dinding
Dinding bata ringan plester aci finishing cat
c. Lantai & Pondasi
Lantai Rabat cor finishing granit & Lantai 1 : pondasi batu kali dan struktur beton bertulang, Lantai 2 : pondasi batu kali dan pondasi foot plat struktur beton bertulang
Jalan Jayakatwang no. 247 JAWA TIMUR, KAB KEDIRI, Ngasem, Karangrejo
Telp : 0341 3029983
Email : pt.griyabaktipamenang@gmail.com
Website : thehermawan.id