ID Lokasi : KIS2010022020T002
SUMATERA UTARA, KAB ASAHAN, Kota Kisaran Timur, Siumbut Umbut
SADA KARSA LESTARI
REAL ESTATE INDONESIA
(REI)
Subsidi : 21 Unit
Terjual Subsidi : 16 Unit
Komersil : 0 Unit
Terjual Komersil : 2 Unit
Lihat Siteplan Digital




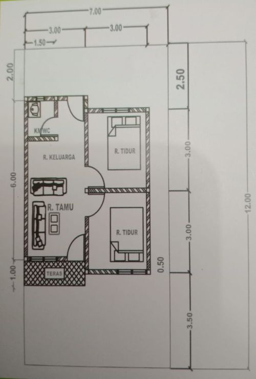
Harga: Rp 130.000.000
Luas Bangunan: 36m 2
Luas Lahan: 84m 2
Kamar Tidur: 2
Kamar Mandi: 1
a. Atap
Atap Genteng Metal Rangka Atap Baja Ringan
b. Dinding
Dinding Bata Finishing Cat
c. Lantai & Pondasi
Lantai Keramik 40 x 40 & Pondasi Batu Kali