ID Lokasi : KJN0720082021T001
JAWA TENGAH, KAB PEKALONGAN, Karanganyar, Karangsari
AEGIIS CIPTA REALTI
Himpunan Pengembang Permukiman dan Perumahan Rakyat
(HIMPERRA)
Subsidi : 44 Unit
Terjual Subsidi : 25 Unit
Komersil : 0 Unit
Terjual Komersil : 8 Unit
Lihat Siteplan DigitalJl. Raya Kulu Baru, Kecamatan Karanganyar no. 16 JAWA TENGAH, KAB PEKALONGAN, Karanganyar, Banjarejo
Telp : 082323613561
Email : ptaegisciptarealty@gmail.com
Website : -




Harga: Rp 150.000.000
Luas Bangunan: 34m 2
Luas Lahan: 60m 2
Kamar Tidur: 2
Kamar Mandi: 1
a. Atap
baja ringan
b. Dinding
bata merah
c. Lantai & Pondasi
keramik 40x40 & batu kali

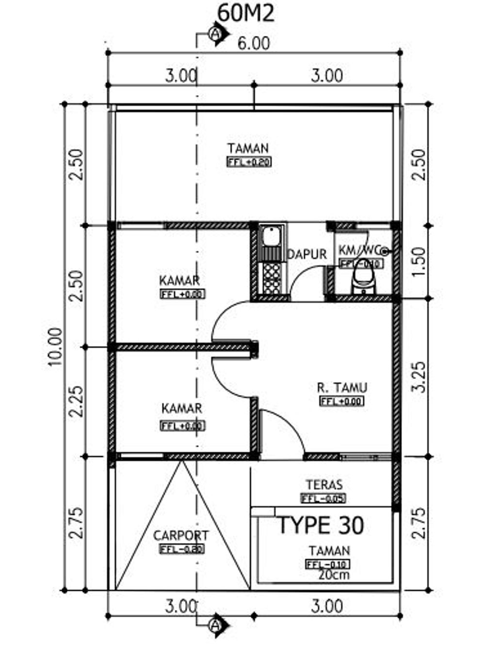
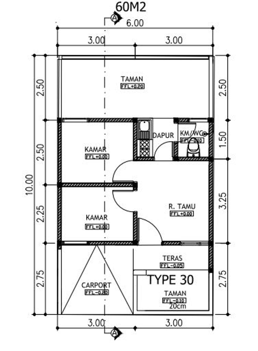
Harga: Rp 145.000.000
Luas Bangunan: 30m 2
Luas Lahan: 60m 2
Kamar Tidur: 2
Kamar Mandi: 1
a. Atap
Baja Ringan
b. Dinding
Bata Merah
c. Lantai & Pondasi
keramik 40x40 & batu kali
Jl. Raya Kulu Baru, Kecamatan Karanganyar no. 16 JAWA TENGAH, KAB PEKALONGAN, Karanganyar, Banjarejo
Telp : 082323613561
Email : ptaegisciptarealty@gmail.com
Website : -