ID Lokasi : KJN1120112022T001
JAWA TENGAH, KAB PEKALONGAN, Bojong, Menjangan
PT RAHMA DINTIA UNGGUL ABADI
REAL ESTATE INDONESIA
(REI)
Subsidi : 13 Unit
Terjual Subsidi : 24 Unit
Komersil : 3 Unit
Terjual Komersil : 10 Unit
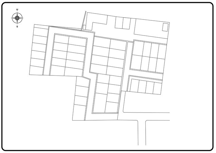
Lihat Siteplan Digital
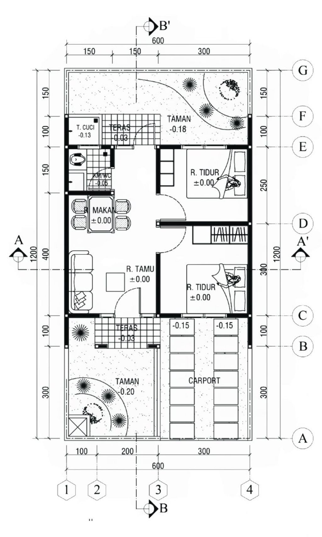
Harga: Rp 150.500.000
Luas Bangunan: 30m 2
Luas Lahan: 60m 2
Kamar Tidur: 2
Kamar Mandi: 1
a. Atap
rangka baja ringan penutup genteng
b. Dinding
bata merah di plester
c. Lantai & Pondasi
keramik & pondasi batukali slot beton

Harga: Rp 265.000.000
Luas Bangunan: 45m 2
Luas Lahan: 84m 2
Kamar Tidur: 2
Kamar Mandi: 1
a. Atap
baja ringan tutup genteng
b. Dinding
batamerah diplester
c. Lantai & Pondasi
granit 60x60 putih & batukali slot beton

Harga: Rp 265.000.000
Luas Bangunan: 45m 2
Luas Lahan: 84m 2
Kamar Tidur: 2
Kamar Mandi: 1
a. Atap
bajaringan genteng super mntili
b. Dinding
bata merah diplester
c. Lantai & Pondasi
granit 60x60 putih & batukali slot beton

Harga: Rp 185.000.000
Luas Bangunan: 36m 2
Luas Lahan: 66m 2
Kamar Tidur: 2
Kamar Mandi: 1
a. Atap
bajaringan genteng
b. Dinding
bata merah
c. Lantai & Pondasi
keramik 40x40 & batukali slot beton

Harga: Rp 1.000.000.000
Luas Bangunan: 329m 2
Luas Lahan: 329m 2
Kamar Tidur: 0
Kamar Mandi: 0
a. Atap
0
b. Dinding
0
c. Lantai & Pondasi
0 & 0


Harga: Rp 320.000.000
Luas Bangunan: 36m 2
Luas Lahan: 68m 2
Kamar Tidur: 2
Kamar Mandi: 1
a. Atap
BAJA RINGAN GENTENG
b. Dinding
BATA MERAH
c. Lantai & Pondasi
KERAMIK 40 x 40 & BATU KALI
SLOT BETHON


Harga: Rp 166.000.000
Luas Bangunan: 30m 2
Luas Lahan: 60m 2
Kamar Tidur: 2
Kamar Mandi: 1
a. Atap
BAJA RINGAN GENTENG
b. Dinding
BATA MERAH
c. Lantai & Pondasi
KERAMIK 40 x 40 & BATU KALI SLOT BETHON


Harga: Rp 166.000.000
Luas Bangunan: 36m 2
Luas Lahan: 60m 2
Kamar Tidur: 2
Kamar Mandi: 1
a. Atap
BAJA RINGAN GENTENG
b. Dinding
BATA MERAH
c. Lantai & Pondasi
KERAMIK 40 x 40 & BATU KALI SLOT BETHON


Harga: Rp 166.000.000
Luas Bangunan: 30m 2
Luas Lahan: 60m 2
Kamar Tidur: 2
Kamar Mandi: 1
a. Atap
GENTENG
b. Dinding
BATA
c. Lantai & Pondasi
KERAMIK & BATU KALI, SLOT, BETON