ID Lokasi : KJN1310192025T001
JAWA TENGAH, KAB PEKALONGAN, Kedungwuni, Kedungwuni Timur
PT DUTA PROPERTI INDONESIA
PERKUMPULAN ASOSIASI PENGEMBANG PERUMAHAN DAN PERMUKIMAN SELURUH INDONESIA
(APERSI)
Subsidi : 24 Unit
Terjual Subsidi : 39 Unit
Komersil : 8 Unit
Terjual Komersil : 0 Unit
Lihat Siteplan Digital




Harga: Rp 166.000.000
Luas Bangunan: 30m 2
Luas Lahan: 60m 2
Kamar Tidur: 2
Kamar Mandi: 1
a. Atap
Genteng
b. Dinding
Batu Bata Merah
c. Lantai & Pondasi
Keramik 40 x 40 & Batu Belah


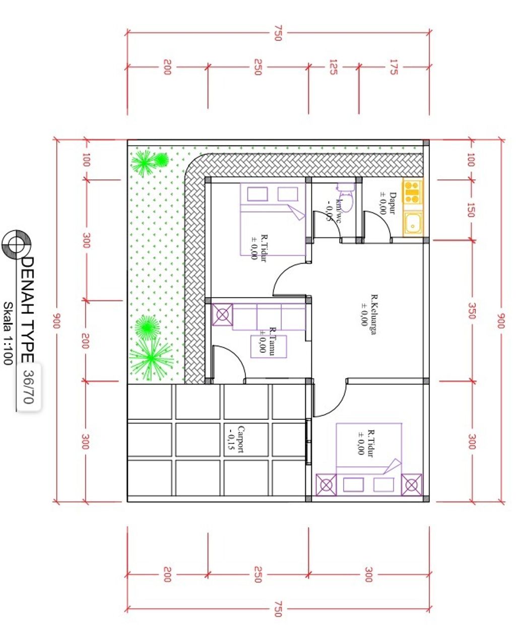
Harga: Rp 285.000.000
Luas Bangunan: 36m 2
Luas Lahan: 70m 2
Kamar Tidur: 2
Kamar Mandi: 1
a. Atap
Genteng
b. Dinding
Batu Bata Merah
c. Lantai & Pondasi
Granit & Batu Belah