ID Lokasi : KJN1620092025T001
JAWA TENGAH, KAB PEKALONGAN, Wiradesa, Kampil
PT ADLA SAFIKA PROPERTY
Himpunan Pengembang Permukiman dan Perumahan Rakyat
(HIMPERRA)
Subsidi : 18 Unit
Terjual Subsidi : 20 Unit
Komersil : 0 Unit
Terjual Komersil : 0 Unit
Lihat Siteplan Digital




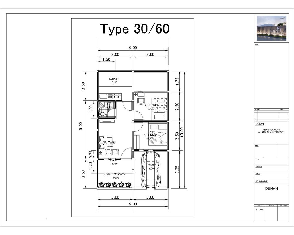
Harga: Rp 162.000.000
Luas Bangunan: 30m 2
Luas Lahan: 60m 2
Kamar Tidur: 2
Kamar Mandi: 1
a. Atap
Rangka atap baja ringan, Penutup atap genteng tanah (SGN)
b. Dinding
Dinding beton bertulang, plesteran, aci, finishing cat
c. Lantai & Pondasi
lantai keramik 40x40 & pondasi batu belah


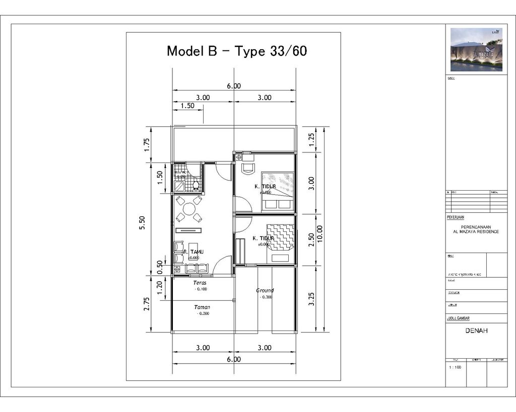
Harga: Rp 164.000.000
Luas Bangunan: 33m 2
Luas Lahan: 60m 2
Kamar Tidur: 2
Kamar Mandi: 1
a. Atap
Rangka atap baja ringan, penutup atap genteng tanah (SGN)
b. Dinding
Dinding beton bertulang, plesteran aci, finishing cat
c. Lantai & Pondasi
Lantai keramik 40x40 & Pondasi batu belah


Harga: Rp 166.000.000
Luas Bangunan: 36m 2
Luas Lahan: 60m 2
Kamar Tidur: 2
Kamar Mandi: 1
a. Atap
Rangka atap baja ringan, penutup atap genteng tanah (SGN)
b. Dinding
Dinding beton bertulang, plesteran aci, finishing cat
c. Lantai & Pondasi
Lantai keramik 40x40 & Pondasi batu belah