ID Lokasi : KLA0520032025T001
LAMPUNG, KAB LAMPUNG SELATAN, Tanjung Bintang, Lematang
PT CEMERLANG JAYA RAYA
ASOSIASI PENGEMBANG PERUMAHAN RAKYAT INDONESIA
(ASPERI)
Subsidi : 26 Unit
Terjual Subsidi : 23 Unit
Komersil : 0 Unit
Terjual Komersil : 0 Unit
Lihat Siteplan Digital




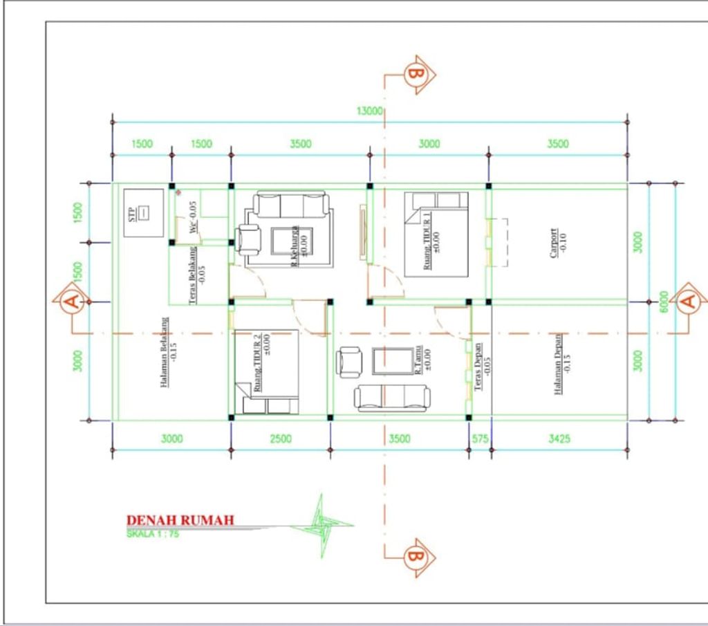
Harga: Rp 166.000.000
Luas Bangunan: 36m 2
Luas Lahan: 78m 2
Kamar Tidur: 2
Kamar Mandi: 1
a. Atap
BAJA METAL PASIR
b. Dinding
PLESTER , CAT
c. Lantai & Pondasi
KERAMIK 40X40 & BATU BELAH