Damai Lestari Residence 5

ID Lokasi : KLA0520082021T001
LAMPUNG, KAB LAMPUNG SELATAN, Tanjung Bintang, Sabah Balau
BUMI BERKAH MADANI
Himpunan Pengembang Permukiman dan Perumahan Rakyat (HIMPERRA)


Status Rumah

Subsidi : 4 Unit

Terjual Subsidi : 92 Unit

Komersil : 0 Unit

Terjual Komersil : 0 Unit

Lihat Siteplan Digital

Peta Lokasi



Kantor Pemasaran

Jl. Pulau Sebesi, Sukarame no. 115 LAMPUNG, KOTA BANDAR LAMPUNG, Sukarame, Sukarame Baru

Telp : 081369009067

Email : lampung.bbm@gmail.com

Website :

Foto Lokasi


foto gerbang perumahan Damai Lestari Residence 5
Foto Gerbang/Jalan Utama
foto contoh rumah perumahan Damai Lestari Residence 5
Foto Rumah Contoh
foto posisi tengah perumahan Damai Lestari Residence 5
Foto Posisi Tengah Lokasi

Tipe Rumah


1. Tipe subsidi (subsidi)
foto tampak rumah tipe subsidi perumahan Damai Lestari Residence 5
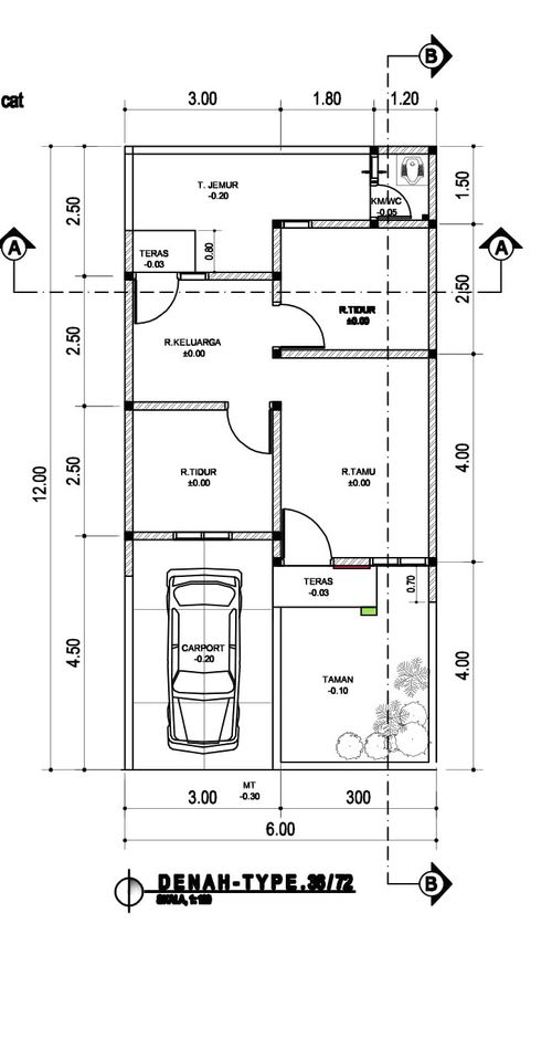
foto denah rumah tipe subsidi perumahan Damai Lestari Residence 5

Harga: Rp 150.500.000

Luas Bangunan: 36m 2

Luas Lahan: 72m 2

Kamar Tidur: 2

Kamar Mandi: 1

Spesifikasi Teknis

a. Atap
atap baja ringan, genteng metal pasir

b. Dinding
bata merah, plaster,aci, finishing cat

c. Lantai & Pondasi
ruangan keramik 40x40, kamar mandi 20x20 & pondasi batu belah


Peta Lokasi


Kantor Pemasaran

Jl. Pulau Sebesi, Sukarame no. 115 LAMPUNG, KOTA BANDAR LAMPUNG, Sukarame, Sukarame Baru

Telp : 081369009067

Email : lampung.bbm@gmail.com

Website :