ID Lokasi : KLA1320082025T002
LAMPUNG, KAB LAMPUNG SELATAN, Jati Agung, Jati Mulyo
PT KREASI TERPILLY PUTRA
PERKUMPULAN ASOSIASI PENGEMBANG PERUMAHAN DAN PERMUKIMAN SELURUH INDONESIA
(APERSI)
Subsidi : 24 Unit
Terjual Subsidi : 3 Unit
Komersil : 0 Unit
Terjual Komersil : 0 Unit
Lihat Siteplan Digital




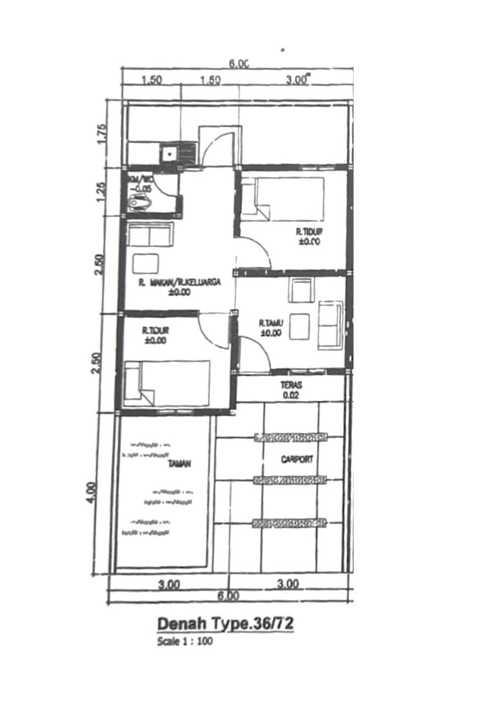
Harga: Rp 166.000.000
Luas Bangunan: 36m 2
Luas Lahan: 72m 2
Kamar Tidur: 2
Kamar Mandi: 1
a. Atap
Metal Pasir
b. Dinding
Bata Merah Dilapisi Semen finishing Cat
c. Lantai & Pondasi
Keramik & Batu Belah