Perumahan koperasi TKBM pelabuhan panjang 2

ID Lokasi : KLA1820032025T001
LAMPUNG, KAB LAMPUNG SELATAN, Merbau Mataram, Tanjung Baru
DUTA HIDUP LESTARI
PERKUMPULAN ASOSIASI PENGEMBANG PERUMAHAN DAN PERMUKIMAN SELURUH INDONESIA (APERSI)


Status Rumah

Subsidi : 2 Unit

Terjual Subsidi : 37 Unit

Komersil : 0 Unit

Terjual Komersil : 0 Unit

Lihat Siteplan Digital

Peta Lokasi



Kantor Pemasaran

Jl. Kali asin no. 1 LAMPUNG, KAB LAMPUNG SELATAN, Merbau Mataram, Tanjung Baru

Telp : 0721341269

Email : pt.dhllpg@gimail.com

Website :

Foto Lokasi


foto gerbang perumahan Perumahan koperasi TKBM pelabuhan panjang 2
Foto Gerbang/Jalan Utama
foto contoh rumah perumahan Perumahan koperasi TKBM pelabuhan panjang 2
Foto Rumah Contoh
foto posisi tengah perumahan Perumahan koperasi TKBM pelabuhan panjang 2
Foto Posisi Tengah Lokasi

Tipe Rumah


1. Tipe 36/70 (subsidi)
foto tampak rumah tipe 36/70 perumahan Perumahan koperasi TKBM pelabuhan panjang 2
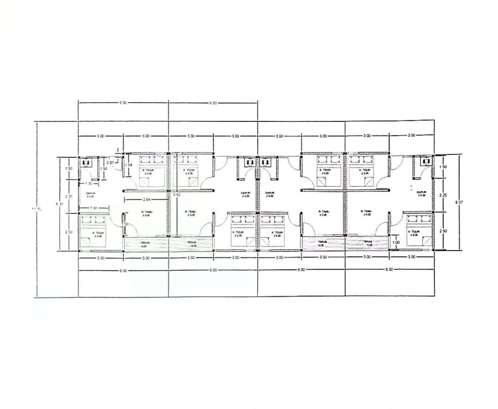
foto denah rumah tipe 36/70 perumahan Perumahan koperasi TKBM pelabuhan panjang 2

Harga: Rp 166.000.000

Luas Bangunan: 36m 2

Luas Lahan: 70m 2

Kamar Tidur: 2

Kamar Mandi: 1

Spesifikasi Teknis

a. Atap
zingkalum Rangka baja ringan

b. Dinding
Bata Bolong

c. Lantai & Pondasi
Keramik 40 x 40 & Batu Belah Hitam


Peta Lokasi


Kantor Pemasaran

Jl. Kali asin no. 1 LAMPUNG, KAB LAMPUNG SELATAN, Merbau Mataram, Tanjung Baru

Telp : 0721341269

Email : pt.dhllpg@gimail.com

Website :