ID Lokasi : KLN1120182026T001
JAWA TENGAH, KAB KLATEN, Ceper, Kuncen
PT TIGA ELANG NUSANTARA
PERKUMPULAN ASOSIASI PENGEMBANG PERUMAHAN DAN PERMUKIMAN SELURUH INDONESIA
(APERSI)
Subsidi : 50 Unit
Terjual Subsidi : 31 Unit
Komersil : 0 Unit
Terjual Komersil : 0 Unit
Lihat Siteplan Digital




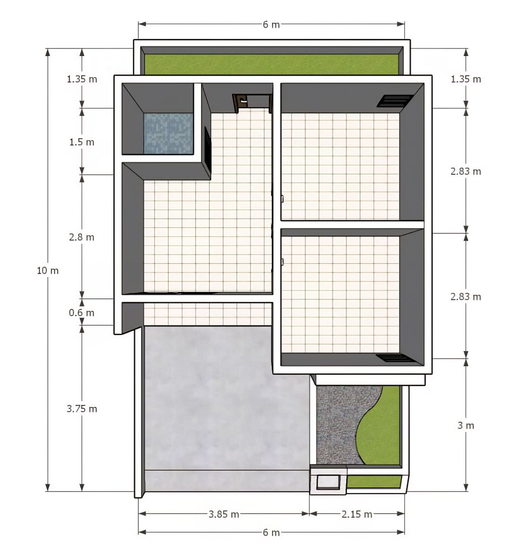
Harga: Rp 166.000.000
Luas Bangunan: 30m 2
Luas Lahan: 60m 2
Kamar Tidur: 2
Kamar Mandi: 1
a. Atap
Genteng Metal Pasir
b. Dinding
Bata Merah
c. Lantai & Pondasi
Keramik & Batu Kali