ID Lokasi : KNG3220042024T001
JAWA BARAT, KAB KUNINGAN, Cigandamekar, Karangmuncang
PT ELANG NIFA ABADI
PERKUMPULAN ASOSIASI PENGEMBANG PERUMAHAN DAN PERMUKIMAN SELURUH INDONESIA
(APERSI)
Subsidi : 158 Unit
Terjual Subsidi : 22 Unit
Komersil : 0 Unit
Terjual Komersil : 0 Unit
Lihat Siteplan Digitaljl. Desaku karangmuncang no. - JAWA BARAT, KAB KUNINGAN, Cigandamekar, Karangmuncang
Telp : 085222276626
Email : adisuandana123456@gmail.com
Website : -





Harga: Rp 162.000.000
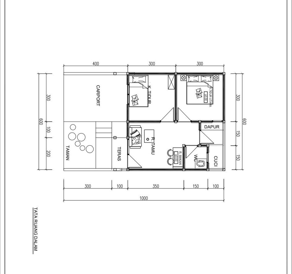
Luas Bangunan: 36m 2
Luas Lahan: 60m 2
Kamar Tidur: 2
Kamar Mandi: 1
a. Atap
BAJ RINGAN
b. Dinding
PLESTER/DI ACI
c. Lantai & Pondasi
KERAMIK & BATU KALI
jl. Desaku karangmuncang no. - JAWA BARAT, KAB KUNINGAN, Cigandamekar, Karangmuncang
Telp : 085222276626
Email : adisuandana123456@gmail.com
Website : -