Tanah Merah Mandiri

ID Lokasi : KPG0820122024T001
NUSA TENGGARA TIMUR, KAB KUPANG, Kupang Tengah, Tanah Merah
UMA KITA SEJAHTERA
REAL ESTATE INDONESIA (REI)


Status Rumah

Subsidi : 23 Unit

Terjual Subsidi : 2 Unit

Komersil : 0 Unit

Terjual Komersil : 0 Unit

Lihat Siteplan Digital

Peta Lokasi



Kantor Pemasaran

Villa Gloria Jl Cempaka no. 17 NUSA TENGGARA TIMUR, KOTA KUPANG, Maulafa, Bello

Telp : 085220155577

Email : umakitasejahtera2024@gmail.com

Website : 0

Foto Lokasi


foto gerbang perumahan Tanah Merah Mandiri
Foto Gerbang/Jalan Utama
foto contoh rumah perumahan Tanah Merah Mandiri
Foto Rumah Contoh
foto posisi tengah perumahan Tanah Merah Mandiri
Foto Posisi Tengah Lokasi

Tipe Rumah


1. Tipe subsidi (subsidi)
foto tampak rumah tipe subsidi perumahan Tanah Merah Mandiri
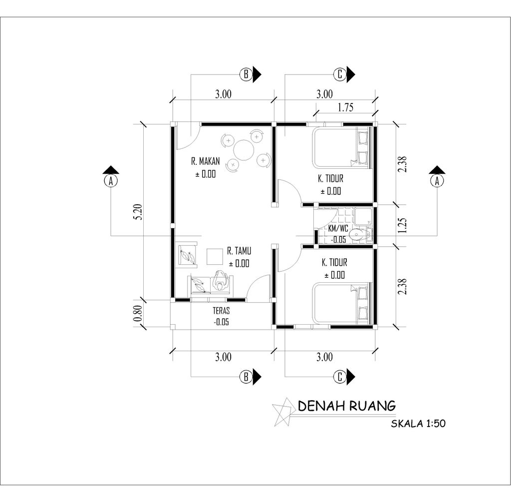
foto denah rumah tipe subsidi perumahan Tanah Merah Mandiri

Harga: Rp 185.000.000

Luas Bangunan: 36m 2

Luas Lahan: 96m 2

Kamar Tidur: 2

Kamar Mandi: 1

Spesifikasi Teknis

a. Atap
spandek

b. Dinding
Batako

c. Lantai & Pondasi
keramik & Batu Karang


Peta Lokasi


Kantor Pemasaran

Villa Gloria Jl Cempaka no. 17 NUSA TENGGARA TIMUR, KOTA KUPANG, Maulafa, Bello

Telp : 085220155577

Email : umakitasejahtera2024@gmail.com

Website : 0