ID Lokasi : KPI0320062020T006
SUMATERA UTARA, KAB LABUHANBATU SELATAN, Torgamba, Aek Batu
PT SIAGIAN AGRO PERSADA
REAL ESTATE INDONESIA
(REI)
Subsidi : 23 Unit
Terjual Subsidi : 20 Unit
Komersil : 0 Unit
Terjual Komersil : 0 Unit
Lihat Siteplan DigitalJalan mutiara desa aek batu kecamatan torgamba kabupaten labuhanbatu selatan provinsi sumatera utara no. 04 SUMATERA UTARA, KAB LABUHANBATU SELATAN, Torgamba, Aek Batu
Telp : 085261009386
Email : sigianagropersada@gmail.com
Website : -





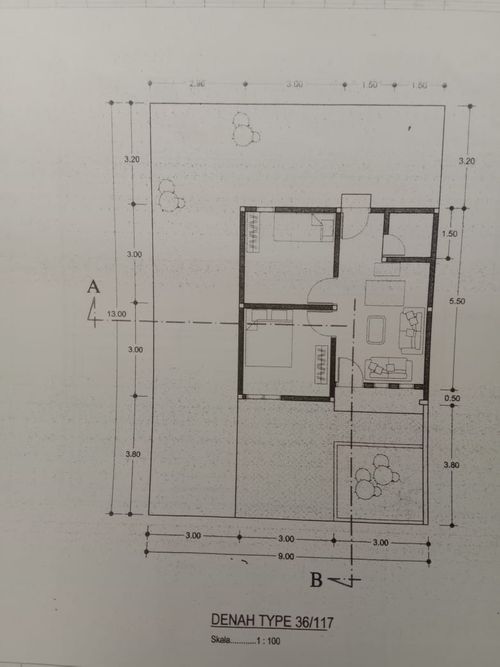
Harga: Rp 130.000.000
Luas Bangunan: 36m 2
Luas Lahan: 117m 2
Kamar Tidur: 2
Kamar Mandi: 1
a. Atap
seng spandek
b. Dinding
bata merah
c. Lantai & Pondasi
keramik & pondasi bertulang
Jalan mutiara desa aek batu kecamatan torgamba kabupaten labuhanbatu selatan provinsi sumatera utara no. 04 SUMATERA UTARA, KAB LABUHANBATU SELATAN, Torgamba, Aek Batu
Telp : 085261009386
Email : sigianagropersada@gmail.com
Website : -